New build family home with solar panels and two parking spaces.
£19,449 deposit contribution available to the buyer
A bright, three-bedroom new build semi with energy-saving extras and practical family layout. The open-plan lounge opens through French doors to a south-west facing garden, ideal for afternoon sun and informal outdoor time. The upgraded kitchen adds immediate value, and the property includes photovoltaic solar panels plus an EV charger to reduce running costs.
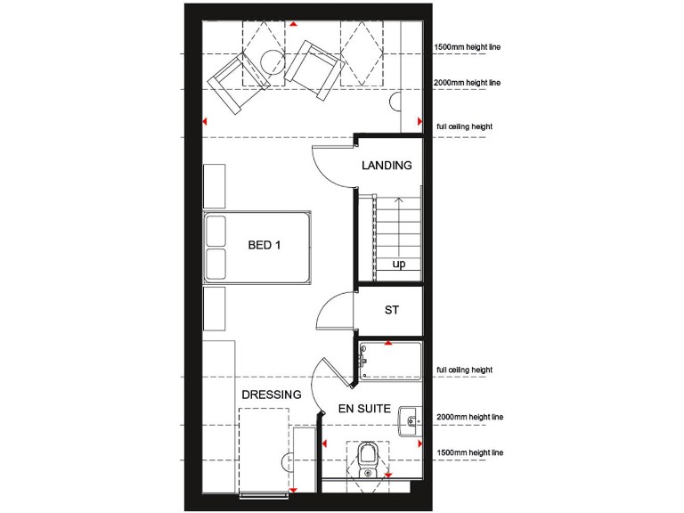
Practical features include two off-street parking spaces and an NHBC warranty and insurance policy for peace of mind when buying new. The main bedroom benefits from a dressing area and en suite-style layout, while two further bedrooms serve children, guests or a home office. A generous deposit contribution is available to help with purchase costs.
Notable constraints are listed plainly: broadband speeds in the area are very slow, which may affect homeworking or streaming without an alternative solution. The tenure is unspecified, so confirm ownership type and any service charges before committing. Also check the exact bathroom arrangement and room measurements against floorplans, as advertised bathroom count may differ from the layout shown.
Overall this is a contemporary family home in a modern development that suits growing households who prioritise low running costs, parking and outdoor space. It is best for buyers willing to verify tenure and connectivity details before exchange.
3 bedroom semi-detached house for sale in Mill Lane,
Swindon,
SN1 7BX, SN1 — £388,995 • 3 bed • 1 bath • 975 ft²
3 bedroom semi-detached house for sale in Mill Lane,
Swindon,
SN1 7BX, SN1 — £404,995 • 3 bed • 1 bath • 881 ft²
3 bedroom detached house for sale in Scott Way,
South Leaze,
Swindon,
Wiltshire,
SN1 7NT, SN1 — £379,995 • 3 bed • 1 bath • 803 ft²
4 bedroom semi-detached house for sale in Mill Lane,
Swindon,
SN1 7BX, SN1 — £416,995 • 4 bed • 1 bath • 1065 ft²
3 bedroom detached house for sale in Scott Way,
South Leaze,
Swindon,
Wiltshire,
SN1 7NT, SN1 — £369,995 • 3 bed • 1 bath • 803 ft²
3 bedroom semi-detached house for sale in Scott Way,
South Leaze,
Swindon,
Wiltshire,
SN1 7NT, SN1 — £362,995 • 3 bed • 1 bath • 878 ft²










































