Convenient two-bed home close to parks, schools and city centre.
Chain free with 135 years remaining on lease
Two double bedrooms and a bright sitting room
Low-maintenance rear garden and side entrance
Separate modern kitchen and loft space for storage
EPC rated E (52); energy upgrades likely beneficial
Compact 662 sq ft — suited to small households
Cavity walls assumed without insulation (may need upgrading)
Single bathroom only; limited living space for larger families
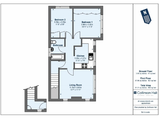
Set within easy walking distance of St Albans city centre and Verulamium Park, this two-bedroom first-floor garden maisonette offers a practical and well-presented home for a small family or first-time buyer. The layout includes a bright sitting room, separate modern kitchen, two double bedrooms and a family bathroom, with useful loft space above for storage or conversion subject to consents.
The property benefits from double glazing and gas central heating via boiler and radiators, and is offered chain free with a long lease (135 years remaining). Outside there is a low-maintenance rear garden and a side entrance, giving a pleasant outdoor space without heavy upkeep. Local amenities, good schools and excellent mobile signal make this a convenient location for everyday living and commuting.
Buyers should note this is a leasehold maisonette (lease expires February 2158) and the building has cavity walls with no built-in insulation (assumed). The EPC is band E (52) and the overall accommodation is compact at around 662 sq ft, with a single bathroom and average-sized rooms — appropriate for smaller households rather than those needing extensive space.
With characterful 1950s construction, practical modern fittings and no upper chain, the home presents clear potential for cosmetic improvement or modest energy upgrades to enhance comfort and value.
2 bedroom maisonette for sale in Abbots Avenue West, St. Albans, AL1 — £400,000 • 2 bed • 1 bath • 768 ft²
2 bedroom maisonette for sale in Trumpington Drive, St. Albans, AL1 2JP, AL1 — £375,000 • 2 bed • 1 bath • 853 ft²
2 bedroom maisonette for sale in Mount Pleasant, St Albans, AL3 — £425,000 • 2 bed • 1 bath • 550 ft²
1 bedroom apartment for sale in Mountbatten Close, St. Albans, AL1 — £250,000 • 1 bed • 1 bath • 543 ft²
2 bedroom flat for sale in The Lawns, Mount Pleasant, St. Albans, AL3 — £410,000 • 2 bed • 1 bath • 657 ft²
2 bedroom apartment for sale in Sportsmans Hall, Cottonmill Lane, St. Albans, Hertfordshire, AL1 — £400,000 • 2 bed • 1 bath • 670 ft²


























































