**Standout Features:**
- Spacious four-bedroom detached home
- Two reception rooms, including a bright conservatory
- Utility room and downstairs WC
- En-suite shower in the master bedroom
- Front garden with driveway and garage
- Beautifully maintained rear garden with decking and pond
- Close proximity to schools and motorway networks
**Potential Downsides:**
- Average crime rates in the local area
- Unknown installation date for double glazing
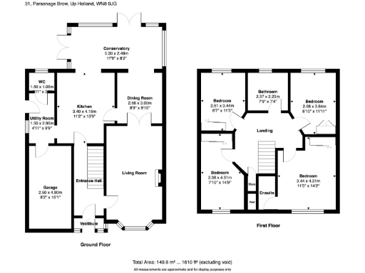
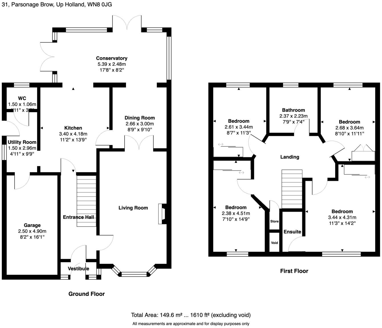
Nestled in the desirable residential area of Parsonage Brow, Upholland, this beautifully maintained four-bedroom detached home presents an incredible opportunity for families seeking comfort and modern living. The inviting hallway leads you into a spacious lounge with a charming fireplace and a versatile second reception room, perfect for a dining area or playroom. A large, light-filled conservatory enhances the living space, seamlessly combining indoor and outdoor relaxation.
Upstairs, you'll find four generous double bedrooms with fitted wardrobes, ensuring ample storage, plus a master suite with an en-suite bathroom for added privacy. The well-appointed family bathroom completes the upper floor. Outside, enjoy the tranquil rear garden, featuring a lovely decking area and pond—ideal for summer evenings. With excellent local amenities, reputable schools, and easy motorway access, this home strikes a balance of comfort and convenience.
The property is chain-free, making it an attractive option for buyers looking to settle in quickly. Don’t miss out on this gem—viewings are highly recommended!
4 bedroom detached house for sale in Parsonage Brow, Upholland, Skelmersdale, WN8 — £310,000 • 4 bed • 2 bath • 1597 ft²
4 bedroom detached house for sale in Parsonage Brow, Upholland, Skelmersdale, Lancashire, WN8 — £320,000 • 4 bed • 1 bath • 1431 ft²
4 bedroom detached house for sale in Barford Close, Upholland, Lancashire, WN8 — £280,000 • 4 bed • 2 bath • 1335 ft²
4 bedroom detached house for sale in Windmill Heights, Upholland, WN8 0JJ, WN8 — £303,000 • 4 bed • 3 bath • 1292 ft²
3 bedroom detached house for sale in Ormskirk Road, Upholland, WN8 0AB, WN8 — £275,000 • 3 bed • 2 bath • 1353 ft²
4 bedroom detached house for sale in Highmeadow, Upholland, WN8 0BE, WN8 — £340,000 • 4 bed • 3 bath • 1145 ft²


































































































































