Immaculate five-bedroom townhouse with garden and parking near station.
Chain-free freehold five-bedroom mid-terrace over 1,700 sq ft
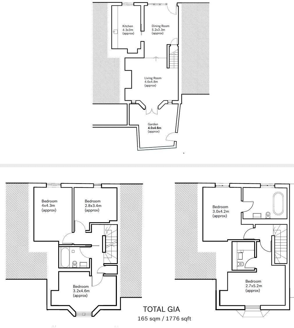
This newly built, five-bedroom mid-terrace on High Street, Hampton Wick offers over 1,700 sq ft of immaculately finished living space across multiple floors. The house is chain-free and freehold, with a high-quality specification throughout, a show-piece kitchen, three bathrooms and plentiful built-in storage. Off-street parking and a sizable landscaped private garden add rare practical benefits for central locations.
Located moments from Hampton Wick station and the River Thames, the home sits within strong school catchments including several highly regarded primaries and secondaries. The area is lively and cosmopolitan with excellent mobile signal and convenient local amenities for family life and commuting.
Buyers should note the plot is small and the property sits in a medium flood-risk zone; suitable insurance and flood-aware landscaping may be necessary. Broadband speeds are average despite excellent mobile reception. Overall, this is a high-spec family townhouse in a desirable spot, offered chain-free and ready to occupy.
2 bedroom terraced house for sale in Old Bakery Mews, Hampton Wick, Kingston, KT1 — £775,000 • 2 bed • 2 bath • 1400 ft²
3 bedroom terraced house for sale in Old Bakery Mews, Hampton Wick, Kingston, KT1 — £849,950 • 3 bed • 2 bath • 1600 ft²
1 bedroom house for sale in High Street, Teddington, KT1 — £450,000 • 1 bed • 1 bath • 527 ft²
2 bedroom house for sale in High Street, Hampton Wick, KT1 — £699,950 • 2 bed • 1 bath • 900 ft²
4 bedroom house for sale in Wick Road, Teddington, TW11 — £799,950 • 4 bed • 2 bath • 1200 ft²
5 bedroom semi-detached house for sale in Vicarage Road, Hampton Wick, Kingston upon Thames, KT1 — £1,895,000 • 5 bed • 4 bath • 2807 ft²


























































