Detached retirement bungalow with panoramic sea views and strong conversion potential.
Stunning uninterrupted 180° sea and coastline views
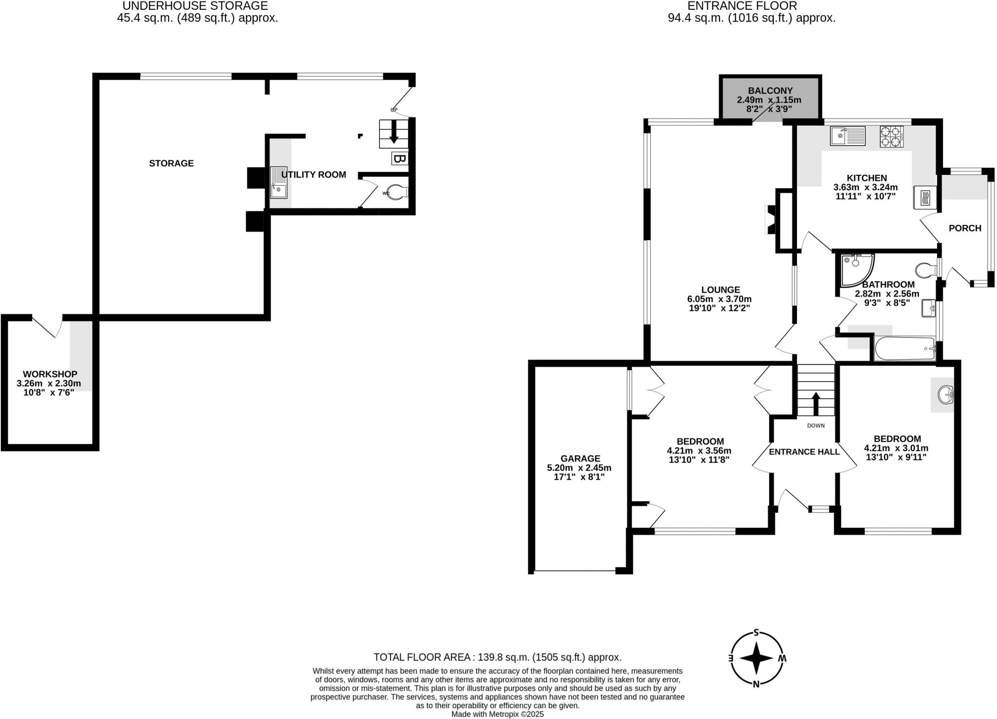
Perched on Higher Preston, this detached split-level bungalow commands uninterrupted 180° sea and coastline views across Paignton Bay. The raised aspect, private driveway and garage create an immediate sense of privacy and coastal retreat. Internally the layout is bright and well-proportioned, with a generous lounge leading to a balcony and a kitchen that also takes advantage of the outlook.
Designed with comfortable retirement living in mind, the home offers two double bedrooms and a single family bathroom. A large under-house area and separate workshop with power present genuine scope for conversion, annexe creation or substantial improvement (subject to planning/building consents). The terraced, south‑facing rear garden is laid out to maximise the hillside panorama and provides space for outdoor entertaining and planting.
The property dates to the late 1960s/early 1970s and is presented with older-style fixtures and neutral decor. It would benefit from updating and modernisation to fully exploit its size and views. Buyers should note the single bathroom, the age of the building, and that any extension or conversion will require the appropriate consents. Offered chain-free and freehold, this bungalow suits retirees seeking a peaceful coastal base and buyers looking for a project with strong upside in a quiet, affluent neighbourhood.
Local amenities and a regular bus service into Paignton town centre are close by, with good road links to the Torbay ring road and the M5 corridor. There is no flood risk recorded and the area benefits from very low crime and fast broadband, supporting comfortable, connected living by the sea.
3 bedroom detached bungalow for sale in Dolphin Crescent, Paignton, TQ3 — £480,000 • 3 bed • 2 bath • 1185 ft²
2 bedroom bungalow for sale in Dolphin Crescent, Paignton, Devon, TQ3 — £360,000 • 2 bed • 2 bath • 1406 ft²
4 bedroom detached house for sale in Dolphin Crescent, Paignton, TQ3 — £509,000 • 4 bed • 2 bath • 1600 ft²
4 bedroom detached bungalow for sale in Sandringham Gardens, Preston, Paignton, TQ3 1JB, TQ3 — £625,000 • 4 bed • 1 bath • 1885 ft²
4 bedroom detached house for sale in Dolphin Court Road, Paignton, TQ3 — £425,000 • 4 bed • 2 bath • 1324 ft²
4 bedroom bungalow for sale in Dolphin Crescent, Paignton, TQ3 — £450,000 • 4 bed • 2 bath • 1044 ft²


























































