Prestigious Grade II office building with rental income and strong town‑centre location..
- Grade II listed three‑storey Georgian former townhouse
- Converted to seven self‑contained office suites plus attic studios
- Current gross rental income approx £18,276 pa; potential >£22,000 pa
- One ground‑floor suite currently vacant, immediate letting potential
- Small rear garden; town‑centre, highly convenient location
- Visible plaster damage in hallway; some maintenance required
- Listed status restricts alterations and may increase costs
- Local crime rates reported as high despite affluent wider area
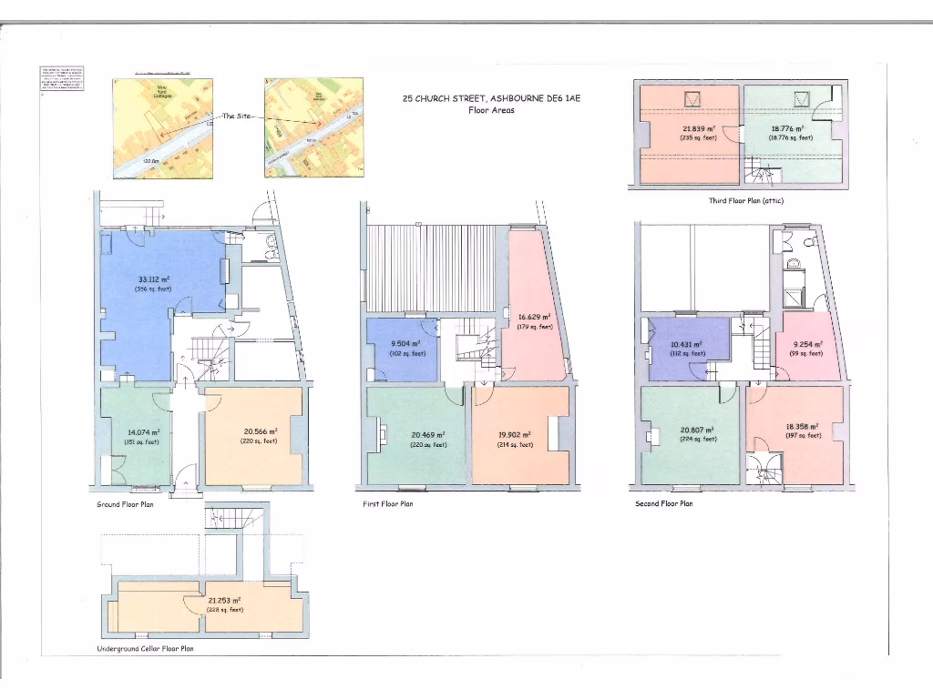
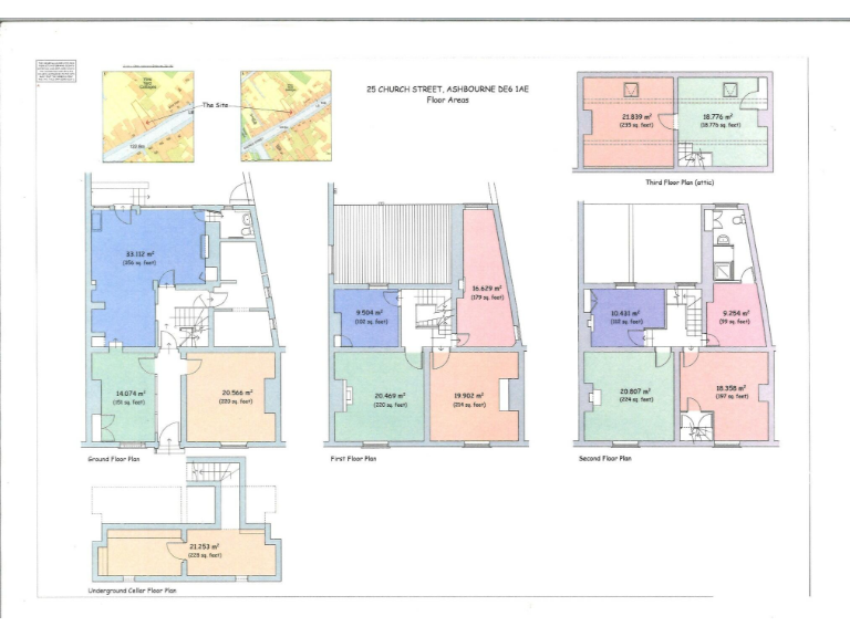
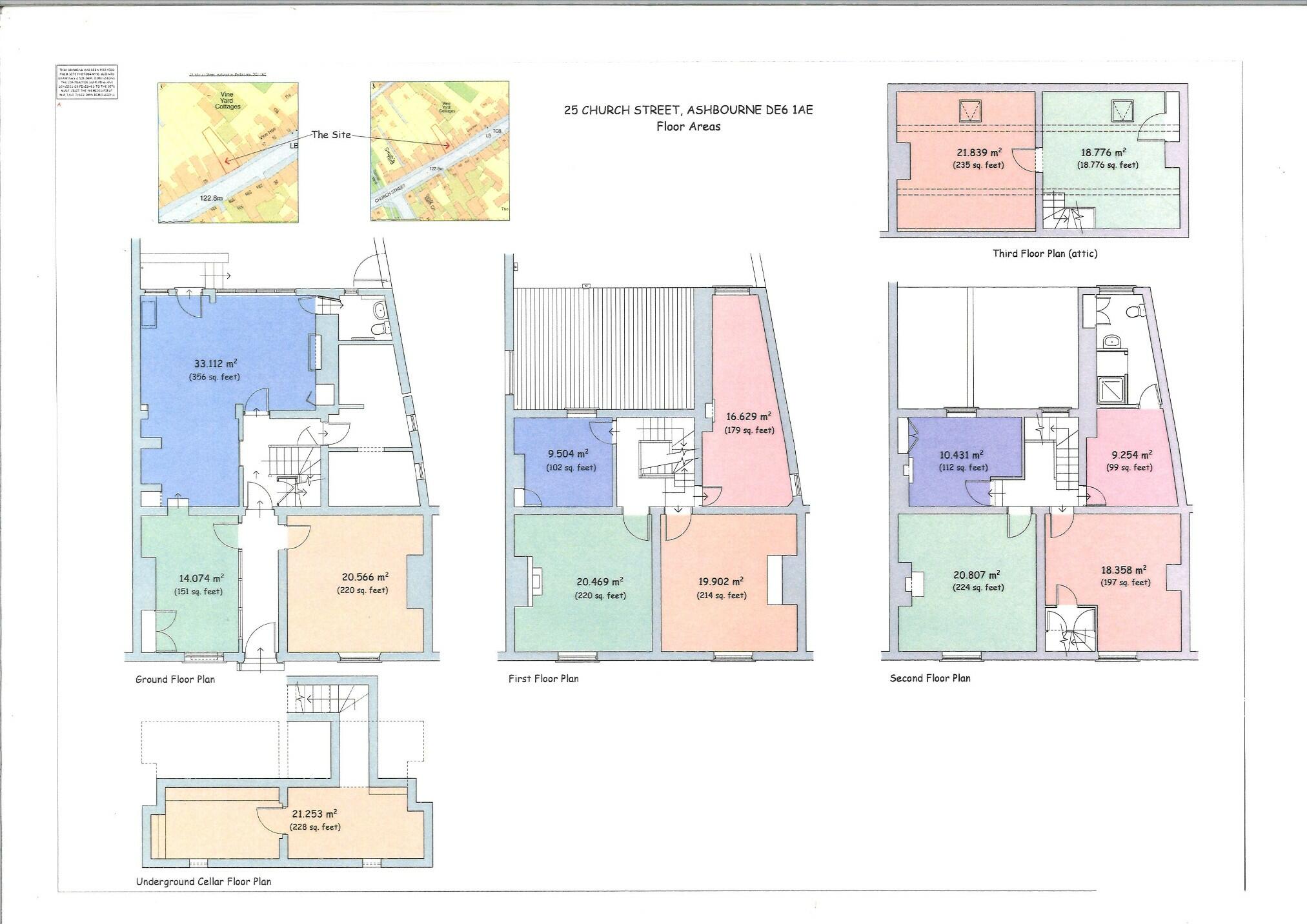
Set in a prominent position on Church Street, this imposing three‑storey Georgian townhouse has been skilfully converted into prestigious office accommodation. The building offers generous room sizes, high ceilings and period character across three principal floors, plus attic studio rooms, cellarage and a small rear garden. Fast broadband, excellent mobile signal and a convenient town‑centre location support immediate business use.
Currently configured as seven self‑contained offices with communal kitchens and cloakrooms, the property produces a gross annual income of approximately £18,276 from five tenants, with one ground floor suite vacant. When fully let, projected income exceeds £22,000 per year, making it of particular interest to investors; it also suits an owner‑occupier seeking a character office in Ashbourne.
Buyers should note this is a Grade II listed building; any alterations will be restricted and may complicate conversion or refurbishment. There is visible plaster damage in the hallway and some maintenance likely required in places. The location is in a small‑town fringe area with high local crime statistics despite a very affluent wider area.
Overall, the property is a rare, characterful freehold office opportunity close to Ashbourne’s amenities. It suits purchasers who value architectural interest and rental potential, and who accept the constraints and additional costs associated with listed status and ongoing maintenance.
Commercial property for sale in 25 Church Street, Ashbourne, Derbyshire, DE6 — £299,000 • 1 bed • 1 bath • 3000 ft²
Office for sale in King Street, Ashbourne, DE6 1EA, DE6 — £450,000 • 1 bed • 1 bath • 3842 ft²
Commercial property for sale in 5 Market Place, Ashbourne, Derbyshire, DE6 — £325,000 • 3 bed • 1 bath • 1720 ft²
4 bedroom character property for sale in Church Street, Ashbourne, DE6 — £465,000 • 4 bed • 3 bath • 1650 ft²
High street retail property for sale in Victoria Square, Ashbourne, Derbyshire, DE6 1GG, DE6 — £125,000 • 1 bed • 1 bath • 403 ft²
11 bedroom character property for sale in Church Street, Ashbourne, DE6 — £500,000 • 11 bed • 6 bath


























