Stylish, spacious flat moments from Hampstead High Street and Heath.
Ground-floor 1-bedroom flat, spacious reception and high ceilings
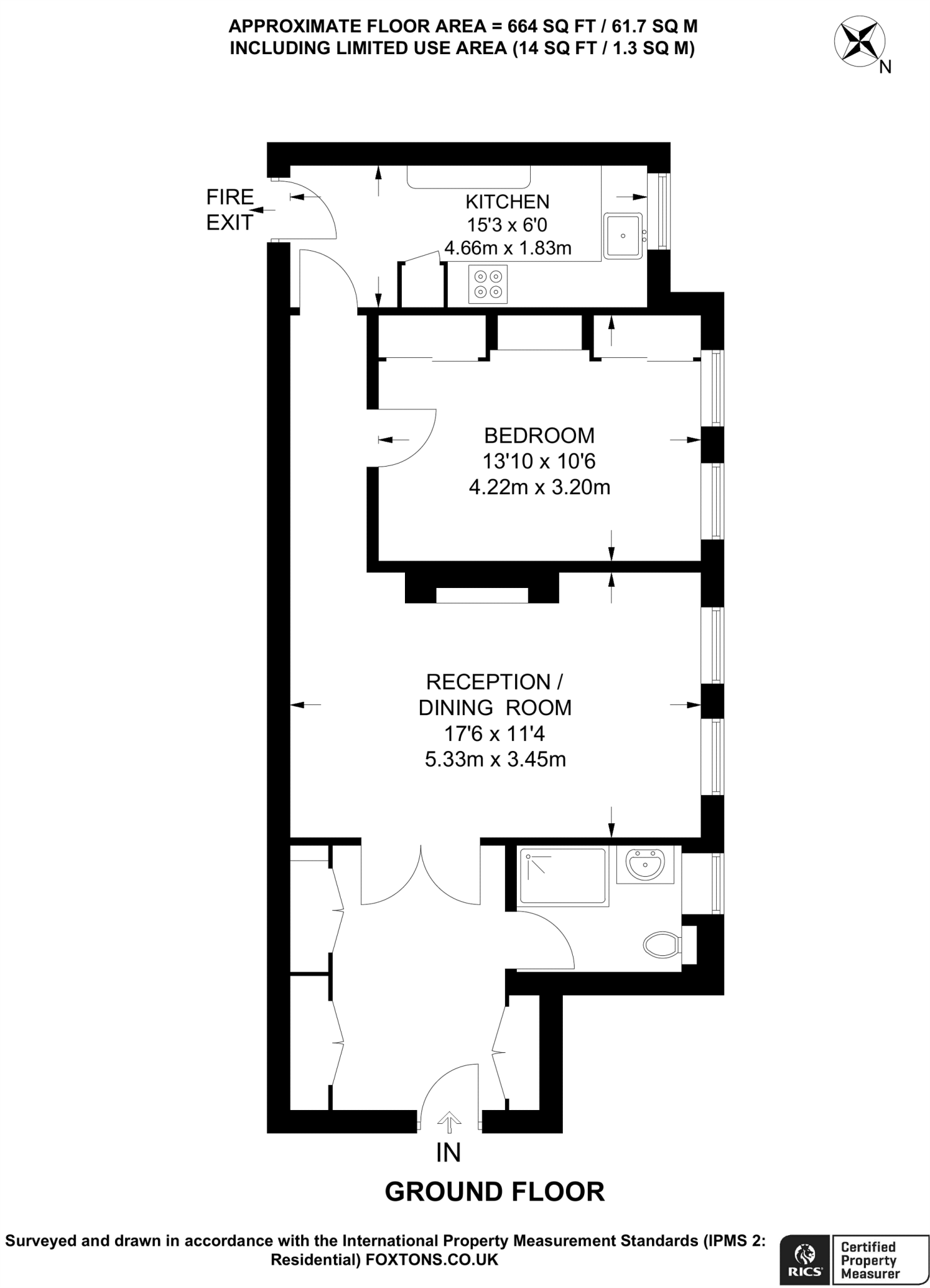
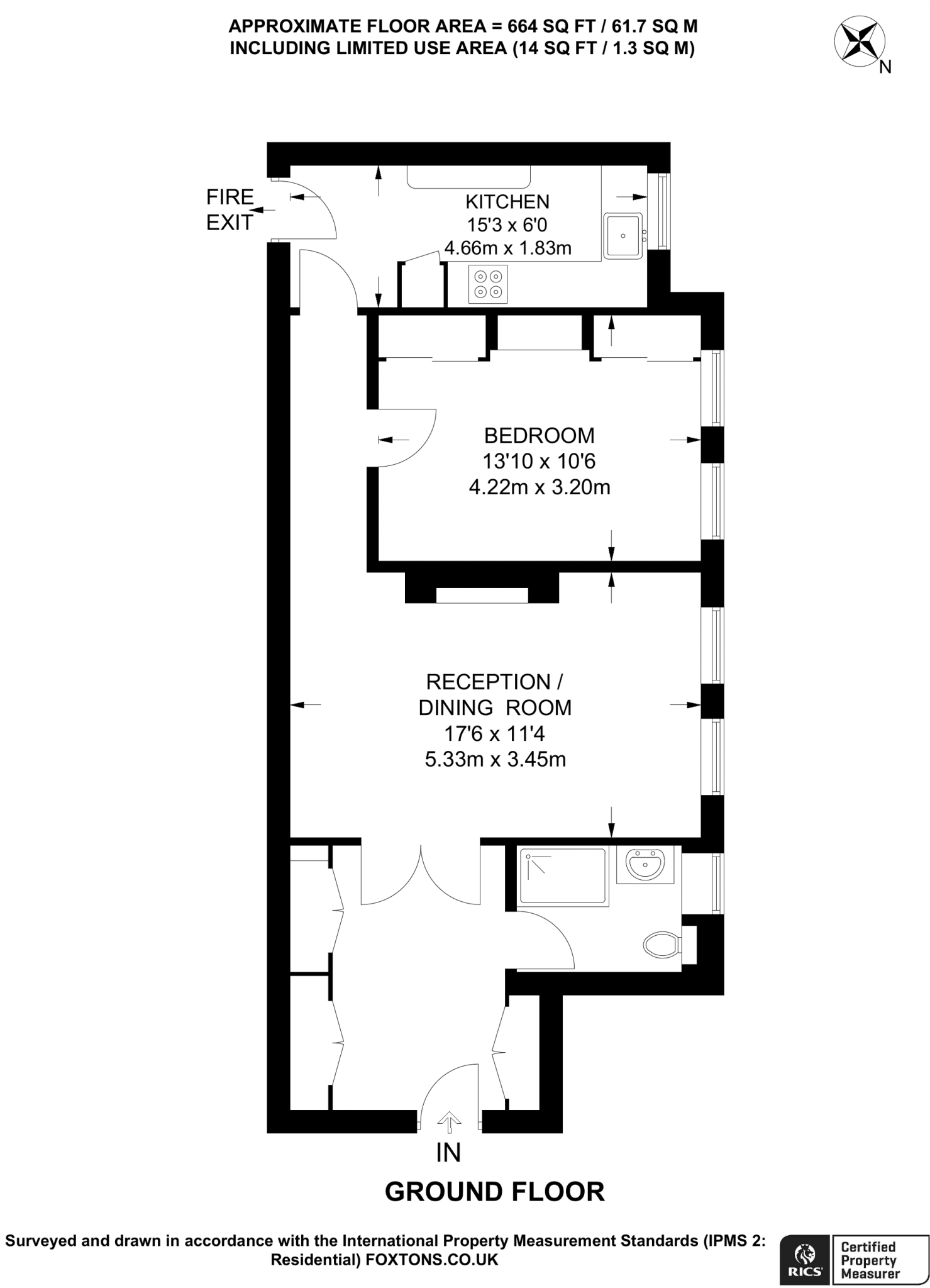
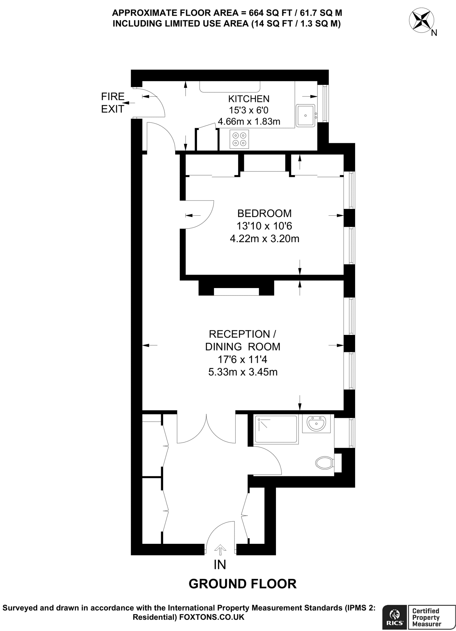
This ground-floor 1-bedroom flat in Hampstead has been fully refurbished to a high standard, offering generous proportions and contemporary finishes across c.664 sq ft. The reception room benefits from high ceilings, large windows and a bespoke media wall with faux fireplace, while the kitchen is elegant with integrated appliances and large-format tiled floors throughout.
Practical extras include integrated LED lighting, Sonos sound throughout, substantial storage cupboards in the hallway and an on-site porter for added convenience. The flat sits moments from Hampstead High Street and a short walk to Hampstead Heath, with excellent mobile signal and fast broadband — ideal for working from home or leisurely weekends.
The property is leasehold with 132 years remaining and uses a community electricity/heating scheme. Constructed between 1930–1949 in solid brick, the building likely lacks modern cavity insulation and may benefit from future thermal improvements. Crime levels in the area are recorded as high and should be weighed against the many local amenities and transport links.
1 bedroom flat for sale in Denning Road, Hampstead, London, NW3 — £825,000 • 1 bed • 1 bath • 613 ft²
1 bedroom flat for sale in Willoughby Road, Hampstead, London, NW3 — £695,000 • 1 bed • 1 bath • 477 ft²
1 bedroom flat for sale in Cannon Place Hampstead Village NW3 — £950,000 • 1 bed • 1 bath • 763 ft²
1 bedroom flat for sale in Netherhall Gardens, Hampstead, NW3, NW3 — £525,000 • 1 bed • 1 bath • 452 ft²
1 bedroom flat for sale in Hampstead High Street, London, NW3 — £575,000 • 1 bed • 1 bath • 395 ft²
1 bedroom flat for sale in New End, London, NW3 — £700,000 • 1 bed • 1 bath • 484 ft²














































































































