**Standout Features:**
- Modern 2-bedroom, 2-bathroom apartment in Horseshoe Mews
- Prime location near Canterbury City Centre and mainline stations
- Private gated courtyard and terraced balcony offering outdoor space
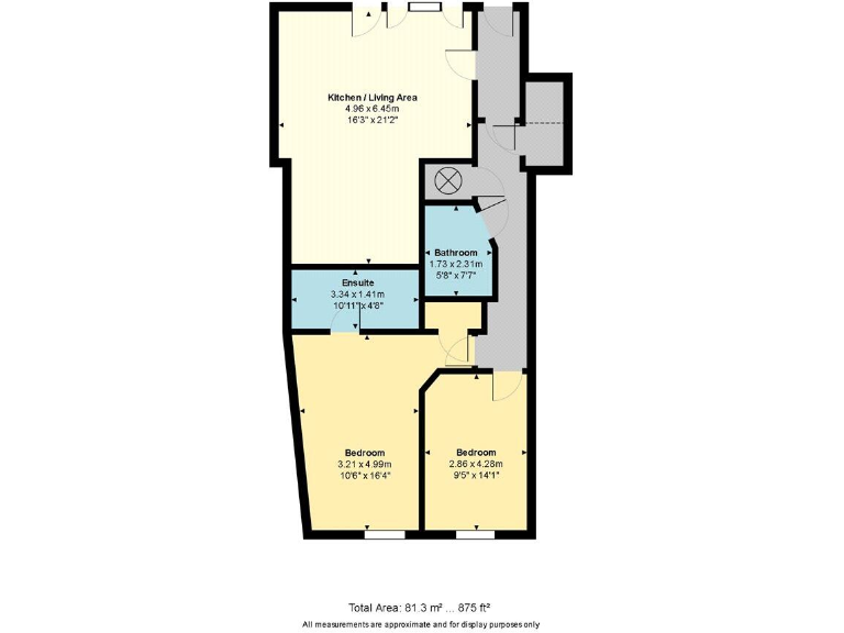
- Open-plan kitchen/living/dining area with ample natural light
- Well-maintained with good specifications and decorative order
- Garage included, plus low service charge and reasonable ground rent
- Close proximity to multiple good-rated schools, restaurants, and amenities
**Summary:**
Nestled in the desirable Horseshoe Mews, this modern apartment offers a unique blend of city living and private comfort. With 875 square feet to enjoy, the thoughtfully designed layout features a bright open-plan kitchen/living/dining area that invites social gatherings, complemented by a private terraced balcony for outdoor relaxation. Both double bedrooms come equipped with cupboards, and the modern main bathroom, along with an en-suite in the master, caters to contemporary living.
Just a few minutes' stroll from Canterbury's bustling city center, this apartment provides excellent access to mainline stations and an array of dining and shopping options. The strong rental potential makes it ideal for investors or a great home for families, with reputable schools nearby. Despite a high crime area designation, enjoy the comfort of a secure, gated community. This leasehold gem is competitively priced at £230,000, but with a long lease of 236 years remaining and low annual costs, it promises both stability and future flexibility for any modifications or enhancements you might envision. Don't miss the chance to secure your place in this vibrant cosmopolitan neighborhood!
2 bedroom flat for sale in Stour Street, Canterbury, CT1 — £280,000 • 2 bed • 2 bath • 1120 ft²
2 bedroom flat for sale in The Rope Walk, Canterbury, CT1 — £325,000 • 2 bed • 2 bath • 846 ft²
2 bedroom flat for sale in Pyott Mews, Canterbury, Kent, CT1 — £250,000 • 2 bed • 1 bath • 676 ft²
2 bedroom flat for sale in Old Watling Street, Canterbury, Kent, CT1 — £260,000 • 2 bed • 2 bath • 815 ft²
2 bedroom flat for sale in Bellflower Mews, 52 New Dover Road, Canterbury, Kent, CT1 — £240,000 • 2 bed • 2 bath • 700 ft²
2 bedroom flat for sale in St. Andrews Close, Canterbury, CT1 — £200,000 • 2 bed • 2 bath • 771 ft²






































