**Standout Features:**
- Modern, architect-designed eco-home completed in 2020
- Expansive 0.66-acre garden with lawn, orchard, and greenhouse
- Four spacious bedrooms including a principal suite with en-suite and dressing room
- Self-contained annexe ideal for guests or additional rental income
- Superior energy performance (A-rated) with solar panels and EV charging point
- Integral double garage and ample parking
- Excellent connectivity with local amenities and access to Ashdown Forest
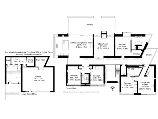
This stunning contemporary detached home, designed by renowned architect Jeff Morehen, is a perfect blend of sustainability and style in the picturesque village of Forest Row. Boasting an impressive 3,732 square feet of living space, the property features an inviting hall leading to a bright, open-plan kitchen/dining/family room—the heart of the home—equipped with high-end Gaggenau appliances and a cozy wood-burning stove. The spacious sitting room and dedicated library offer comfortable spaces for relaxation, while the principal bedroom overlooks the beautifully landscaped gardens.
Set on a generous 0.66-acre plot, the property's outdoor space includes an array of wildflowers, mature trees, and a greenhouse, creating an ideal setting for nature enthusiasts and families alike. The self-contained annexe adds valuable flexibility, whether for guests or potential rental income. Enjoy the peace of mind from low crime rates and a strong sense of community.
While the property is low-maintenance and energy-efficient, the council tax may be on the higher end. With the added benefits of fast broadband and great mobile signal, plus excellent schools nearby, this home presents a unique opportunity to live in harmony with nature without sacrificing modern comforts. Don’t miss out on the chance to own a piece of architectural excellence and serene countryside living.
4 bedroom detached house for sale in Dawson's Wood, Forest Row, East Sussex, RH18 — £2,675,000 • 4 bed • 4 bath • 3732 ft²
5 bedroom detached house for sale in Hempstead Lane, Hailsham, BN27 — £1,000,000 • 5 bed • 3 bath • 4451 ft²
4 bedroom detached house for sale in Grove Hill, Hellingly, Hailsham, BN27 — £1,200,000 • 4 bed • 2 bath • 2551 ft²
4 bedroom detached house for sale in Stunning Rural Location In Hawkhurst, TN18 — £1,250,000 • 4 bed • 3 bath • 2144 ft²
5 bedroom detached house for sale in Rose Hill, Isfield, TN22 — £1,500,000 • 5 bed • 3 bath • 3486 ft²
3 bedroom detached house for sale in Turkey Road, Bexhill-On-Sea, TN39 — £850,000 • 3 bed • 1 bath • 1497 ft²














































































































