Spacious kitchen diner and private garden ideal for growing families.
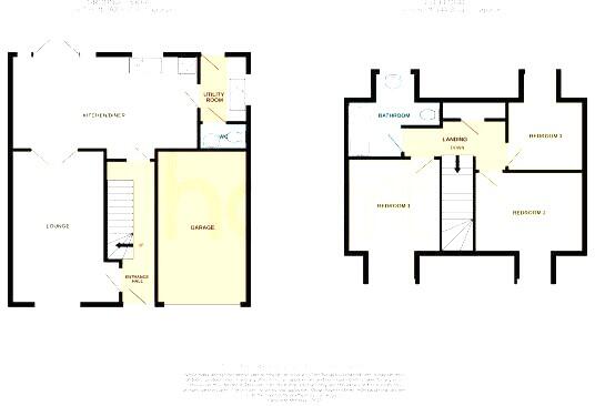
Detached three-bedroom chalet with integrated garage and driveway parking
Set on a decent plot in a peaceful village fringe, this detached three-bedroom chalet offers comfortable, flexible family living. A generous 20ft kitchen/diner and separate utility provide practical everyday space, while a sizeable lounge serves as a relaxed family hub. Double glazing and a mains gas boiler give straightforward, energy-efficient heating and insulation typical of early-2000s construction.
Outside, the private rear garden delivers room for children and summer entertaining, with driveway parking plus an integrated garage for secure storage. The property is freehold and offered chain free, which can simplify a straightforward move. Broadband speeds are reported as fast and mobile signal excellent, suiting home working and family connectivity.
The home was constructed around 2003–2006 and presents as an average-sized dwelling with modern styling. Buyers should note the council tax band is not provided and that internal inspection is recommended to confirm condition before purchase. The setting is a small town/village fringe within an affluent, older farming community with local amenities and primary schooling nearby.
3 bedroom house for sale in Bullfinch Way, Friday Bridge, PE14 — £300,000 • 3 bed • 2 bath • 689 ft²
3 bedroom chalet for sale in Governess Close, Wimblington, PE15 — £310,000 • 3 bed • 1 bath • 1095 ft²
4 bedroom chalet for sale in Estover Road, March, PE15 — £325,000 • 4 bed • 1 bath • 1518 ft²
4 bedroom detached bungalow for sale in King Street, Wimblington, March, Cambs., PE15 0QF, PE15 — £375,000 • 4 bed • 2 bath • 2385 ft²
4 bedroom detached house for sale in Bridge Lane, Wimblington, March, PE15 — £425,000 • 4 bed • 2 bath • 1841 ft²
3 bedroom detached house for sale in Rodham Road, March, PE15 — £325,000 • 3 bed • 1 bath • 907 ft²














































































