Spacious multi-level family home with spectacular valley vistas and detached garage.
Breathtaking Shibden Valley views from multiple balconies and patios
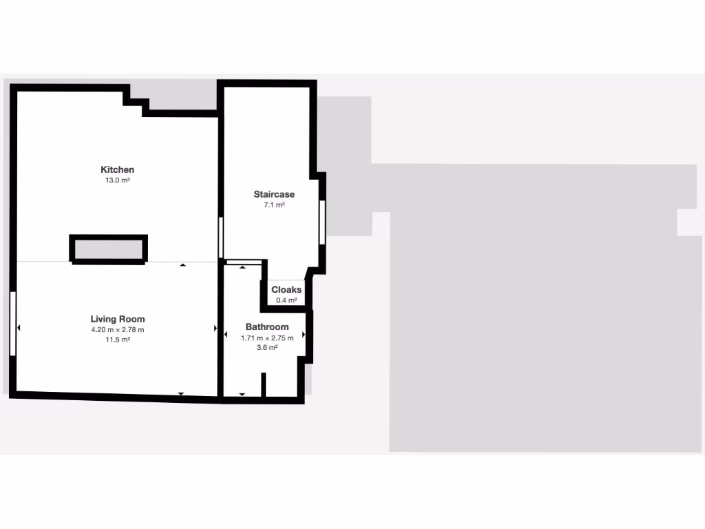
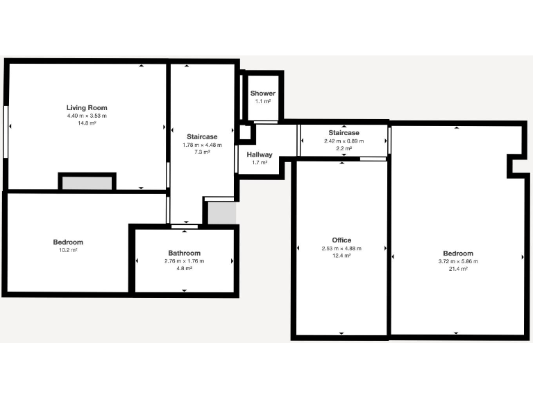
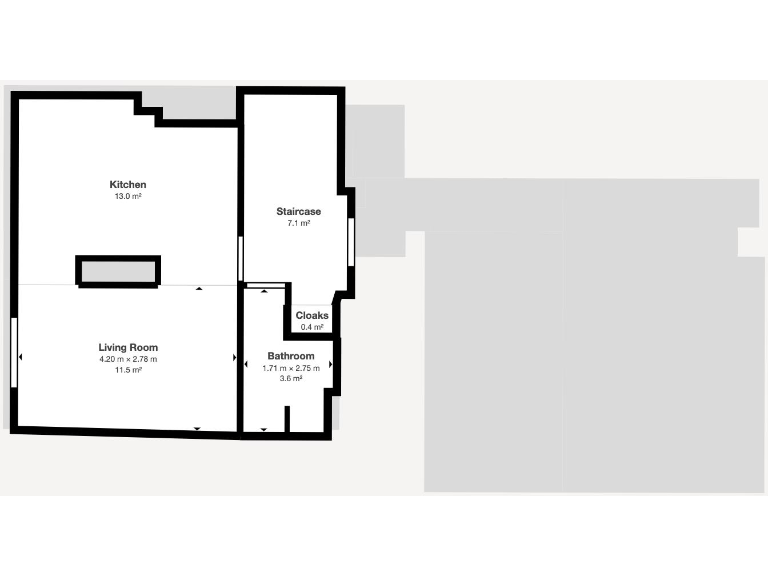
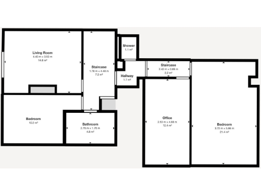
Set high above the Shibden Valley, this versatile five-bedroom semi-detached home balances period character with contemporary living. Multiple balconies, patios and a modern kitchen with island showcase uninterrupted valley views from nearly every principal room — ideal for relaxed family life and entertaining. The layout across several levels gives flexible space for home-working, multi-generational arrangements or separate reception and living zones.
Practical strengths include a detached garage, generous outdoor areas and useful cellar/storage. The property is freehold and benefits from mains gas heating with a boiler and radiators. Stamp duty is offered as a purchaser incentive for qualifying buyers, reducing upfront costs for first-time buyers and home movers.
Buyers should note the house dates from the early 20th century and has cavity walls assumed to have no added insulation, so improving thermal performance may be desirable. Council tax is above average for the area. Overall, this is a substantial family home with strong scenic appeal that will reward modest upgrading and insulation improvements.
5 bedroom detached house for sale in 4 John Naylor Lane, Luddenden Foot, Halifax, HX2 6DP, HX2 — £700,000 • 5 bed • 3 bath • 2138 ft²
4 bedroom detached house for sale in Clog Sole Road, Brighouse, HD6 — £450,000 • 4 bed • 4 bath • 2292 ft²
4 bedroom detached house for sale in Riverdale, Brearley, HX2 6HZ, HX2 — £600,000 • 4 bed • 2 bath • 1260 ft²
5 bedroom detached house for sale in Master Lane, Pye Nest, Halifax, HX2 — £550,000 • 5 bed • 2 bath • 2357 ft²
3 bedroom semi-detached house for sale in Crossleys Buildings, Halifax, West Yorkshire, HX3 — £425,000 • 3 bed • 2 bath • 1666 ft²
3 bedroom detached house for sale in Boy Lane, Halifax, HX3 — £225,000 • 3 bed • 2 bath • 776 ft²






































































































































































































