**Standout Features:**
- Detached bungalow in a private position
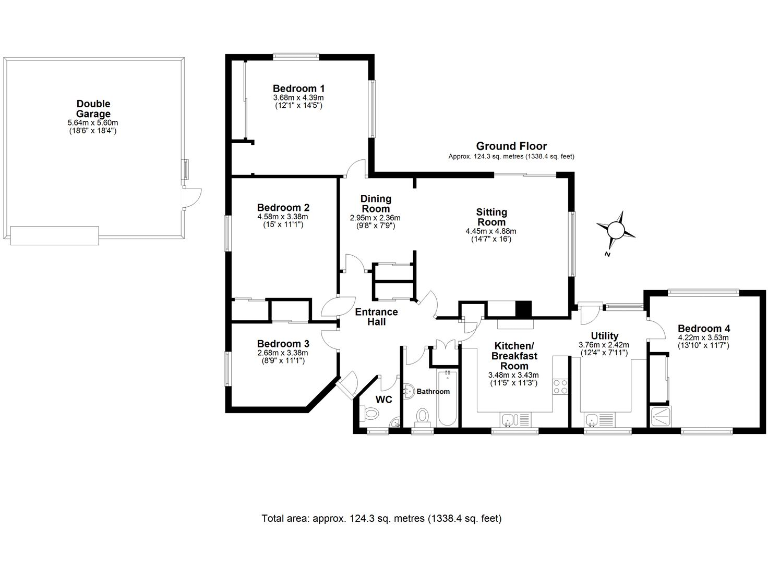
- Four spacious bedrooms
- Beautifully landscaped, secluded gardens
- Double garage and driveway parking
- Generous sitting/dining room with patio access
- Kitchen and utility room with potential for updates
- Freehold property in an affluent area
- Excellent mobile signal and ultra-fast broadband available
- Scope to alter/extend, subject to planning permission
**Summary:**
Discover a charming and spacious four-bedroom detached bungalow nestled in a tranquil Salcombe neighborhood, a short walk from picturesque beaches and the lively town center. Built in 1978, this freehold property boasts generous living areas, including a well-lit sitting/dining room with patio doors that open onto the beautifully private gardens.
With its inviting layout, including a functional kitchen with a utility room, this bungalow offers a blend of comfort and flexibility that is ideal for families or those looking for a serene retreat. The lovely exterior is complemented by vibrant garden borders and ample outdoor seating space, perfect for relaxation or entertaining.
While the exterior shows signs of the 1970s charm, the property presents significant renovation potential to tailor it to your personal tastes. Future plans for alterations can be explored, enhancing its value even further. A double garage and driveway parking offer convenience in this affluent community, where excellent mobile and broadband services add to its appeal. Don’t miss your chance—properties like this in Salcombe are rare and in high demand!
3 bedroom bungalow for sale in Round Berry Drive, Salcombe, Devon, TQ8 — £450,000 • 3 bed • 1 bath • 820 ft²
2 bedroom detached bungalow for sale in Park Rise, Salcombe, TQ8 — £450,000 • 2 bed • 1 bath • 1014 ft²
4 bedroom detached house for sale in Loring Road, Salcombe, TQ8 — £995,000 • 4 bed • 1 bath • 1974 ft²
4 bedroom semi-detached house for sale in Berry Close,, TQ8 — £350,000 • 4 bed • 1 bath • 936 ft²
5 bedroom detached house for sale in Longfield Drive, Salcombe, TQ8 — £795,000 • 5 bed • 3 bath • 2180 ft²
3 bedroom detached house for sale in Beadon Road, Salcombe, TQ8 — £695,000 • 3 bed • 2 bath • 1405 ft²










































































