**Standout Features:**
- Large, historic Georgian pub with grade II listing, ideal for experienced operators
- Flexible venue options for a music and dart space, with support available
- New connections for electricity, gas, and water
- Generous beer garden and off-street parking
- Residential quarters on the upper floors, including 2 bedrooms
- Easy access to local amenities and schools
**Potential Concerns:**
- Requires renovation and is sold as a fixer-upper; listed status may complicate repairs
- High crime area and classified as very deprived, which may influence foot traffic and investment decisions
- Initial building labor needed is beyond current operator's capacity
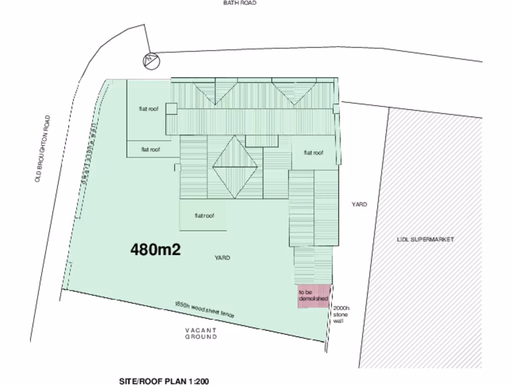
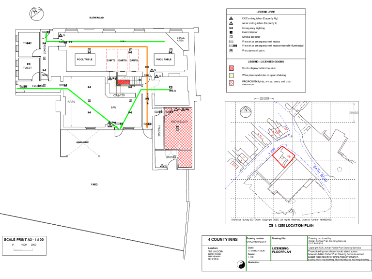
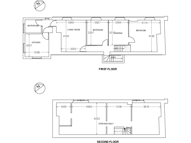
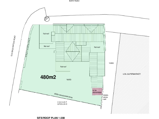
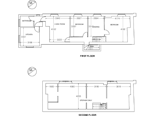
Nestled in a central location, this large Georgian pub offers a unique opportunity for skilled operators looking to revitalize a historic venue. With a total area of 3,229 sq ft, the property features a spacious ground floor for social activities, including a proposed function room with stage space, darts, and pool tables. The first floor provides residential living quarters, while the second floor has ample storage. With new utilities and a beer garden ready for use, the potential is significant, especially for those considering a joint venture with an independent pub company.
However, the property does require considerable renovation, and its listed building status may impose challenges on future alterations. Set in an area classified as having high crime rates and marked as very deprived, interested buyers should also weigh these factors against the opportunities presented here. Priced at £222,000, with a negotiable deposit, this historically rich investment can be transformed with vision and commitment—don’t miss out on the chance to create your own legacy in this classic venue.
Pub for sale in Confidential , SN14 — £795,000 • 6 bed • 1 bath
Pub for sale in Castle Hotel, New Park Street, Devizes, SN10 1DS, SN10 — £135,000 • 1 bed • 1 bath • 11946 ft²
Pub for sale in W-420652 - Angel, 3 Church Street, Westbury BA13 3BY, BA13 — £325,000 • 1 bed • 1 bath • 5198 ft²
Pub for sale in White Horse Inn, Compton Bassett, Calne, SN11 8RG, SN11 — £70,000 • 1 bed • 1 bath • 5372 ft²
Pub for sale in The Carpenters Arms, Church Street, Chippenham, SN15 2LB, SN15 — £675,000 • 1 bed • 1 bath • 5265 ft²
Pub for sale in W-420760 - Cross Keys, Midford Road, Bath BA2 5RZ, BA2 — £800,000 • 1 bed • 1 bath • 3782 ft²


















