Spacious Victorian family home with parking, garden and strong conversion potential, chain-free.
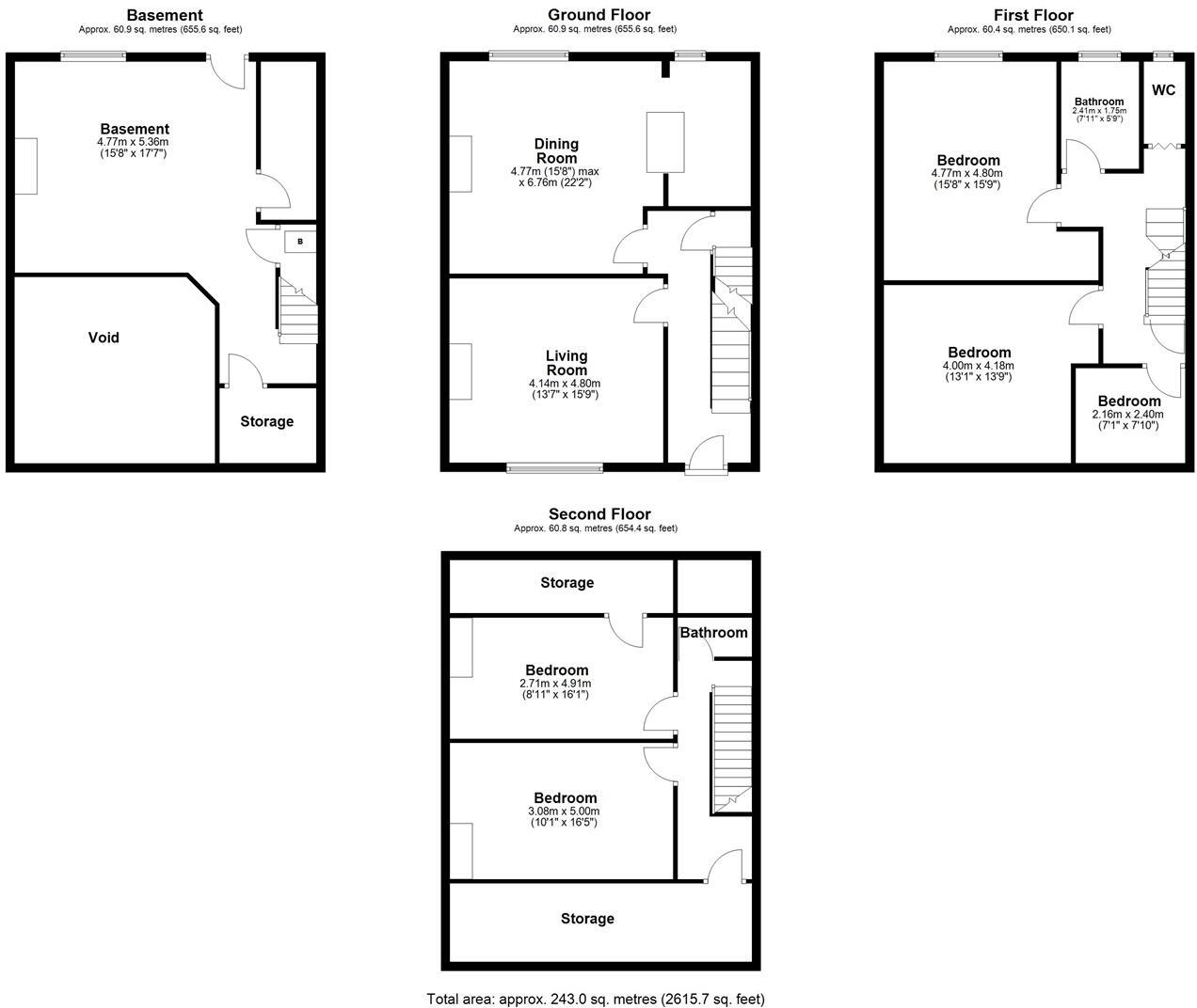
Five bedrooms across four floors with substantial living space
A substantial Victorian end-terrace laid out over four floors, this five-bedroom home combines period character with practical family space. High ceilings, deep skirtings and sash windows give strong original detail, while two large reception rooms and a generous kitchen-diner suit everyday living and entertaining.
The lower-ground cellar offers excellent potential for a self-contained flat or annex (subject to planning and consents), creating rental income or multi-generational living options. Off-street parking to the rear and a low-maintenance front and rear garden add urban convenience.
The property requires updating and cosmetic refurbishment throughout, which presents scope to add value but will need budget and time. The stone walls are likely uninsulated and the house is pre-1900 construction—buyers should commission a full survey and consider insulation and services upgrades. Offered freehold and chain-free with very low council tax, it suits a growing family or an investor prepared to renovate.
5 bedroom terraced house for sale in Trinity Street, Huddersfield, HD1 — £325,000 • 5 bed • 5 bath • 2528 ft²
5 bedroom terraced house for sale in Wood Street, Longwood, Huddersfield, HD3 — £150,000 • 5 bed • 2 bath • 1259 ft²
3 bedroom terraced house for sale in Moorside Avenue, Crosland Moor, Huddersfield, HD4 — £125,000 • 3 bed • 1 bath • 704 ft²
5 bedroom semi-detached house for sale in New North Road, Huddersfield, HD1 — £325,000 • 5 bed • 2 bath • 2896 ft²
5 bedroom terraced house for sale in Manchester Road, Slaithwaite, Huddersfield, HD7 — £385,000 • 5 bed • 2 bath • 1763 ft²
2 bedroom end of terrace house for sale in Manchester Road, Cowersley, Huddersfield, HD4 — £110,000 • 2 bed • 1 bath • 770 ft²










































































































