Two-bedroom ground-floor flat with garden, parking and a long lease in Felpham village.
Long lease — approx. 153 years remaining
Ground-floor flat with private rear garden
Allocated off-street parking space
Living/dining room with bay window and high ceilings
Electric storage heating; EPC rating D (higher running costs)
Exterior of building requires maintenance work
No onward chain — vacant possession possible
Local area records higher-than-average crime rates
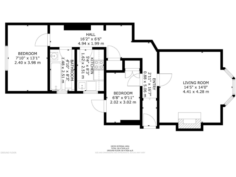
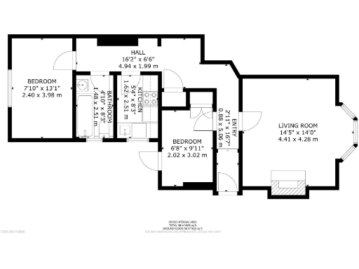
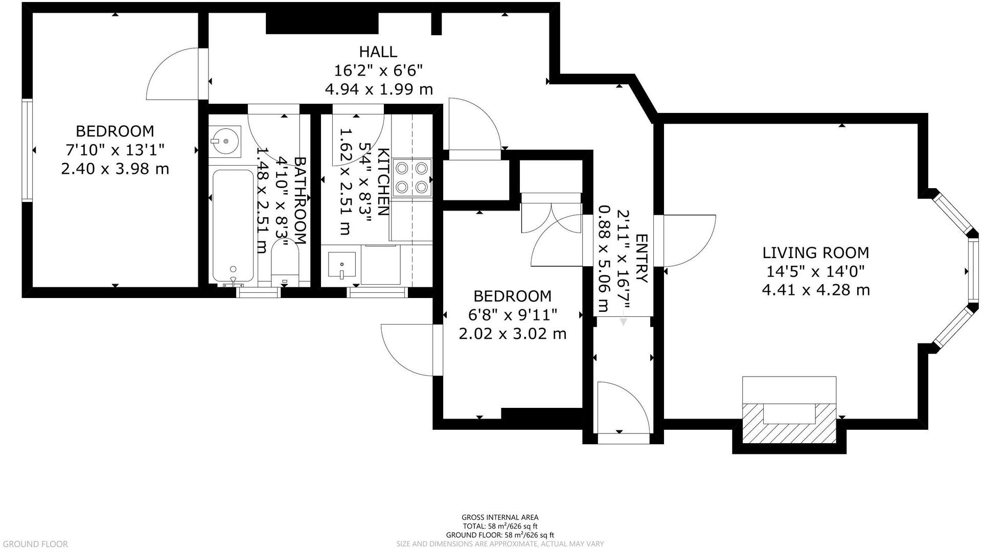
This ground-floor two-bedroom apartment sits in the heart of Felpham village, offered with no onward chain and a long lease (approx. 153 years). The layout is traditional and practical: entrance hall, living/dining room with bay window, separate kitchen, family bathroom and two bedrooms. It includes a private rear garden and an allocated off-street parking space—rare for a flat of this size.
The building dates from the 1930s–40s and retains period character such as high ceilings and bay glazing, though the exterior needs maintenance. Heating is by electric storage heaters and the Energy Performance Certificate is rated D, so expect higher running costs than modern gas-heated homes. The apartment is average-sized at around 626 sq ft and suits those seeking low-stairs living and garden access without a house’s upkeep.
Felpham village amenities are on the doorstep—cafés, shops, and local services—and the coast and sailing clubs are nearby, with Chichester around seven miles away. Practical advantages include a long lease, allocated parking and low local flood risk. Note the area records higher-than-average crime statistics; buyers should consider security improvements.
This property will appeal to downsizers or buyers wanting a village-centre flat with outdoor space and parking. It also offers investment potential given the long lease and seaside location, but requires some external maintenance and energy-upgrade considerations.
1 bedroom flat for sale in Felpham Road, Bognor Regis, PO22 — £180,000 • 1 bed • 1 bath • 628 ft²
2 bedroom flat for sale in Limmer Lane, Felpham , PO22 — £195,000 • 2 bed • 1 bath
2 bedroom flat for sale in Manor Copse, Felpham, PO22 — £279,950 • 2 bed • 2 bath • 1000 ft²
1 bedroom flat for sale in Waterloo Road, ., Bognor Regis, West Sussex, PO22 7EH, PO22 — £80,000 • 1 bed • 1 bath • 513 ft²
2 bedroom apartment for sale in Broom Field Way, Felpham, PO22 — £220,000 • 2 bed • 2 bath • 718 ft²
2 bedroom flat for sale in Felpham, West Sussex, PO22 — £225,000 • 2 bed • 1 bath






























































