**Standout Features:**
- Six spacious bedrooms, including two with ensuite shower rooms
- Beautifully maintained garden with South-facing views
- Original period features throughout, including high ceilings and fireplaces
- Dual aspect breakfast kitchen with modern appliances
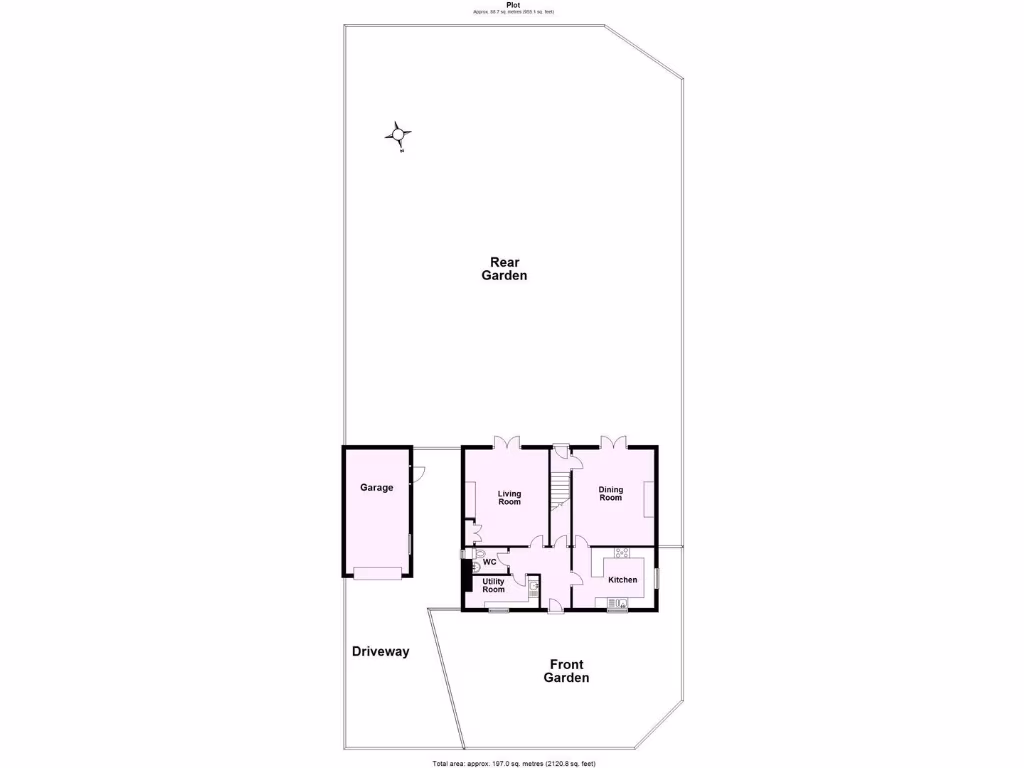
- Driveway, garage, and solar panels
- Quiet cul-de-sac location in a picturesque village
**Potential Downsides:**
- Solid brick walls assumed to have no insulation
- Some areas may require maintenance and modernization
**Summary:**
Experience country living in this stunning six-bedroom Victorian detached house boasting exquisite period features and panoramic countryside views. Nestled within the tranquil village of Wistow, this elegant home combines classic charm and modern comforts with high ceilings, decorative moldings, and an abundance of natural light. The heart of the home includes a generous breakfast kitchen flowing into a spacious dining room, perfect for family life and entertaining. The South-facing manicured gardens create an idyllic outdoor retreat, while the ample driveway and garage offer practicality.
Ideal for family living or as an investment with future renovation potential, this property offers a unique opportunity to secure a larger home with character in a highly sought-after area. While the solid brick construction assumes no insulation, this could also allow for personalized updates to improve energy efficiency. Don’t miss out on this exclusive offering—embrace peaceful rural living within easy reach of York and Selby!
6 bedroom detached house for sale in Garmancarr Lane, Wistow, Selby, YO8 — £425,000 • 6 bed • 3 bath • 646 ft²
4 bedroom detached house for sale in The Green, Wistow, Selby, YO8 — £400,000 • 4 bed • 2 bath • 1226 ft²
4 bedroom detached house for sale in The Green, Wistow, Selby, YO8 — £400,000 • 4 bed • 2 bath • 1141 ft²
4 bedroom detached house for sale in Wistow Road, Selby, YO8 — £500,000 • 4 bed • 2 bath • 1389 ft²
4 bedroom detached house for sale in Great Close, Cawood, YO8 — £440,000 • 4 bed • 3 bath • 1572 ft²
4 bedroom semi-detached house for sale in Station Road, Wistow, YO8 — £335,000 • 4 bed • 2 bath • 1389 ft²










































































































