Compact freehold house with garden and parking, ideal for easy retirement living.
Freehold two-bedroom mid-terrace, built 1996–2002
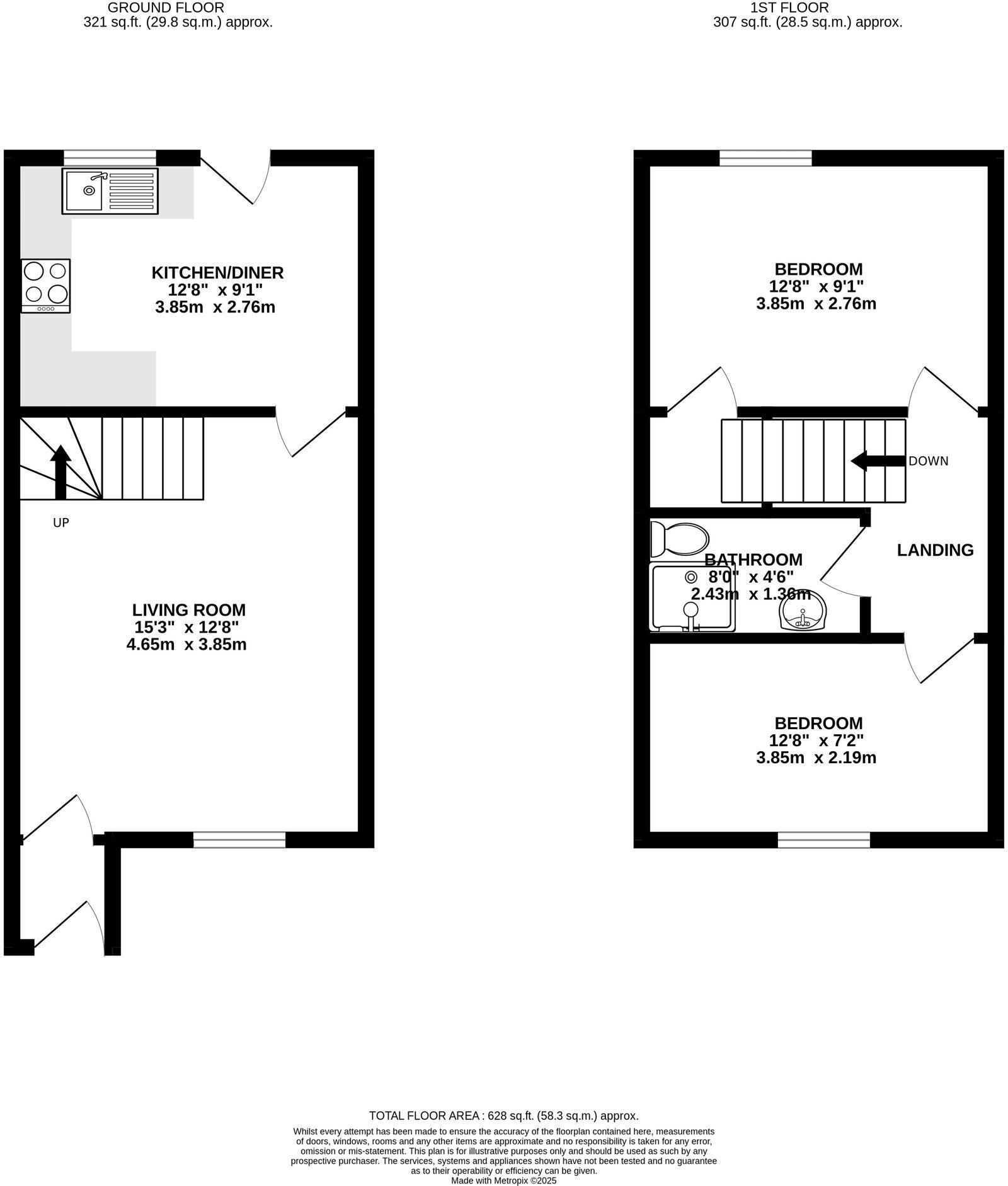
Tucked on Bulrush Close in St. Mellons, this two-bedroom mid-terrace offers low-maintenance, single-floor living with a private enclosed garden and two allocated parking spaces. Built around 1996–2002 and offered freehold, the home suits someone seeking a straightforward, compact retirement property with easy road and bus links into Cardiff.
Inside, the living space flows to a modern kitchen/diner and small rear garden — a practical layout for relaxed days at home or occasional entertaining. Both bedrooms are doubles and share a contemporary shower room, while gas central heating and post-2002 double glazing keep running costs manageable. Broadband speeds are fast and mobile signal is excellent at the address.
Buyers should note the property is modest in size (about 635 sq ft) on a small plot and has an EPC rating of D. The wider neighbourhood is classified as hard-pressed with higher local deprivation; crime levels are average. These factors affect long-term resale values and should be weighed alongside the property’s affordability and transport improvements, including the forthcoming Cardiff Parkway station.
Overall, this is a practical, well-located small terrace for a retiree or buyer seeking an entry-level freehold home with low outdoor upkeep. It delivers parking, a usable garden and straightforward access to Cardiff, while requiring realistic expectations about size, energy efficiency, and local area challenges.
2 bedroom terraced house for sale in Sanderling Drive, St. Mellons, CF3 — £230,000 • 2 bed • 1 bath • 646 ft²
2 bedroom terraced house for sale in Ellesmere Court, St. Mellons, Cardiff, CF3 — £180,000 • 2 bed • 2 bath • 840 ft²
3 bedroom terraced house for sale in Gresford Close, Cardiff, CF3 — £200,000 • 3 bed • 1 bath • 951 ft²
2 bedroom terraced house for sale in Pavaland Close, Cardiff, CF3 — £185,000 • 2 bed • 1 bath • 596 ft²
3 bedroom semi-detached house for sale in Heathcliffe Close, Cardiff, CF3 — £270,000 • 3 bed • 1 bath
3 bedroom terraced house for sale in Blaina Close, St Mellons, Cardiff, CF3 0EB, CF3 — £235,000 • 3 bed • 1 bath


























































