Affordable town-centre two-bedroom flat ideal for first-time buyers or buy-to-let investors.
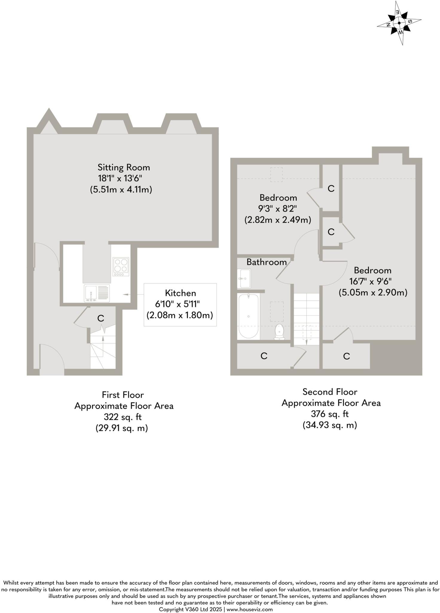
Two double bedrooms, top-floor duplex layout
Allocated underground parking included
Chain free for simpler purchase process
Leasehold with 92 years remaining
Electric storage heating; EPC rating D
Solid brick walls likely uninsulated — potential retrofit needed
No private garden; communal converted-mill setting
Located in a deprived area with very high local crime rates
This top-floor duplex in The Maltings offers straightforward, low-maintenance living close to Dereham town centre. The split-level layout, large windows and high ceilings create a bright, airy reception space while two double bedrooms suit couples or sharers.
Practical features include allocated underground parking and a chain-free sale for a simpler purchase. The flat is leasehold with 92 years remaining and has electric storage heating; the EPC is D. There is no private garden and the property sits within a converted mill development, so communal areas are likely shared.
Buyers should note material considerations before viewing: the property is in a deprived area with very high local crime rates, the building’s solid brick walls likely lack cavity insulation, and heating is electric storage — all factors affecting running costs. The flat suits first-time buyers seeking an affordable town-centre home or landlords targeting rental demand, provided lease length and retrofit needs are acceptable.
1 bedroom flat for sale in The Maltings, Dereham, NR19 — £85,000 • 1 bed • 1 bath • 421 ft²
1 bedroom flat for sale in The Maltings, Dereham, NR19 — £80,000 • 1 bed • 1 bath • 431 ft²
1 bedroom flat for sale in The Maltings, Dereham, NR19 — £75,000 • 1 bed • 1 bath • 397 ft²
1 bedroom flat for sale in The Maltings, Dereham, NR19 — £85,000 • 1 bed • 1 bath • 431 ft²
1 bedroom flat for sale in Dereham, Norfolk, NR19 — £60,000 • 1 bed • 1 bath • 383 ft²
2 bedroom semi-detached house for sale in Malthouse Court, Dereham, NR20 — £170,000 • 2 bed • 1 bath • 395 ft²






























