Bright top-floor apartment with private roof terrace and convenient transport links.
Secure block with fob entry and underground garage parking
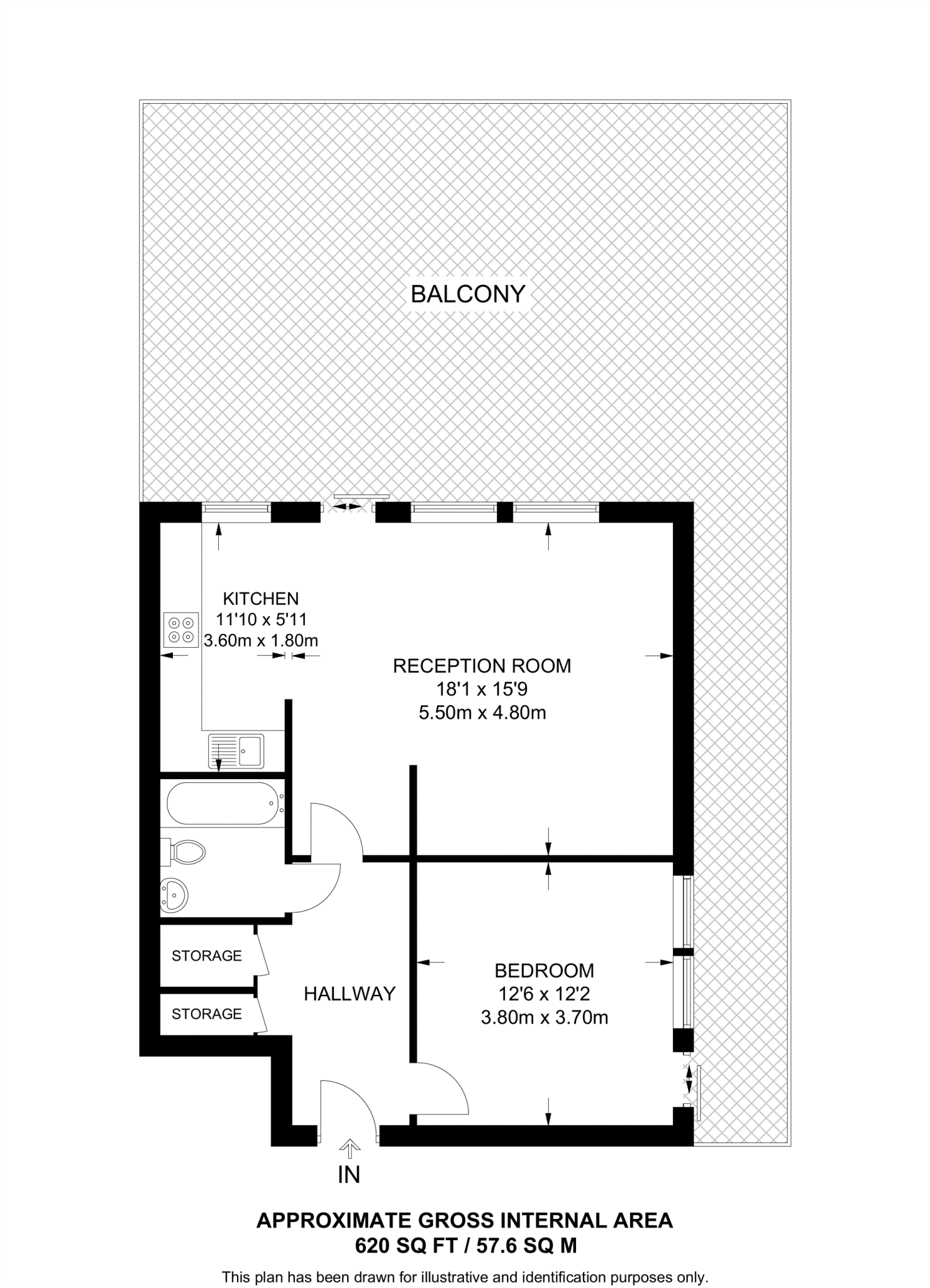
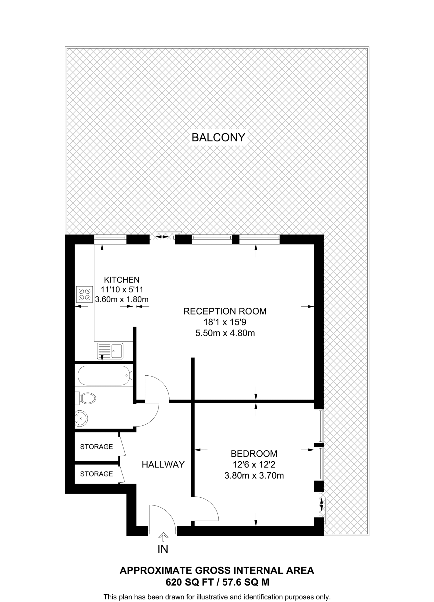
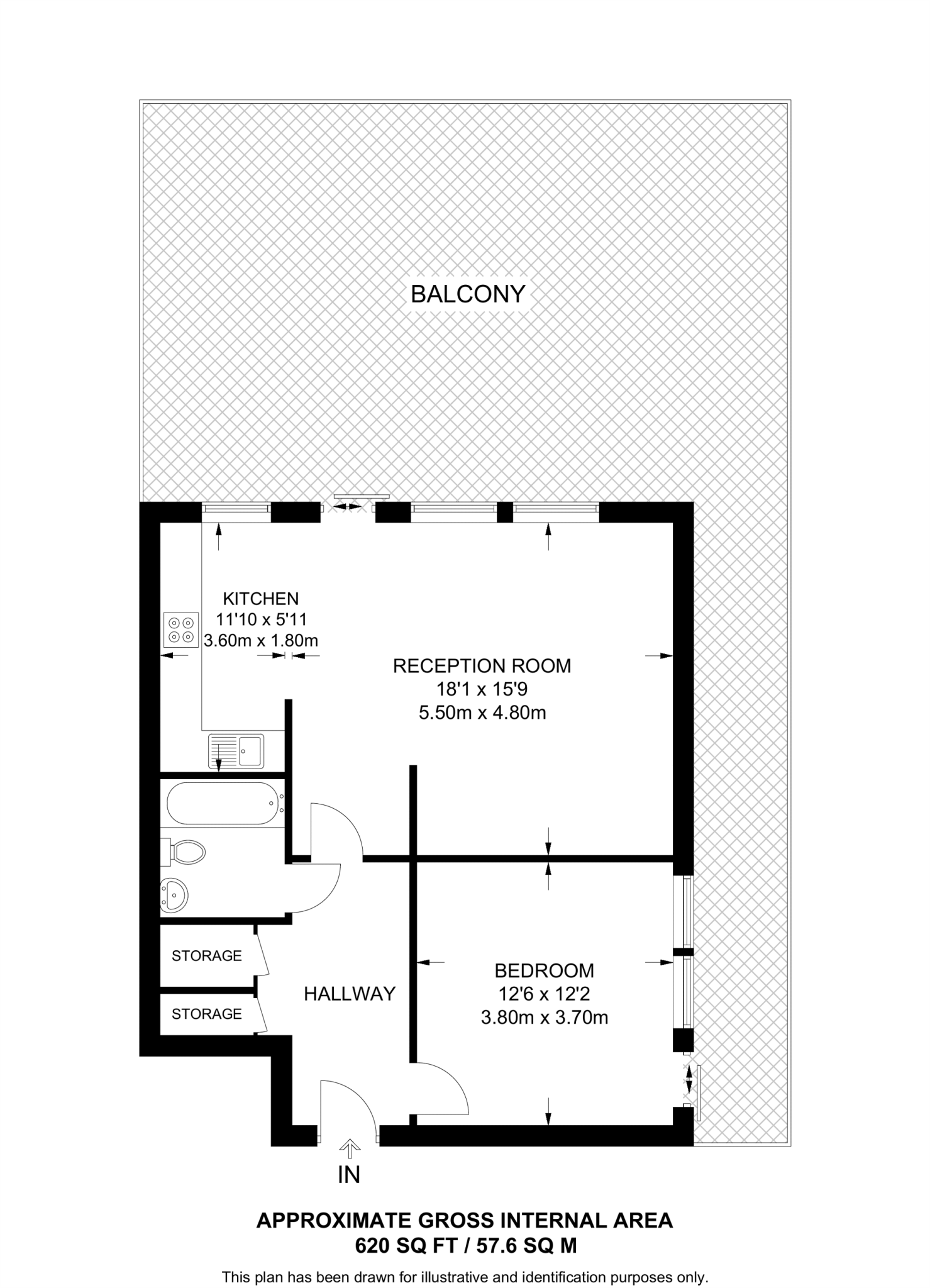
This bright one-bedroom penthouse sits on the top floor of a secure block in Isle of Dogs, offering a private roof terrace and underground parking. The spacious reception and modern fitted kitchen with integrated appliances create a comfortable, low-maintenance living space ideal for a first-time buyer seeking a move-in ready home or a city pied-à-terre.
Practical considerations are clear: heating is by electric room heaters rather than central gas, and the property is leasehold with an average annual service charge of £3,300. The local area shows signs of deprivation and recorded crime is above average, so buyers should weigh neighbourhood factors alongside the apartment’s conveniences.
Transport and local amenities are strong selling points—Mudchute DLR and nearby riverboat services are within easy reach, and a wide range of shops, cafes and leisure facilities are on the doorstep. The long remaining lease (approximately 230 years) and secure entry system are useful tenure and safety features.
Overall, this property offers a bright, modern living environment with a rare private roof terrace and parking, balanced by higher service charges, electric heating, and the surrounding area’s social indicators. It suits buyers prioritising location, outdoor roof space and straightforward modern interiors.
1 bedroom flat for sale in Compass Point, Tower Hamlets, London, E14 — £350,000 • 1 bed • 1 bath • 547 ft²
2 bedroom penthouse for sale in Sherwood Gardens, London, E14 — £400,000 • 2 bed • 2 bath • 743 ft²
2 bedroom flat for sale in Casson Apartments, E14, Tower Hamlets, London, E14 — £475,000 • 2 bed • 2 bath • 829 ft²
1 bedroom flat for sale in Saltwell Street, Poplar, E14 — £325,000 • 1 bed • 1 bath • 573 ft²
3 bedroom flat for sale in Boardwalk Place,
South Quay, E14 — £1,100,000 • 3 bed • 3 bath • 1733 ft²
3 bedroom penthouse for sale in Ares Court, Homer Drive, Isle Of Dogs, London, E14 — £1,000,000 • 3 bed • 3 bath • 2154 ft²






























































































































































































































