**Property Highlights:**
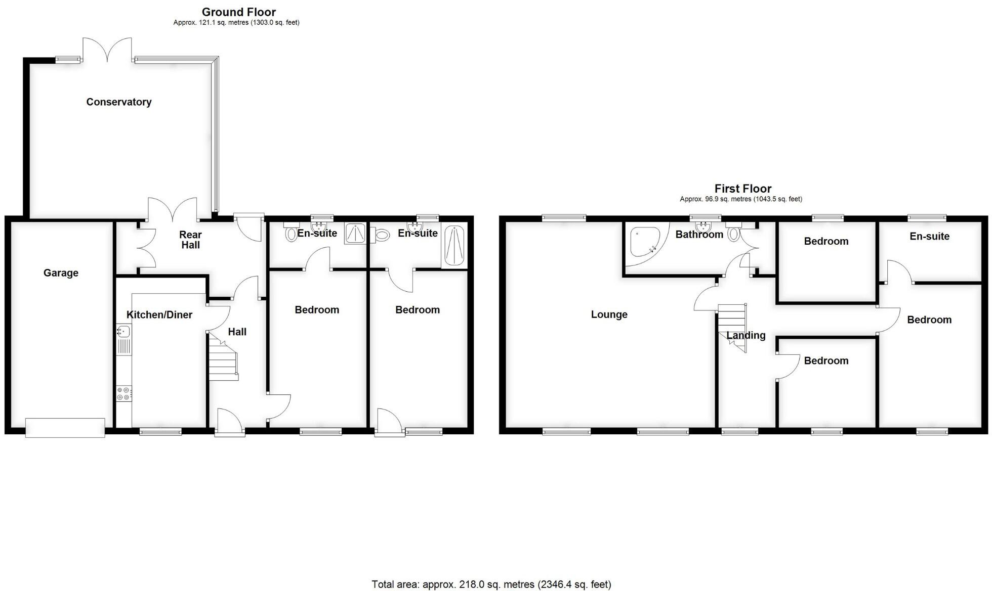
- 8-bedroom guesthouse with additional manager's accommodation
- Total accommodation of 4,000 sqft on a sprawling 0.45-acre lot
- Two separate buildings, including a welcoming front guest area and a private manager's home
- Features include a kitchen, communal dining room, and large conservatory
- Set in a low-crime, affluent area with excellent mobile and broadband connectivity
- Requires renovation – great potential for business-minded investors
This unique guesthouse creates a wonderful opportunity for savvy investors or families looking to blend residential and business entitlements. Comprising two thoughtfully arranged buildings, the main guesthouse offers seven well-sized rooms, a communal dining area, and a kitchen ready for transformation. The separate manager's accommodation boasts three bedrooms and a spacious living area, complemented by a large conservatory that leads to private gardens—ideal for relaxation or leisure activities.
Situated in the thriving market town of Boston, known for its vibrant community, excellent schools, and robust retail and sporting facilities, this property is positioned for future success. Although the property requires renovation, it offers ample potential to modernize and expand, making it a savvy investment in a growing area. With very low council tax and a rateable value that supports business operations, this guesthouse is a promising prospect not to be overlooked. Act quickly—opportunities like this don't stay on the market long!
Commercial property for sale in London Road, Boston, PE21 — £849,000 • 17 bed • 10 bath • 7101 ft²
8 bedroom semi-detached house for sale in Spilsby Road, Boston, PE21 — £625,000 • 8 bed • 4 bath • 6100 ft²
6 bedroom detached house for sale in Norfolk Street, Boston, Lincolnshire, PE21 — £265,000 • 6 bed • 6 bath • 1895 ft²
5 bedroom detached house for sale in Horncastle Road, Cowbridge, Boston, PE22 — £535,000 • 5 bed • 6 bath • 3837 ft²
5 bedroom detached house for sale in King Street, Boston, Lincolnshire, PE21 — £195,000 • 5 bed • 3 bath • 1380 ft²
6 bedroom semi-detached house for sale in Tawney Street, Boston, Lincolnshire, PE21 , PE21 — £140,000 • 6 bed • 2 bath • 1588 ft²


































































































































