Spacious two-bedroom with balcony, parking and quick District line access to central London.
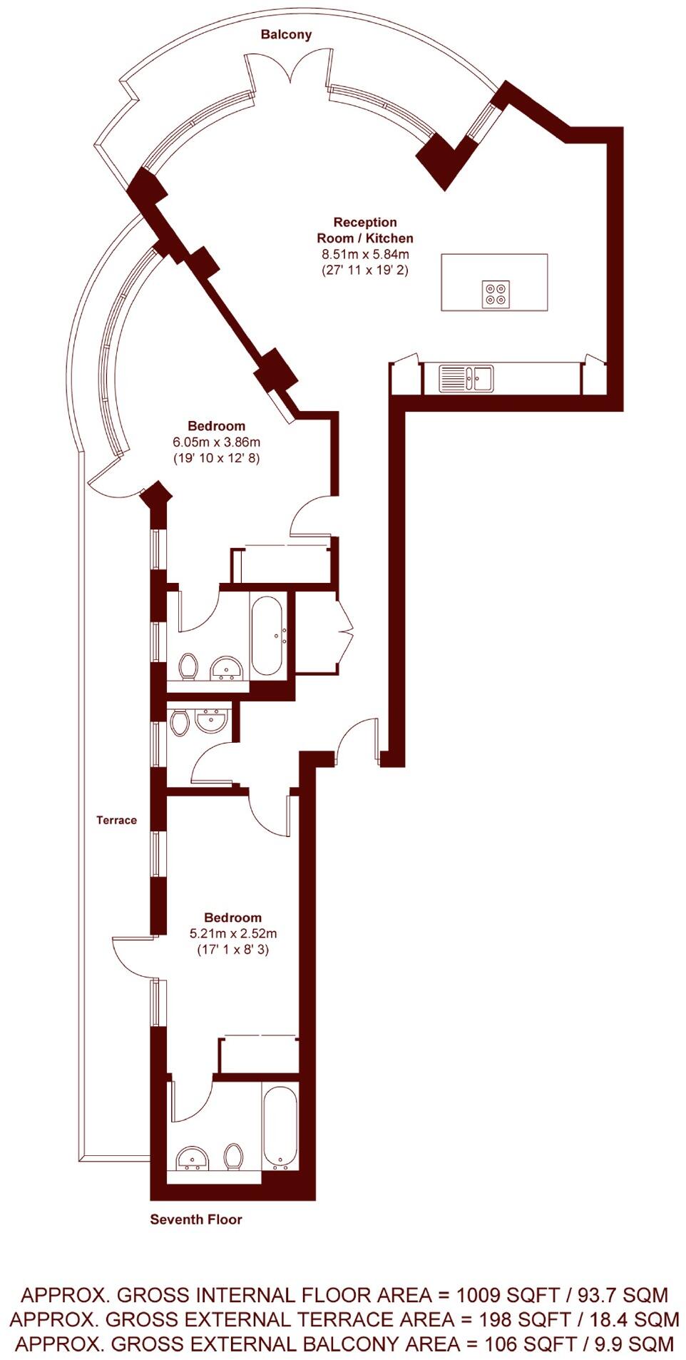
- Penthouse apartment with panoramic views and private balcony
- Large open-plan living area with central kitchen island
- Two double bedrooms and two bathrooms
- Allocated off-street parking included
- Chain free with a very long 988-year lease
- Service charge £3,961pa; ground rent £450pa
- Council Tax Band E (above-average cost)
- Solid brick construction; no known insulation, average broadband
A bright penthouse apartment offering almost 1,010 sq ft of open-plan living, two double bedrooms and two bathrooms. Large windows and a balcony provide panoramic views, while an internal layout centred on a contemporary kitchen island creates an easy flow for everyday life and entertaining. Allocated off-street parking and chain-free sale simplify moving in.
The property sits conveniently for Wimbledon Park high street and the District line, with a very affluent neighbourhood and several outstanding schools within easy reach — attractive for families and professionals. The long lease (988 years) removes typical lease-related buying barriers.
Buyers should note the annual service charge (£3,961) and ground rent (£450), and that council tax sits in Band E. The building dates from c.1900–1929 with solid brick walls (no known insulation), and broadband speeds are average — practical considerations for anyone planning major refurbishment or home-working.
Overall this is a well-proportioned, contemporary-style penthouse with clear commuter and school advantages, strong internal space, and some ongoing ownership costs to factor into a budget-conscious purchase.
1 bedroom penthouse for sale in Phoenix House, 123-125 Merton Road, London, SW19 — £550,000 • 1 bed • 1 bath • 600 ft²
2 bedroom penthouse for sale in Hartfield Road, London, SW19 — £795,000 • 2 bed • 2 bath • 815 ft²
2 bedroom penthouse for sale in Hardwicks Square, London, SW18 — £475,000 • 2 bed • 2 bath • 988 ft²
2 bedroom apartment for sale in Wimbledon Hill Road, London, SW19 — £950,000 • 2 bed • 2 bath • 1080 ft²
2 bedroom flat for sale in Worple Road, London, SW19 — £930,000 • 2 bed • 2 bath • 1089 ft²
2 bedroom flat for sale in Massey House, Hartfield Road, Wimbledon, SW19 — £749,950 • 2 bed • 2 bath • 824 ft²


































