Well-presented single-level living with gardens, garage and flexible loft space.
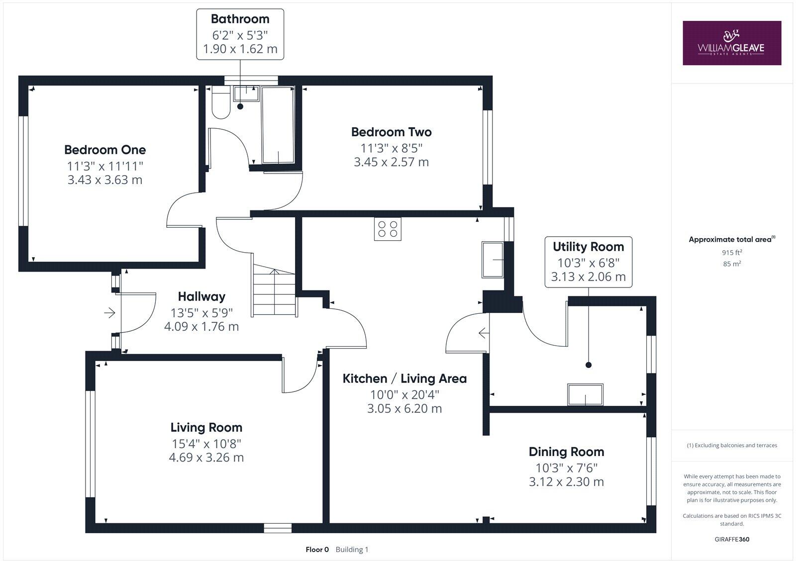
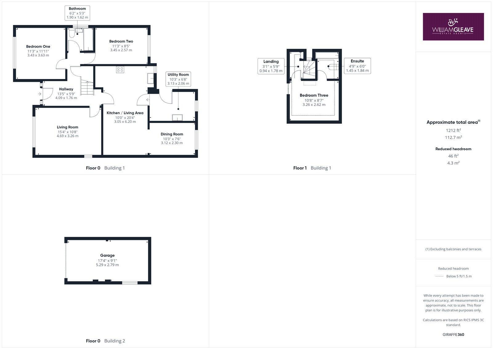
- Detached three-bedroom bungalow with two bathrooms
- Bright open-plan kitchen/dining/living and separate living room
- Garage plus ample off-street parking and driveway
- Large front and rear gardens, well landscaped
- Loft used as bedroom with ensuite offers flexible space
- Double glazing installed before 2002; may require upgrade
- Built 1967–1975; some original elements remain
- Council tax above average; tenure not specified
A beautifully presented three-bedroom detached bungalow on Melbreck Avenue, offering single-level living in Hawarden. The home centres on a bright open-plan kitchen, dining and living area with modern fittings, plus a separate living room and two contemporary bathrooms. Generous front and rear gardens and ample off-street parking, including a garage, give outdoor space and easy vehicle access.
Built in the late 1960s/early 1970s, the property combines period proportions with recent upgrades — the kitchen/dining area appears renovated and the home is well maintained throughout. Double glazing is installed (pre-2002) and heating is mains-gas boiler with radiators. The loft has been used as an additional bedroom with ensuite, offering flexible accommodation for guests or hobbies.
Practical points to note: council tax is above average and the tenure is not specified, so buyers should confirm ownership details. Some elements (double glazing fitted before 2002, original build era) may benefit from future modernization to improve thermal efficiency. Local connectivity is strong — fast broadband and good road links to Chester, Wirral and Liverpool — though mobile signal is average.
This bungalow will appeal to downsizers seeking comfortable, single-level living in a sought-after Hawarden location, and to buyers looking for a well-presented home with gardens and parking. Viewings are recommended to appreciate the layout, garden size and flexible loft space.
3 bedroom bungalow for sale in Mansfield Avenue, Hawarden, Deeside, Flintshire, CH5 — £260,000 • 3 bed • 1 bath • 1077 ft²
3 bedroom detached house for sale in Willow Crescent, Hawarden, CH5 — £325,000 • 3 bed • 2 bath • 1023 ft²
3 bedroom detached bungalow for sale in Mountfield Road, Hawarden, CH5 — £270,000 • 3 bed • 2 bath • 1001 ft²
3 bedroom bungalow for sale in Glynnedale Park, Hawarden, Deeside, Flintshire, CH5 — £350,000 • 3 bed • 1 bath • 1526 ft²
3 bedroom detached bungalow for sale in Moorfield Road, Hawarden, CH5 — £240,000 • 3 bed • 1 bath • 1733 ft²
3 bedroom bungalow for sale in Bracken Close, Broughton, Chester, Flintshire, CH4 — £250,000 • 3 bed • 1 bath • 847 ft²










































































































































