Chain-free five-bedroom family home with garden and parking near transport.
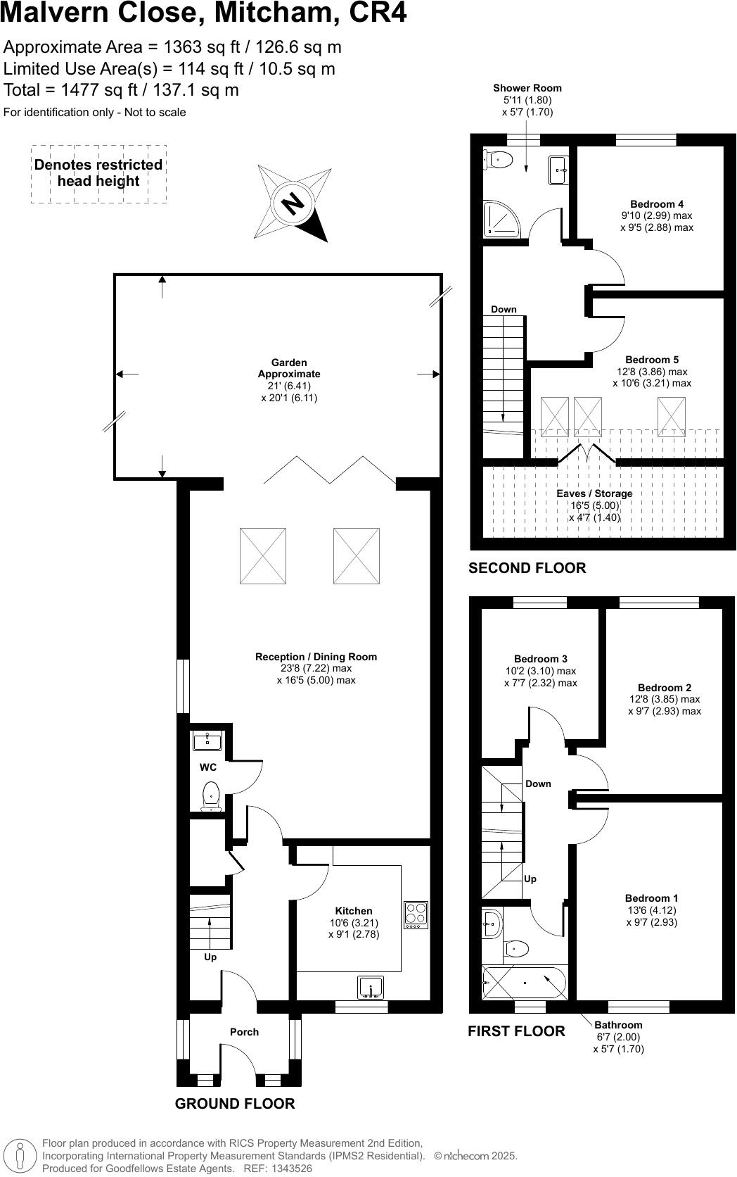
- Newly built/extended five-bedroom end-of-terrace, freehold
- Approximately 1,477 sq ft internal living space
- Open-plan living/dining room with skylights and bi-fold doors
- Loft conversion: two double bedrooms and separate shower room
- Substantial block-paved forecourt providing off-street parking
- Sold with 10-year NHBC guarantee and EPC rating B
- Top-floor restricted head height in places (loft conversion)
- Cavity walls assumed without added insulation; improvement potential
This newly built and extended five-bedroom end-of-terrace offers 1,477 sq ft of modern family living across three levels. A bright open-plan living/dining room with skylights and bi-fold doors leads directly to a low-maintenance rear garden, while a contemporary fitted kitchen and ground-floor WC complete the flexible ground floor. The loft conversion provides two further double bedrooms and a separate shower room, creating genuine space for children, home working or guest accommodation.
Built to a current standard and sold freehold with a 10-year NHBC guarantee, the property scores EPC B and benefits from mains gas central heating and double glazing. A substantial block-paved forecourt offers off-street parking, and the cul-de-sac location keeps traffic to a minimum while putting Mitcham Eastfields station and several highly rated schools within easy reach.
Buyers should note the top floor has some restricted head height in parts of the loft conversion, which may affect wardrobe placement and storage. Cavity walls were built without added insulation (assumed), so there is scope to improve thermal performance. Council tax banding is not yet confirmed. Overall this is a spacious, modern family home offered chain free and ready to occupy.
5 bedroom semi-detached house for sale in Commonside East, Mitcham, CR4 — £700,000 • 5 bed • 2 bath • 1700 ft²
3 bedroom end of terrace house for sale in Bank Avenue, Mitcham, CR4 — £625,000 • 3 bed • 2 bath • 1340 ft²
3 bedroom terraced house for sale in Eldertree Way, Mitcham, CR4 — £550,000 • 3 bed • 1 bath • 965 ft²
4 bedroom terraced house for sale in Lexden Road, Mitcham, CR4 — £600,000 • 4 bed • 2 bath • 1605 ft²
4 bedroom semi-detached house for sale in Middlesex Road, Mitcham, CR4 — £550,000 • 4 bed • 2 bath • 1345 ft²
3 bedroom end of terrace house for sale in Manor Road, Mitcham, CR4 — £500,000 • 3 bed • 1 bath • 1488 ft²






































































