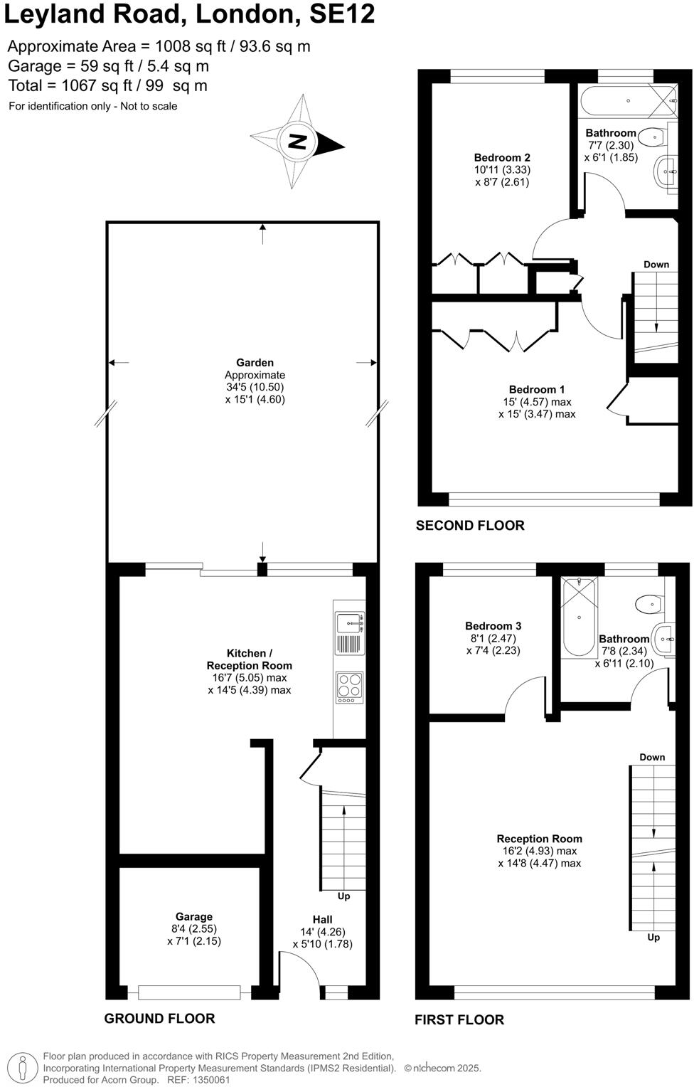
Three-storey family home with 34ft garden and off-street parking, near Lee station.
Three bedrooms across three floors, suitable for small families
This three-bedroom mid-terrace townhouse on Leyland Road offers practical family living across three floors. The reception room and open-plan kitchen/diner open to a landscaped 34ft rear garden — a rare outdoor space for the area — while an integral garage and off-street parking add everyday convenience.
Built in the late 1960s/1970s and presented in a contemporary style, the house benefits from double glazing, mains gas central heating and an Energy Efficiency Rating of C. Large storage space is useful for bikes and family gear, and the property sits within walking distance of Lee station with regular services to central London. Several well-rated primary and secondary schools and local shops, parks and Blackheath Village are close by.
There is scope to extend or reconfigure subject to the necessary consents, making this an attractive option for a growing family seeking extra space and long-term value. The home’s footprint and room sizes are modest, suited to couples or small families.
Notable cautions: the area records higher-than-average crime levels, the plot is relatively small with limited rear expanse, and the house’s timber-frame walls are only partially insulated (as built), so further insulation or upgrading works may be desirable. Viewing is recommended to assess layout and potential.
3 bedroom terraced house for sale in Taunton Road, LONDON, London, SE12 — £570,000 • 3 bed • 1 bath • 1026 ft²
3 bedroom terraced house for sale in Linchmere Road, Lee, SE12 — £550,000 • 3 bed • 2 bath • 1016 ft²
3 bedroom semi-detached house for sale in Linchmere Road, Lee, SE12 — £625,000 • 3 bed • 2 bath • 1184 ft²
4 bedroom terraced house for sale in Slaithwaite Road, London, SE13 — £530,000 • 4 bed • 2 bath • 1268 ft²
4 bedroom terraced house for sale in Horncastle Road, Lee, London, SE12 — £540,000 • 4 bed • 1 bath • 1274 ft²
5 bedroom detached house for sale in Upwood Road, Lee, London, SE12 — £1,375,000 • 5 bed • 3 bath • 2168 ft²














































































































