Spacious family living near beaches, marinas and village amenities.
Harbour views from upper terrace and kitchen living area
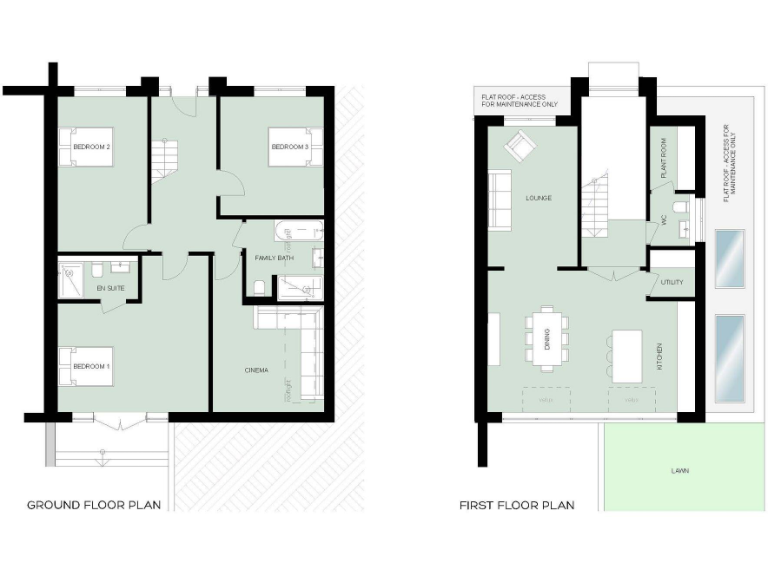
This off-plan, four-bedroom semi-detached house in Lilliput offers high-spec contemporary living with striking Poole Harbour views from an upper terrace. Designed across two floors and extending to about 1,750 sq ft, the home features an impressive open-plan kitchen/dining/living space with full-height glazing and bi-fold doors, a separate snug, and a principal suite with private courtyard access. Underfloor heating, bespoke fixtures, and quality finishes are specified throughout for low-maintenance, comfortable year-round living.
The plot is generous for the area, set behind secure gates with a sweeping driveway and integrated parking for multiple cars. Landscaped terraces and several private outdoor areas are designed for easy entertaining and relaxed sunbathing. Proximity to Lilliput Village, Parkstone Marina, and Sandbanks beaches, together with highly regarded local schools, makes this a practical family home or a secure lock-up-and-leave coastal base.
Buyers should note this is a purchase off plan with completion expected in early 2026; the property is new-build and freehold. The listing includes an EPC rating of C and underfloor heating, but some technical details are unclear in the supplied data: glazing install dates are unknown, and an entry records cavity walls “as built” with no insulation assumed. Council tax is described as expensive. These points may affect running costs and any future improvement decisions.
Overall, the house combines a premium specification and enviable location with the typical considerations of an off-plan purchase. Viewing a site visit and reviewing technical build and warranty documents prior to exchange is recommended to confirm detailing, insulation, and final finishes.
4 bedroom detached house for sale in Blake Dene Road, Lilliput, BH14 — £1,250,000 • 4 bed • 3 bath • 3000 ft²
4 bedroom detached house for sale in Alia, Partridge Walk, Lilliput, Poole BH14 — £2,500,000 • 4 bed • 3 bath • 3355 ft²
4 bedroom detached house for sale in Partridge Walk, Lilliput, BH14 — £2,500,000 • 4 bed • 5 bath • 3355 ft²
4 bedroom detached house for sale in Dorset Lake Avenue, Lilliput, Poole, Dorset, BH14 — £1,999,950 • 4 bed • 3 bath • 2691 ft²
4 bedroom detached house for sale in Dorset Lake Avenue, Lilliput, Poole, Dorset, BH14 — £1,700,000 • 4 bed • 3 bath • 2713 ft²
5 bedroom detached house for sale in Dorset Lake Avenue, Poole, Dorset, BH14 — £1,650,000 • 5 bed • 3 bath • 2824 ft²


























