New-build 10-year guarantee, Magnet kitchen and two off-street parking spaces.
10-year new-build guarantee included
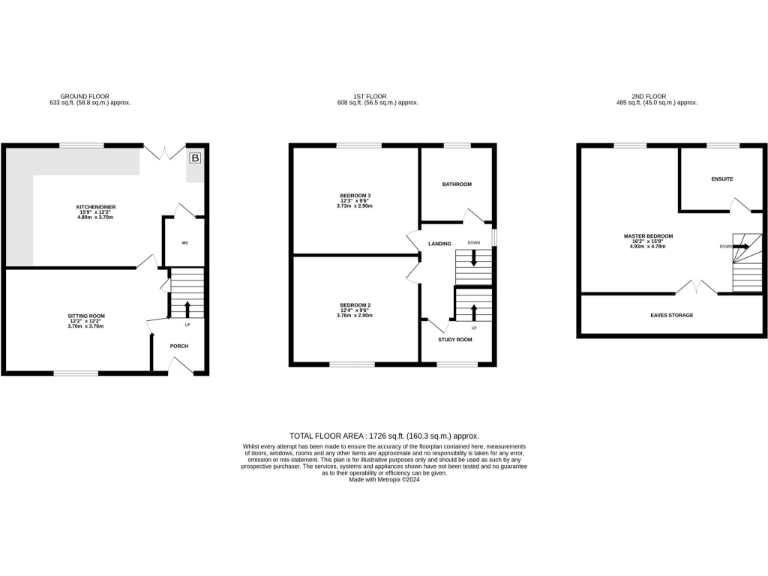
This newly built three-bedroom semi-detached house on Sun Street offers practical family living across three floors with a 10-year new-build guarantee. The bright Magnet kitchen/diner opens onto a paved patio and small garden, while the generous main bedroom occupies the top floor with ensuite and far-reaching views. Two off-street parking spaces plus further parking nearby make arrival and storage straightforward.
Specification is modern and practical: integrated Beko appliances, cushioned vinyl to wet areas, oak-faced internal doors, UPVC double glazing and a Glow-worm combi boiler. Some finish choices may still be selectable depending on build progress. The property is freehold and presented with straightforward, contemporary fittings suitable for busy households or buy-to-let investors seeking new-build security.
Notable items for buyers: council tax band and EPC are not yet confirmed, the plot is modest in size, and particulars note that fixtures and appliances have not been independently tested. Boundaries should be verified against the title deeds on purchase. Overall, this is a low-maintenance, energy-efficient starter or family home in a well-connected village environment between Skipton and Keighley.
3 bedroom semi-detached house for sale in Sun Street, Eastburn, West Yorkshire, BD20 — £297,500 • 3 bed • 2 bath • 1151 ft²
3 bedroom semi-detached house for sale in The Knoll, Keighley, West Yorkshire, BD22 — £210,000 • 3 bed • 3 bath • 953 ft²
3 bedroom semi-detached house for sale in Low Whin Close, Keighley, Bradford, BD22 — £210,000 • 3 bed • 3 bath • 1288 ft²
3 bedroom semi-detached house for sale in Grange Terrace, Eastburn, BD20 — £320,000 • 3 bed • 2 bath • 1064 ft²
3 bedroom semi-detached house for sale in Shann Lane,
Keighley,
BD20 6DY, BD20 — £249,995 • 3 bed • 1 bath • 825 ft²
3 bedroom semi-detached house for sale in Bailey Street, Earby, BB18 — £269,950 • 3 bed • 2 bath • 961 ft²














































































































































































