### Standout Features:
- Two double bedrooms with fitted wardrobes
- Recently renovated kitchen (July 2023) and luxurious shower room (2023)
- Charming private balcony for outdoor enjoyment
- Allocated parking and visitor parking available
- Conveniently located on a main bus route
- Close proximity to Ashley Cross cafes, restaurants, and boutique shops
### Potential Downsides:
- Leasehold property with service charge of £1,150 per annum and ground rent of £558, which may be considered expensive by some.
- Average size property within a growing community.
### Summary:
Discover your new home in the beautifully modernized two-bedroom ground-floor apartment in the desirable Lower Parkstone area. This inviting residence has been recently updated, showcasing a contemporary kitchen featuring high-end ‘Neff’ appliances and a stunning shower room fitted this year. Enjoy ample storage with fitted wardrobes in both spacious bedrooms, while the bright living area and private balcony provide perfect spaces for relaxation or entertaining guests. Positioned conveniently on a main bus route with allocated and visitor parking, this apartment suits couples, small families, or single professionals looking for comfort and ease of living.
Immerse yourself in the vibrant atmosphere of Lower Parkstone, with delightful cafes, boutique shops, and lush parks just a short distance away. Don’t miss the chance to make this stylish apartment your own—schedule a viewing today and embrace the lifestyle this community offers!
2 bedroom apartment for sale in Alton Road, Lower Parkstone, BH14 — £300,000 • 2 bed • 2 bath • 819 ft²
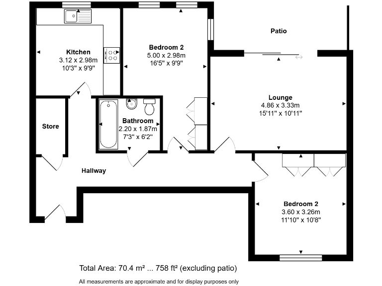
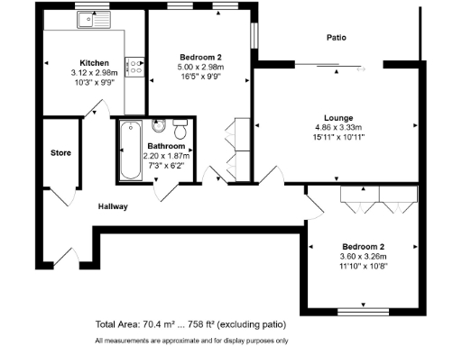
2 bedroom flat for sale in Emeralds, 123 North Road, Poole, BH14 — £269,500 • 2 bed • 2 bath • 758 ft²
2 bedroom apartment for sale in Bournemouth Road, Lower Parkstone, Poole, Dorset, BH14 — £249,950 • 2 bed • 1 bath • 880 ft²
2 bedroom apartment for sale in Belle Vue Road, Lower Parkstone, BH14 — £275,000 • 2 bed • 2 bath • 765 ft²
2 bedroom apartment for sale in Bournemouth Road, Lower Parkstone, Poole, Dorset, BH14 — £259,000 • 2 bed • 1 bath • 830 ft²
2 bedroom apartment for sale in 11 Windsor Road, Lower Parkstone, BH14 — £349,000 • 2 bed • 2 bath • 978 ft²


















































