**Standout Features:**
- Investment opportunity; currently let as a three-bedroom student rental.
- Generating income of £1,500 per month, with a lease until August 2025.
- Private rear garden offering outdoor space.
- Dual aspects of gas central heating and double glazing increase comfort.
- Chain-free, facilitating a quick purchase.
**Summary Description:**
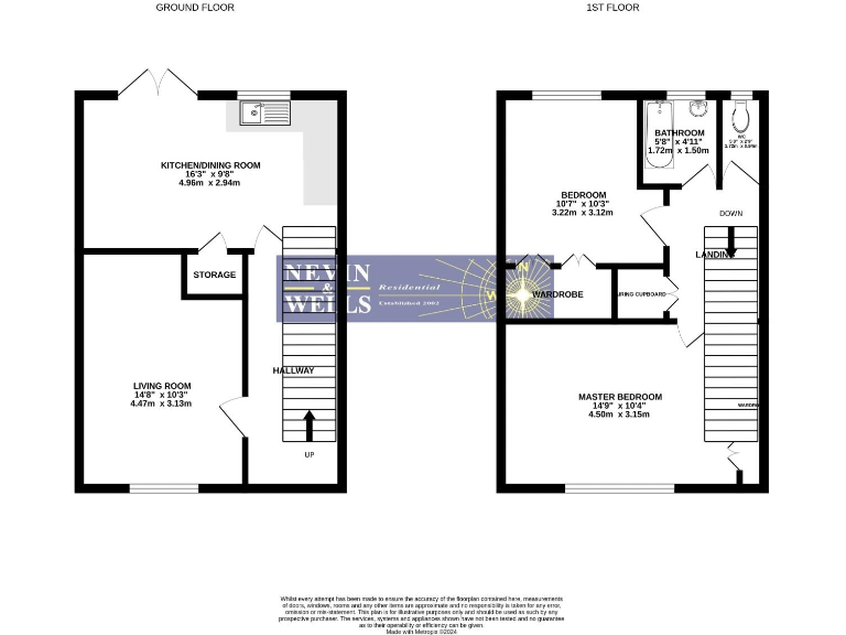
Don’t miss this excellent investment opportunity in a vibrant, cosmopolitan area! This mid-20th century terraced property features two bedrooms, currently arranged as three for maximum rental potential. Inside, you'll find a welcoming entrance hallway leading to a spacious reception room and a modern kitchen/dining area, perfect for entertaining. The first-floor bathroom, separate WC, and a private rear garden make it functional for tenants. The property benefits from gas central heating and double glazing throughout, ensuring comfort year-round.
While the property is compact at 599 sq ft, its layout is efficient and practical for rental purposes. Investors will appreciate the strong current cash flow and the absence of chain delays, allowing quick transitions. With local amenities and schools nearby, this property appeals to students seeking comfortable living space. Act fast—investments like this don’t stay on the market for long!
5 bedroom terraced house for sale in Beechtree Avenue, Englefield Green, Egham, Surrey, TW20 — £375,000 • 5 bed • 1 bath • 1071 ft²
4 bedroom terraced house for sale in Investment Property, Englefield Green, TW20 — £375,000 • 4 bed • 1 bath • 737 ft²
5 bedroom terraced house for sale in Nightingale Shott, Egham, Surrey, TW20 — £490,000 • 5 bed • 2 bath • 920 ft²
4 bedroom end of terrace house for sale in Notley End, Englefield Green, Egham, Surrey, TW20 — £375,000 • 4 bed • 1 bath • 724 ft²
6 bedroom semi-detached house for sale in Egham Hill, Englefield Green, Surrey, TW20 — £595,000 • 6 bed • 3 bath • 1399 ft²
4 bedroom end of terrace house for sale in Cherrywood Avenue, Englefield Green, Egham, Surrey, TW20 — £440,000 • 4 bed • 1 bath • 834 ft²






















