Well-specified new build with garden and off-street parking for small families.
Three bedrooms including principal with en-suite and built-in storage
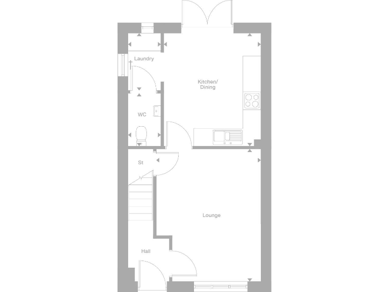
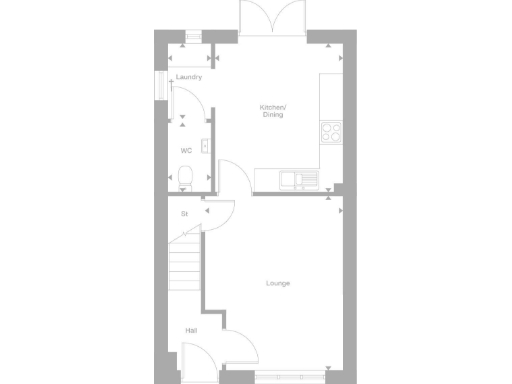
A modern three-bedroom semi-detached new build on Shurdington Road offering compact, well-planned living across approximately 557 sq ft. The ground floor has a bright lounge, contemporary kitchen/diner with French doors that open to the garden, a separate laundry room and a downstairs WC. Upstairs the principal bedroom includes an en-suite and built-in storage, plus two further bedrooms and a family bathroom.
This plot benefits from off-street parking, a decent private garden and a 10-year NHBC warranty, making it low-maintenance and attractive to buyers seeking a move-in-ready home. The development sits in a very affluent area with excellent broadband and mobile signal, good local schools and low crime levels.
Be aware the home is compact with modest room sizes and a total floor area of around 557 sq ft, so space will suit a small family, first-time buyers, or investors rather than larger households. There is an annual service charge of £220 and the site is listed with a medium flood risk—buyers should take that into account and obtain full flood and insurance advice. Tenure is freehold.
3 bedroom semi-detached house for sale in Shurdington Road,
Leckhampton,
GL53 0JH, GL53 — £550,000 • 3 bed • 1 bath • 900 ft²
3 bedroom semi-detached house for sale in Shurdington Road,
Leckhampton,
GL53 0JH, GL53 — £480,000 • 3 bed • 1 bath • 599 ft²
3 bedroom semi-detached house for sale in Shurdington Road,
Leckhampton,
GL53 0JH, GL53 — £565,000 • 3 bed • 1 bath • 900 ft²
3 bedroom detached house for sale in Shurdington Road,
Leckhampton,
GL53 0JH, GL53 — £515,000 • 3 bed • 1 bath • 618 ft²
3 bedroom detached house for sale in Shurdington Road,
Leckhampton,
GL53 0JH, GL53 — £525,000 • 3 bed • 1 bath • 669 ft²
3 bedroom detached house for sale in Shurdington Road,
Leckhampton,
GL53 0JH, GL53 — £555,000 • 3 bed • 1 bath • 618 ft²














































