Bright new three-bedroom home with garden, parking and easy Lincoln access..
Three bedrooms with master en-suite and family bathroom
Open-plan kitchen-diner with French doors to rear garden
Lounge, cloakroom and practical 807 sq ft traditional layout
Driveway parking for multiple vehicles; decent corner plot
Wiring provided for future EV charge point
New-build with 10-year NHBC warranty and modern finishes
Medium flood risk; buyers should check insurance and mitigation
Small overall internal size for a three-bedroom home
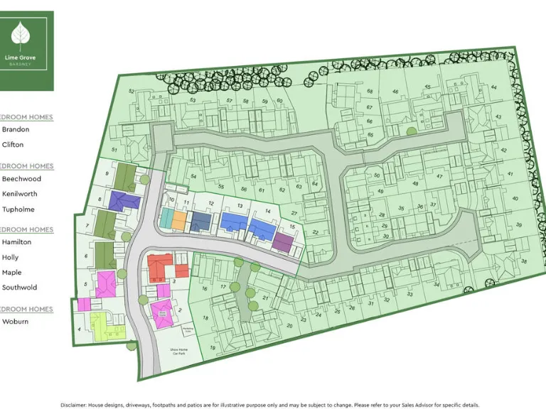
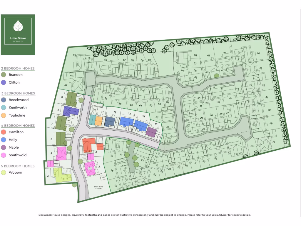
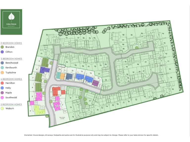
Plot 10, The Kenilworth is a newly built three-bedroom semi-detached home on the Lime Grove development in Bardney. The house offers a traditional two-storey layout with a generous lounge, an open-plan kitchen-diner with French doors to the garden, a ground-floor cloakroom, and a master bedroom with en-suite — all finished to a high specification and covered by a ten-year NHBC warranty.
The property suits buyers seeking a modern, low-maintenance home within walking distance of the village centre and primary school, while remaining within easy commuting distance of Lincoln. Practical features include off-street parking for multiple vehicles, a decent-sized plot with a rear garden, and wiring prepared for a future EV charging point.
Important considerations: the home occupies a relatively small overall size (approximately 807 sq ft) and sits in an area assessed with medium flood risk. The development charges an annual maintenance/service fee of £199.71 and the wider area shows higher deprivation indicators; council tax banding is yet to be confirmed. Prospective buyers should view in person to assess space and setting and check insurance/flood mitigation and local service arrangements.
Overall, this is a straightforward, move-in-ready new home offering modern fittings, practical outdoor space and commuter-friendly access — a sensible choice for young families or anyone looking to trade up to a low-maintenance new build close to local amenities.
3 bedroom detached house for sale in Saxon Way, Bardney, LN3 — £275,000 • 3 bed • 3 bath • 875 ft²
3 bedroom semi-detached house for sale in Saxon Way, Bardney, LN3 — £200,000 • 3 bed • 2 bath • 827 ft²
3 bedroom detached house for sale in Lime Grove, Bardney, LN3 — £280,000 • 3 bed • 2 bath • 1163 ft²
4 bedroom detached house for sale in Plot 3, The Hamilton, Lime Grove, Bardney, LN3 — £425,000 • 4 bed • 2 bath • 1808 ft²
3 bedroom semi-detached house for sale in Saxon Way, Bardney, LN3 — £210,000 • 3 bed • 2 bath • 657 ft²
5 bedroom detached house for sale in Saxon Way, Bardney, LN3 — £450,000 • 5 bed • 3 bath • 2033 ft²






























































































