Spacious family layout with garage and modern warranties for peace of mind.
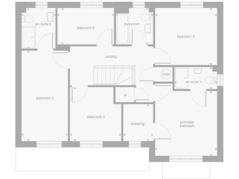
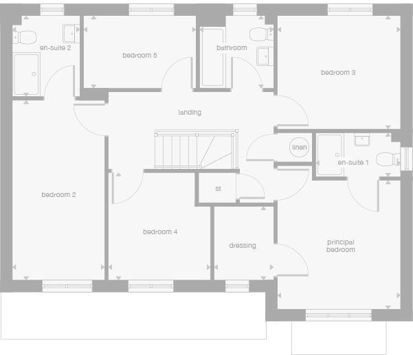
5 bedrooms including principal dressing and two en-suites
Open-plan kitchen/family dining with French doors to garden
Double doors connect lounge and dining for flexible entertaining
Laundry room, downstairs WC and practical storage
Double garage plus driveway parking for secure vehicle storage
10-year NHBC warranty on new-build construction
Annual service charge £169.43; council tax band above average
Local area classed very deprived; check nearby services and schools
This newly built five-bedroom detached home in Sauchie is arranged for family life and social entertaining. The ground floor’s open-plan kitchen, breakfast and family dining area flows through double doors to the lounge and out via French doors to the garden — a practical layout for everyday living and gatherings. A separate laundry and downstairs WC add convenience, and the double garage provides secure parking and storage.
Upstairs delivers flexibility: five bedrooms accessed from a gallery landing, including a principal suite with dressing area and en-suite, plus a second en-suite bedroom. One bedroom is presented as an adaptable home office, useful for remote work or study. The property benefits from modern new-build specification and a 10-year NHBC warranty for structural reassurance.
Practical considerations are clear and factual. The development attracts a modest annual service charge of £169.43 and sits in a council tax band above average, which will affect running costs. The wider area is classified as rural life but flagged as very deprived locally; buyers should review local amenities and transport if community services are important.
Overall this home suits a family seeking contemporary, low-maintenance living with flexible bedrooms and secure parking, while accepting smaller overall plot size and the local area’s economic profile. Fast broadband and excellent mobile signal are useful extras for home working and streaming.
5 bedroom detached house for sale in Off B908,
Sauchie,
Alloa,
FK10 3EF, FK10 — £399,950 • 5 bed • 1 bath • 1169 ft²
5 bedroom detached house for sale in Off B908,
Sauchie,
Alloa,
FK10 3EF, FK10 — £427,000 • 5 bed • 1 bath • 1201 ft²
4 bedroom detached house for sale in Off B908,
Sauchie,
Alloa,
FK10 3EF, FK10 — £375,000 • 4 bed • 1 bath • 955 ft²
4 bedroom detached house for sale in Off B908,
Sauchie,
Alloa,
FK10 3EF, FK10 — £280,000 • 4 bed • 1 bath • 812 ft²
4 bedroom semi-detached house for sale in Off B908,
Sauchie,
Alloa,
FK10 3EF, FK10 — £273,000 • 4 bed • 1 bath • 653 ft²
5 bedroom detached house for sale in Off B908,
Sauchie,
Alloa,
FK10 3EF, FK10 — £425,000 • 5 bed • 1 bath • 1201 ft²






























































































