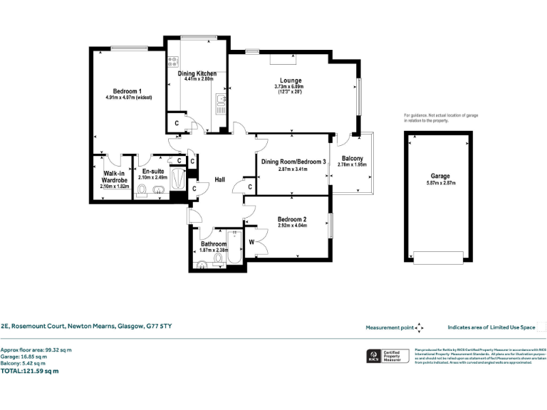
**Standout Features:**
- Spacious two/three-bedroom first-floor apartment
- Modern brick exterior with landscaped communal grounds
- Private balcony accessible from lounge and kitchen
- Separate home office/dining room option
- Principal bedroom with walk-in wardrobe and ensuite
- Single garage with electric remote-controlled door
- Excellent transport links, close to amenities and schools
**Summary:**
Discover the exquisite lifestyle available in this generously proportioned two/three-bedroom apartment situated in the tranquil Mearnskirk development of Newton Mearns. With a stylish modern design, this first-floor residence offers a bright lounge that seamlessly connects to a private balcony—a perfect spot for relaxation. Both bedrooms are spacious, and the principal bedroom boasts a luxurious walk-in wardrobe and ensuite for your comfort. The flexible layout also includes a separate home office, which can effortlessly transform into a dining room or additional bedroom to suit your needs.
Set within meticulously maintained communal grounds, this property includes a single garage with an electric door and ample parking for residents. With excellent broadband speeds and mobile signal, it's ideal for both families and professionals seeking convenience and comfort. Newton Mearns is recognized for its affluent community, rich local amenities—including banks, healthcare, and shopping—along with easy access to recreational facilities and transport routes to Glasgow.
While the property benefits from a freehold tenure, buyers should note the council tax band G and proximity to areas experiencing some deprivation. However, with the potential for future renovations and extensions, this apartment presents an exceptional opportunity. Act quickly—spaces like this in such a desirable suburb don’t last long!
3 bedroom apartment for sale in Edenhall Court, Mearnskirk, Newton Mearns, G77 — £339,000 • 3 bed • 2 bath • 1547 ft²
3 bedroom apartment for sale in Buchanan Drive, Newton Mearns, G77 — £267,500 • 3 bed • 1 bath • 1193 ft²
2 bedroom apartment for sale in Kirkvale Drive, Newton Mearns, Glasgow, East Renfrewshire, G77 — £210,000 • 2 bed • 2 bath • 1066 ft²
3 bedroom flat for sale in Shawfarm Apartments, Newtonlea Avenue, Newton Mearns, G77 — £235,000 • 3 bed • 1 bath • 1163 ft²
2 bedroom apartment for sale in Buchanan Drive, Newton Mearns, G77 — £175,000 • 2 bed • 1 bath • 903 ft²
3 bedroom flat for sale in Teviotdale, Kirkvale Court, Newton Mearns, G77 — £220,000 • 3 bed • 1 bath • 1173 ft²






























































































