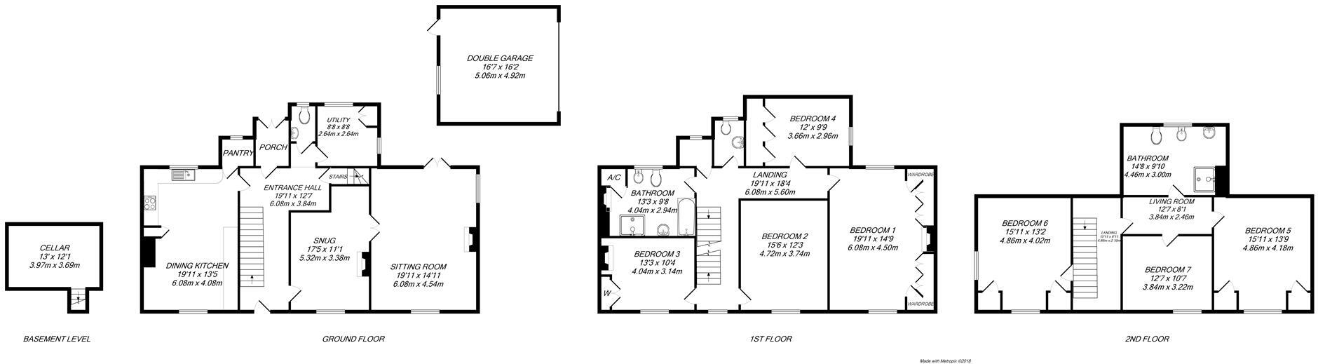
**Standout Features:**
- Expansive detached Georgian home built circa 1760
- Approximately 3,000 sq. ft. of living space
- Seven double bedrooms with fitted wardrobes
- Charming farmhouse-style kitchen with pantry and outdoor kitchen/dining terrace
- Landscaped walled garden, perfect for entertaining
- Detached double garage
- Chain-free sale for quick possession
**Summary:**
Welcome to Hillcrest House, a stunning Georgian period home located in the desirable village of Husbands Bosworth. This charming residence seamlessly blends historical character with modern comfort, featuring seven spacious bedrooms and a wealth of period details, including high ceilings, Minton tiles, and log-burning stoves in cozy sitting areas. The heart of the home is the inviting farmhouse-style kitchen, which offers ample storage and leads to a beautifully landscaped private garden complete with an outdoor kitchen—ideal for al fresco dining and entertaining.
While the property boasts impressive living space and potential for personalization, it does require some modern upgrades, particularly considering its historic construction and secondary glazing. Embrace the opportunity to make this home your own in a peaceful, affluent neighborhood, with excellent commuting links to Market Harborough and Leicester. Whether for family living or retirement, this residence encapsulates both comfort and character—a rare find indeed in today’s market. Act fast to secure a slice of history!
2 bedroom terraced house for sale in Church Street, Husbands Bosworth, LE17 — £257,000 • 2 bed • 1 bath • 743 ft²
4 bedroom detached house for sale in Cherry Tree Close, Husbands Bosworth, Lutterworth, LE17 — £525,000 • 4 bed • 2 bath • 1574 ft²
5 bedroom detached house for sale in Harcourt House, Kibworth Harcourt, LE8 — £950,000 • 5 bed • 3 bath • 2433 ft²
4 bedroom character property for sale in Home Farm Cottage, Husbands Bosworth, Lutterworth, LE17 — £765,000 • 4 bed • 2 bath • 2072 ft²
3 bedroom terraced house for sale in Fernie Court, Husbands Bosworth, LE17 — £340,000 • 3 bed • 2 bath • 1510 ft²
5 bedroom house for sale in Main Street, Bruntingthorpe, Lutterworth, LE17 — £825,000 • 5 bed • 2 bath • 2562 ft²






















































































