**Standout Features:**
- Large plot size: 1.47 acres, approximately 1415 square feet
- Full Planning Permission for the construction of 9 executive detached homes
- Located in a comfortable, affluent neighborhood with low crime rates
- Excellent mobile signal and fast broadband speeds
- Close proximity to major road networks and local amenities
- Chain-free sale
**Concerns:**
- Existing buildings are agricultural; demolition required
- Planning permission must commence within three years
- Pre-commencement conditions to be discharged before development starts
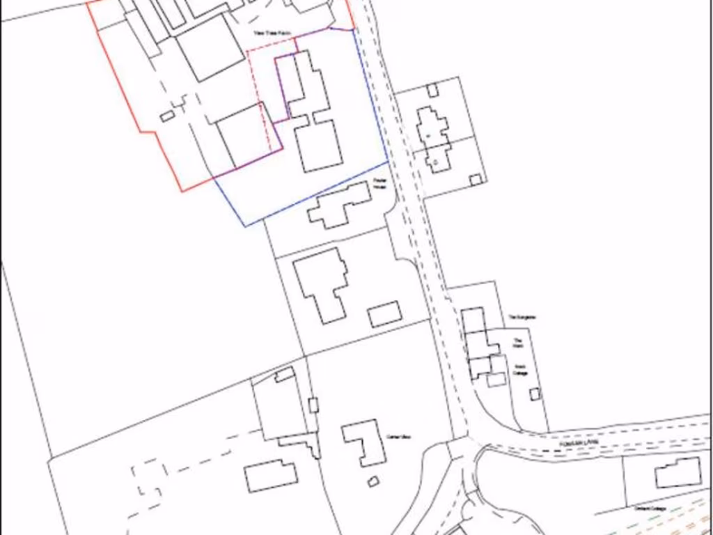
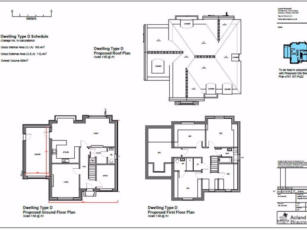
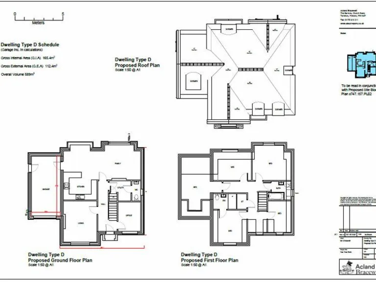
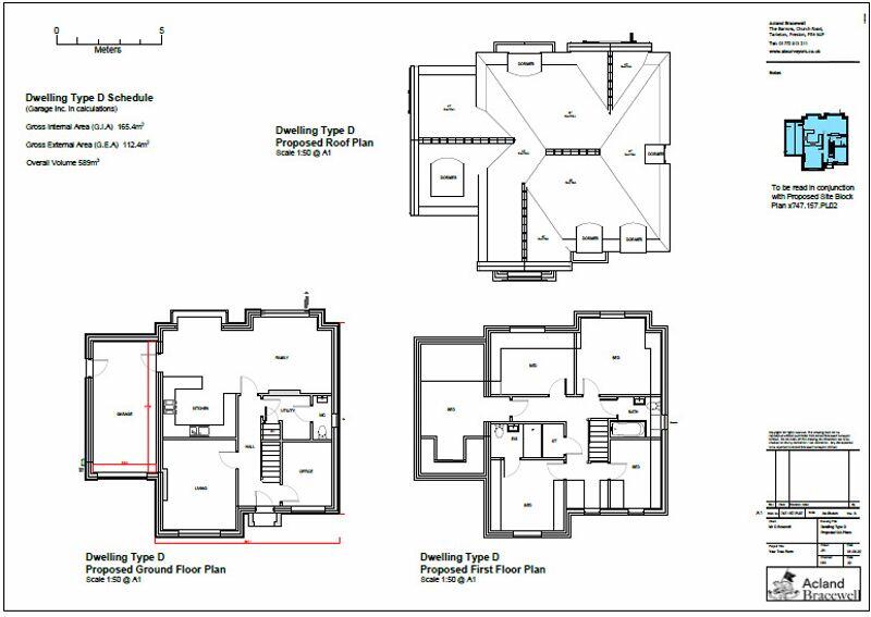
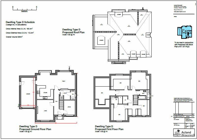
This expansive residential development opportunity at Yew Tree Farm on Fowler Lane, Farington Moss, presents a unique chance for investors or developers looking to create a desirable family community. With full planning permission granted for nine modern detached homes—offering substantial living spaces and private gardens—this property caters beautifully to the rising demand for quality housing in a tranquil, yet accessible area.
The site boasts a generous 1.47-acre plot in a peaceful rural setting, promising an appealing lifestyle for future residents. Planning documents indicate the potential for diverse dwelling types with off-road parking, catering to families seeking comfort and security. Notably, the low crime rate and nearby schools with good ratings enhance the area’s attractiveness for families.
While the existing agricultural structures require demolition, this property is sold chain-free, allowing for a swift transition to the development phase. It’s essential to consider that planning permissions need to be executed within a defined timeframe, bringing some urgency to the opportunity for interested buyers. Envision the future potential of this sprawling land, and seize the chance to shape a new community in this tranquil escape.
Plot for sale in Lodge Lane, Farington Moss, Leyland, Lancashire, PR26 — £400,000 • 1 bed • 1 bath
Detached house for sale in Housing Development Land at Tincklers Lane, Eccleston PR7 5QU, PR7 — £1,100,000 • 1 bed • 1 bath
4 bedroom detached house for sale in Croston Road, Farington Moss, PR26 — £495,000 • 4 bed • 4 bath • 1126 ft²
Land for sale in William Young Way, Sandyforth Lane, Preston, PR4 — POA • 1 bed • 1 bath
Land for sale in Moss View, Brookside And Land Adjacent To Fine Janes Farm, Halsall, PR8 — £595,000 • 1 bed • 1 bath
Land for sale in Moss House Road, Blackpool, FY4 — £300,000 • 1 bed • 1 bath










































