Two-bedroom village home with large conservatory and generous garden views.
Corner plot with lawned front garden and far-reaching countryside views
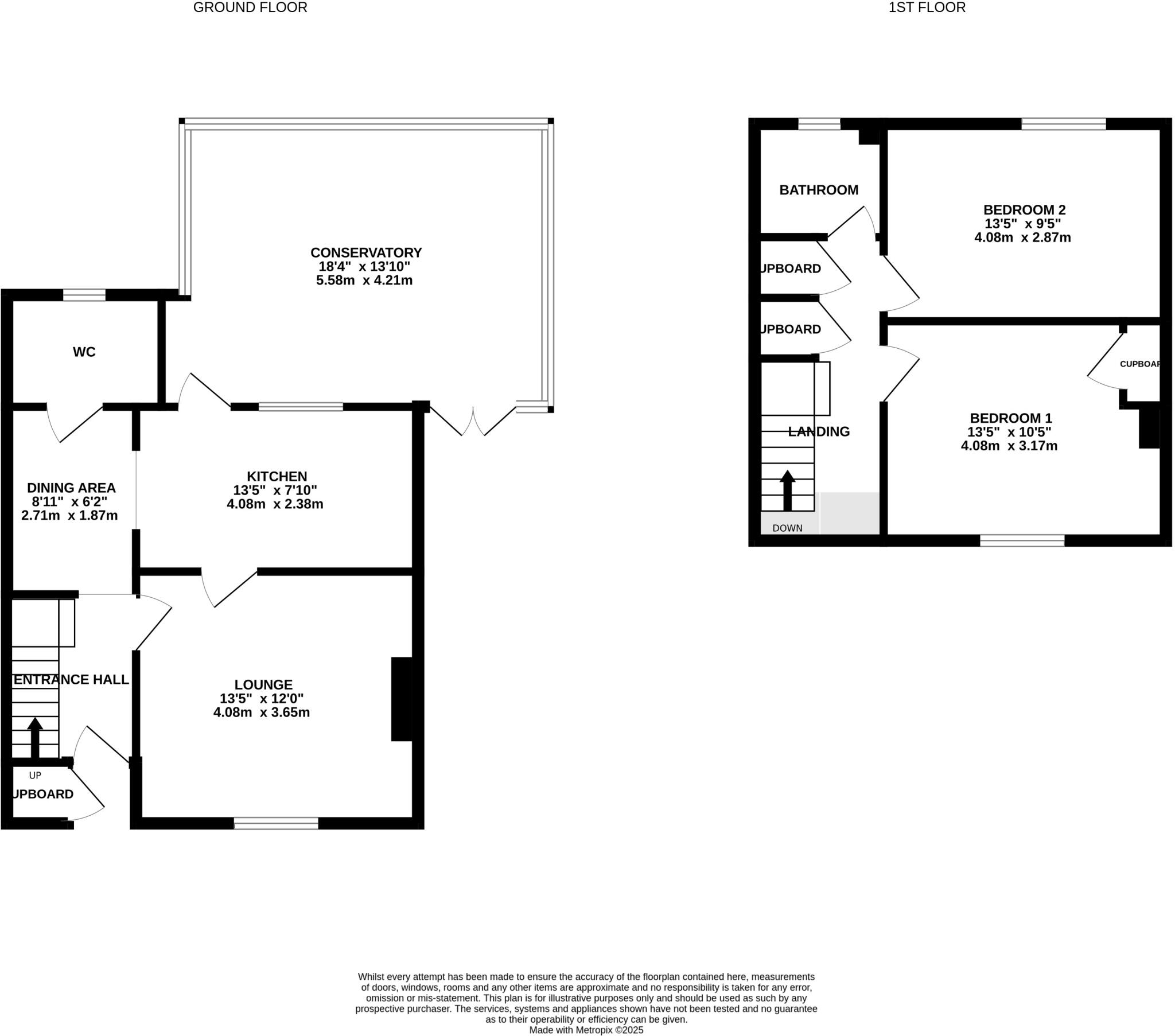
Set on a corner plot on the edge of Stourpaine, this two-bedroom end-of-terrace offers roomy living, a large UPVC conservatory and far-reaching countryside views. The conservatory and front lounge capture the open outlook over adjoining farmland, bringing light and a sense of space to this modest family home. The garden is a particular asset: lawned areas, a paved patio, storage shed and greenhouse create useful outdoor space for children, pets or growing vegetables.
Internally the property is functional and comfortable with oil-fired central heating to radiators and UPVC double glazing throughout. The layout includes an entrance lobby, lounge with open-fire facility, kitchen with dining area, cloakroom, large conservatory and two first-floor bedrooms with a family bathroom. The house totals approximately 837 sq ft and sits in a quiet village with good broadband and mobile signal, low crime and easy access to Blandford and local schools.
Buyers should note some cosmetic and maintenance items: many ceilings have Artex finishes and coved mouldings that reflect the era and may require updating for a fully modern finish. The conservatory has a polycarbonate roof which may have a limited lifespan compared with glass; the property runs on oil heating which can mean higher running costs and requires an oil tank and regular servicing. Tenure and council tax band are not specified and should be confirmed prior to offer.
This home suits a family or couple seeking rural village living with outdoor space and good links to Blandford. It also offers scope for modest updating to enhance comfort and value, making it a practical choice for someone looking to add personal touches rather than a turnkey move-in.
2 bedroom end of terrace house for sale in South Holme, Stourpaine, Blandford Forum, DT11 — £225,000 • 2 bed • 1 bath • 479 ft²
3 bedroom semi-detached house for sale in Moorhayes, Moorside, Sturminster Newton, DT10 — £300,000 • 3 bed • 1 bath • 894 ft²
2 bedroom terraced house for sale in Lockeridge Close, Blandford Forum, Dorset, DT11 — £235,000 • 2 bed • 1 bath • 679 ft²
4 bedroom detached house for sale in Golden Hill, Stourton Caundle, DT10 — £750,000 • 4 bed • 3 bath • 1952 ft²
4 bedroom detached bungalow for sale in Bath Road, Sturminster Newton, DT10 — £750,000 • 4 bed • 3 bath • 1839 ft²
2 bedroom end of terrace house for sale in Victoria Road, Blandford Forum, Dorset, DT11 — £225,000 • 2 bed • 1 bath • 473 ft²






















































