Newly renovated three-bedroom apartment near Lloyd Park and schools.
Share of freehold included
Extensive recent high-standard refurbishment throughout
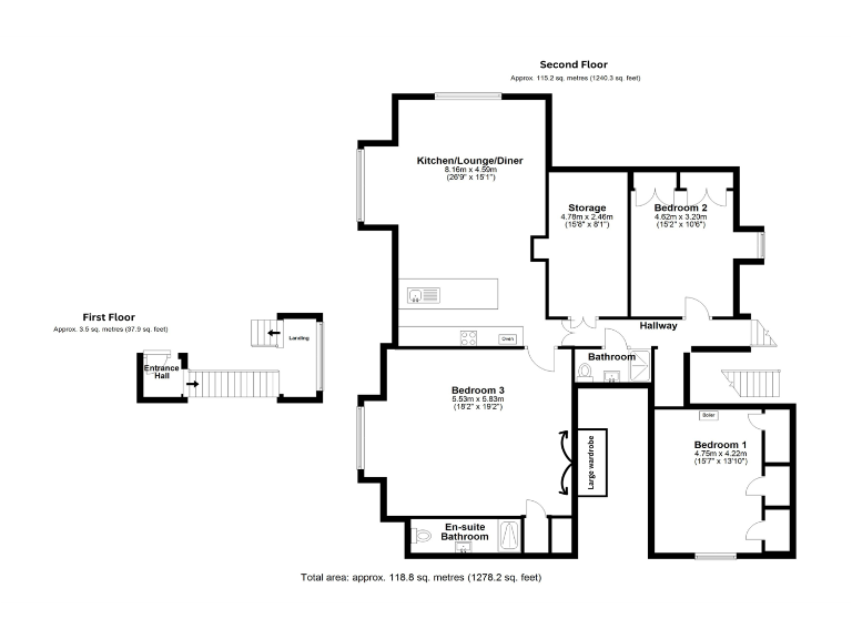
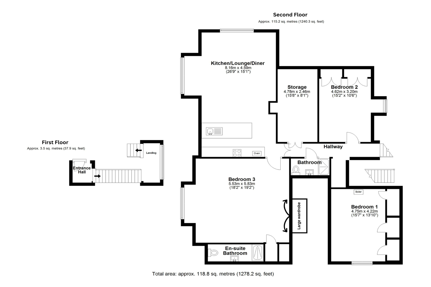
Very large top-floor flat — 1,278 sq ft (118 sqm)
Three double bedrooms; master with en-suite shower/WC
Large open-plan reception and modern kitchen with dining space
Share of rear garden; off-street gravel parking to front
Top-floor access via internal staircase — not lift-served
Timber-frame walls; no known installed insulation (assumed)
This very large top-floor apartment occupies the upper levels of an imposing Edwardian detached building, freshly refurbished to a high standard. The open-plan reception and kitchen area benefits from high ceilings and abundant natural light, creating an airy family-friendly living space with room for dining and entertaining.
Three double bedrooms, including a master with en-suite shower room, make this a practical home for families or professionals who need space. The property includes a share of the freehold, a share of the rear garden and off-street gravel parking to the front — useful extras in this desirable South Croydon location close to Lloyd Park and local schools.
Buyers should note the flat is a top-floor conversion accessed via an internal staircase and forms part of a timber-framed building that appears to have been constructed 1900–1929; external walls are recorded as timber frame with no installed insulation (assumed). Broadband is average, council tax is moderate and the property sits in an area with average crime levels. Overall, this is a spacious, newly renovated period apartment with strong family appeal but with some typical period-property considerations.
2 bedroom apartment for sale in Nottingham Road, South Croydon, CR2 — £450,000 • 2 bed • 1 bath • 1216 ft²
2 bedroom flat for sale in Croham Road, Croydon, London, CR2 — £290,000 • 2 bed • 1 bath • 646 ft²
2 bedroom flat for sale in Croham Road, South Croydon, CR2 — £400,000 • 2 bed • 2 bath • 951 ft²
3 bedroom flat for sale in Campion Close, Croydon, CR0 — £375,000 • 3 bed • 2 bath • 905 ft²
2 bedroom ground floor maisonette for sale in Spencer Road, South Croydon, CR2 7EH, CR2 — £425,000 • 2 bed • 1 bath • 1216 ft²
3 bedroom flat for sale in Farquharson Road, Croydon, Surrey, CR0 — £300,000 • 3 bed • 1 bath • 818 ft²


































































