Ideal family home with garage, garden and chain-free convenience.
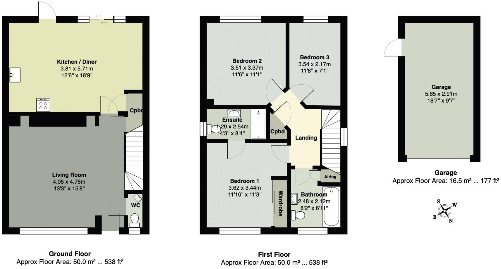
Three double bedrooms, master with ensuite
Spacious open-plan kitchen/dining with garden access
Enclosed rear garden with patio and additional timber enclosure
Driveway for 2–3 cars plus integral garage (power and light)
Quiet private cul-de-sac location, low local crime
Chain free — available for a quicker move
Overall internal size average (around 1,076 sq ft)
No exceptional views; limited extension potential without checks
Set at the end of a quiet cul-de-sac on the Moorland Reach development, this detached three-bedroom house is arranged over two floors and suits family life. The ground floor offers a spacious living room and an open-plan kitchen/dining area with sliding doors onto a generous, enclosed rear garden — ideal for children and outdoor dining. Off-road parking for two to three cars and an integral garage add everyday convenience.
Upstairs are three double bedrooms, the principal with built-in wardrobes and a private ensuite. The family bathroom and storage cupboards are practical and well positioned. Fixtures and fittings are modern in appearance and the home presents as well maintained, likely built within the last 20 years, so major works are not apparent from the description.
The house is offered chain free, which will help a smooth move for buyers. Practical points to note: the overall internal size is average for a three-bed detached (about 1,076 sq ft), and the property occupies a suburban plot without exceptional open views. Buyers requiring substantial extension potential should check planning/plot constraints. Broadband and mobile signal are strong, and the area benefits from low crime and local good schools — a straightforward family choice in a quiet residential setting.
4 bedroom house for sale in Kingfisher Way, Kingsteignton, TQ12 — £479,950 • 4 bed • 2 bath • 1382 ft²
4 bedroom detached house for sale in Robin Way, Kingsteignton, TQ12 — £435,000 • 4 bed • 3 bath • 1233 ft²
3 bedroom detached house for sale in Millcot, Church Street, Kingsteignton, Newton Abbot, TQ12 — £360,000 • 3 bed • 2 bath • 1058 ft²
3 bedroom link detached house for sale in River Close, Kingsteignton, Newton Abbot, TQ12 — £315,000 • 3 bed • 2 bath • 2473 ft²
3 bedroom detached house for sale in Calvados Park, Kingsteignton, TQ12 — £315,000 • 3 bed • 1 bath • 1194 ft²
3 bedroom semi-detached house for sale in Kings Coombe Drive, Kingsteignton, TQ12 — £237,500 • 3 bed • 1 bath


















































































