Compact family home with major extension upside and private garden.
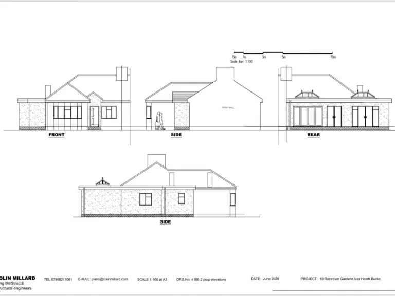
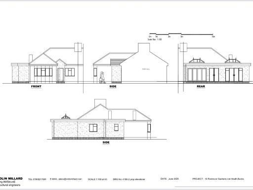
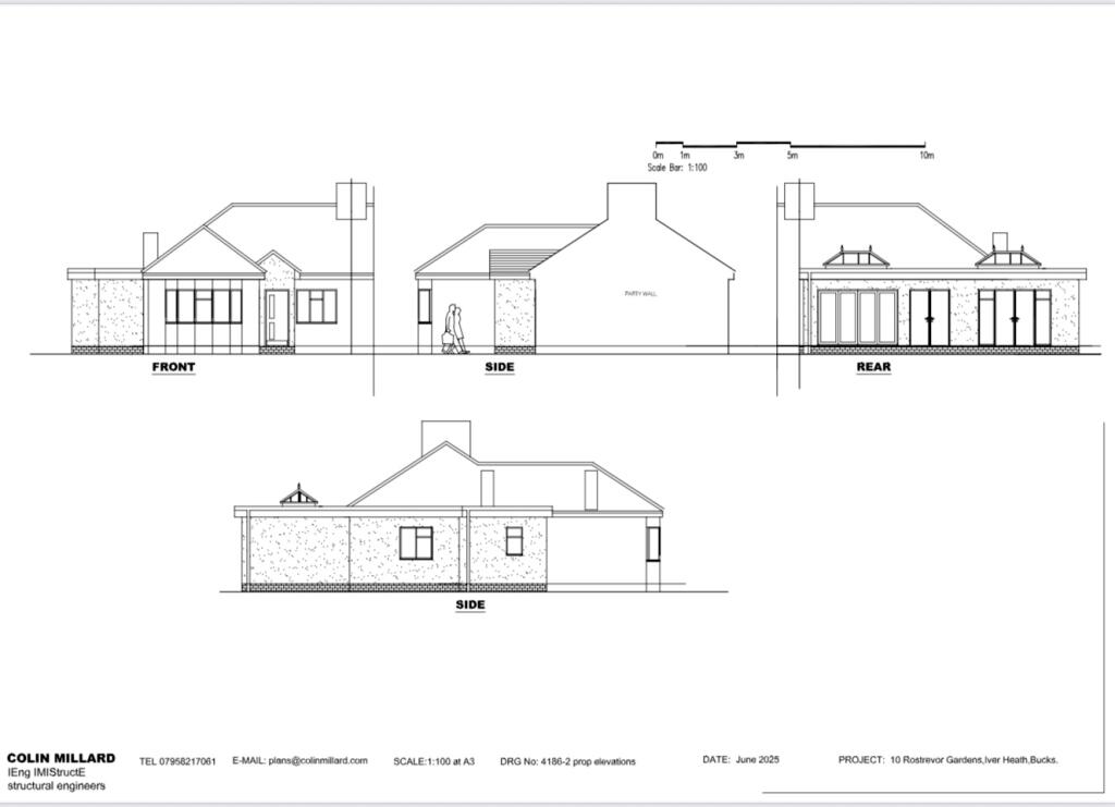
Full planning permission granted for a wrap-around extension
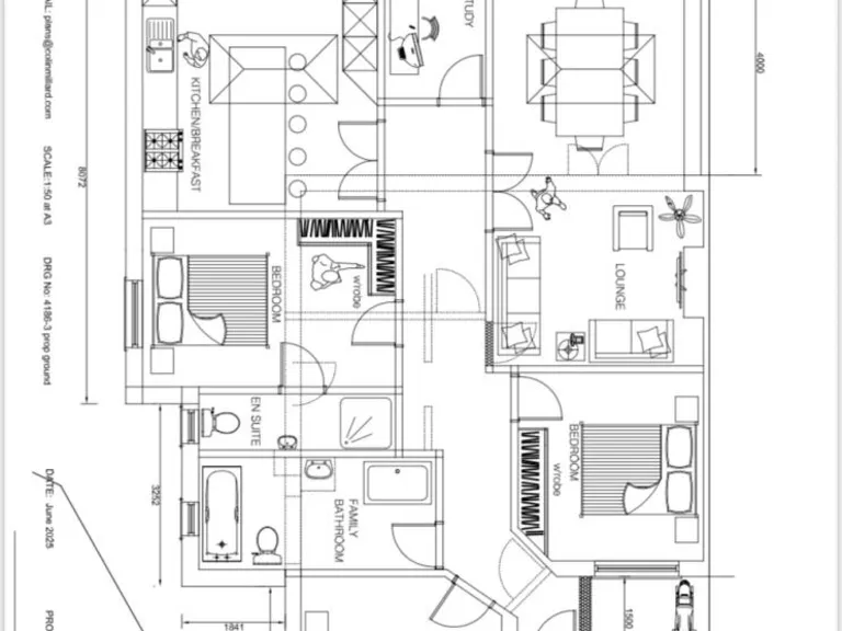
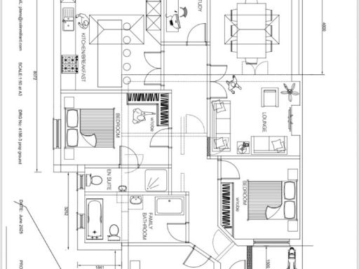
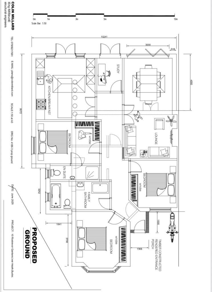
Three bedrooms in a compact 645 sq ft bungalow layout
Private rear garden ideal for entertaining or children
Front drive with off-street parking; garage has separate rear access
Single family bathroom; en-suite potential possible with extension
Solid brick construction; likely lacks modern wall insulation
EPC rating D — energy improvements recommended
Quiet residential road with good schools and transport links
This three-bedroom semi-detached bungalow in Iver Heath is a compact, freehold home with significant upside. Full planning permission has been granted for a wrap-around extension, giving buyers scope to create a larger open-plan living space, add bedrooms, or introduce a dedicated home office. The current layout includes a bright lounge overlooking the private rear garden, a fitted kitchen and a single family bathroom with clear potential for an en-suite conversion.
The property dates from the mid-20th century and sits on a decent plot with off-street parking and a rear garage accessed separately. Solid-brick walls suggest traditional construction but likely lack cavity insulation, so buyers should factor possible thermal upgrades. The home is modest in size (approximately 645 sq ft) and currently suits purchasers seeking a manageable footprint with renovation potential rather than those needing immediately spacious accommodation.
Practical benefits include mains gas central heating, double glazing, low local crime, fast broadband and excellent mobile signal. The location on a quiet residential road places good primary and secondary schools within easy reach and offers strong transport links to London and Heathrow, making it suitable for commuting families. Note the property's EPC rating of D; planned improvements would allow both comfort and value uplift.
3 bedroom semi-detached bungalow for sale in Rostrevor Gardens, Iver, SL0 — £550,000 • 3 bed • 1 bath • 761 ft²
3 bedroom semi-detached house for sale in Oak End Drive, Iver, SL0 — £565,000 • 3 bed • 1 bath • 931 ft²
2 bedroom semi-detached bungalow for sale in Rostrevor Gardens, Iver, SL0 — £600,000 • 2 bed • 1 bath • 956 ft²
3 bedroom end of terrace house for sale in Oak End Drive, Iver Heath, SL0 — £565,000 • 3 bed • 2 bath • 1112 ft²
3 bedroom detached bungalow for sale in Richings Way, Iver, SL0 — £950,000 • 3 bed • 1 bath • 1440 ft²
2 bedroom bungalow for sale in Heatherden Green, , Iver Heath, SL0 — £425,000 • 2 bed • 1 bath • 807 ft²


































































































































