Prominent income asset with development upside in Richmond close to parks.
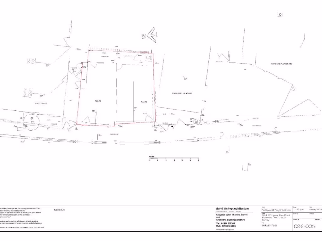
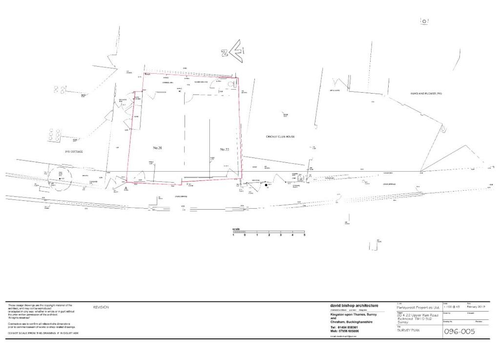
Freehold; two single-storey commercial units facing Ham Common
Current income £20,000 per annum across both units
Number 22 rent review due 25 August 2025 (upside potential)
Both leases run until 2029 — medium-term income security
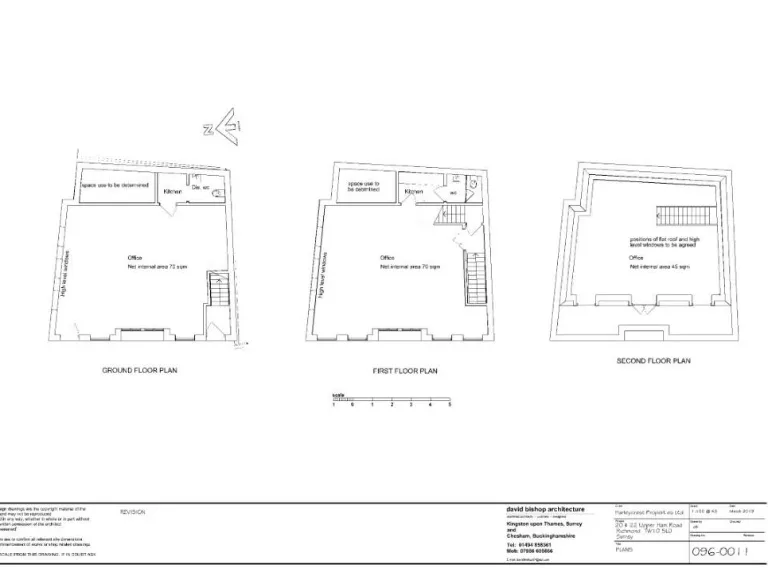
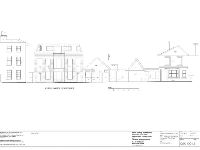
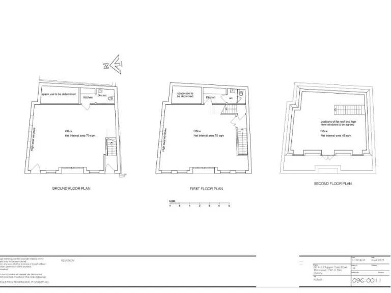
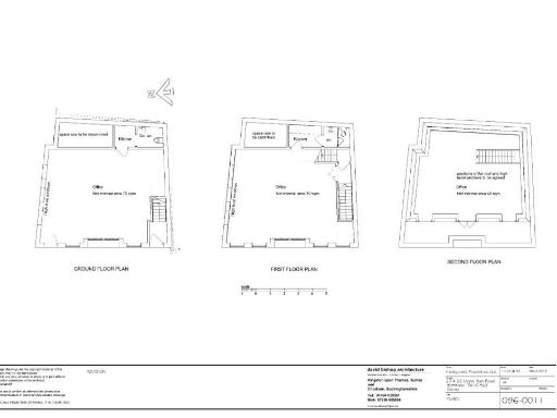
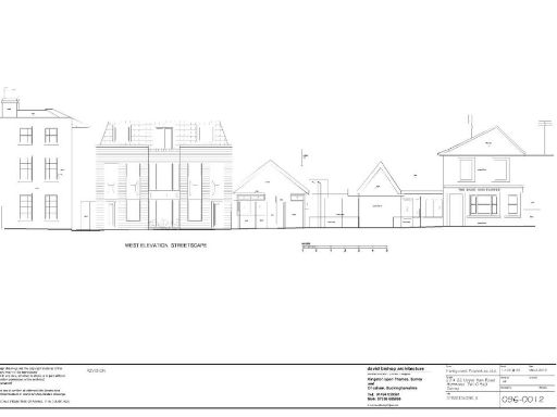
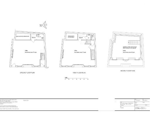
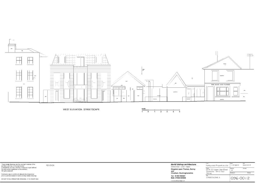
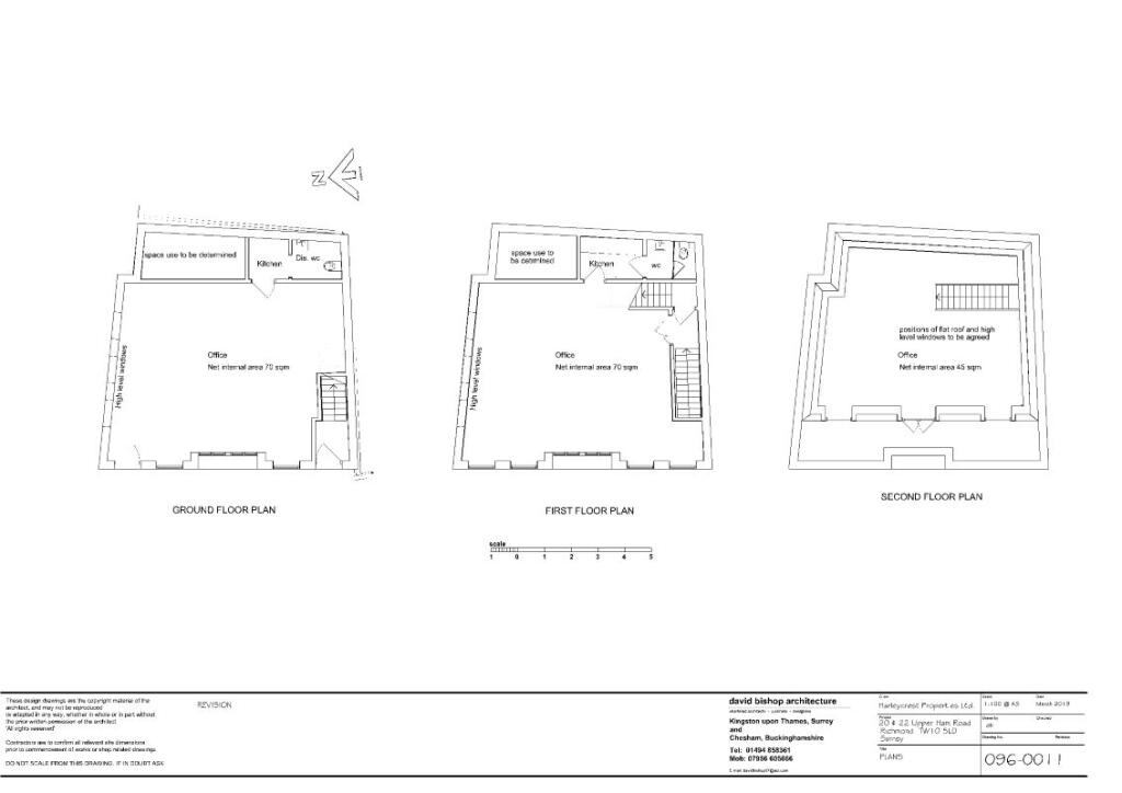
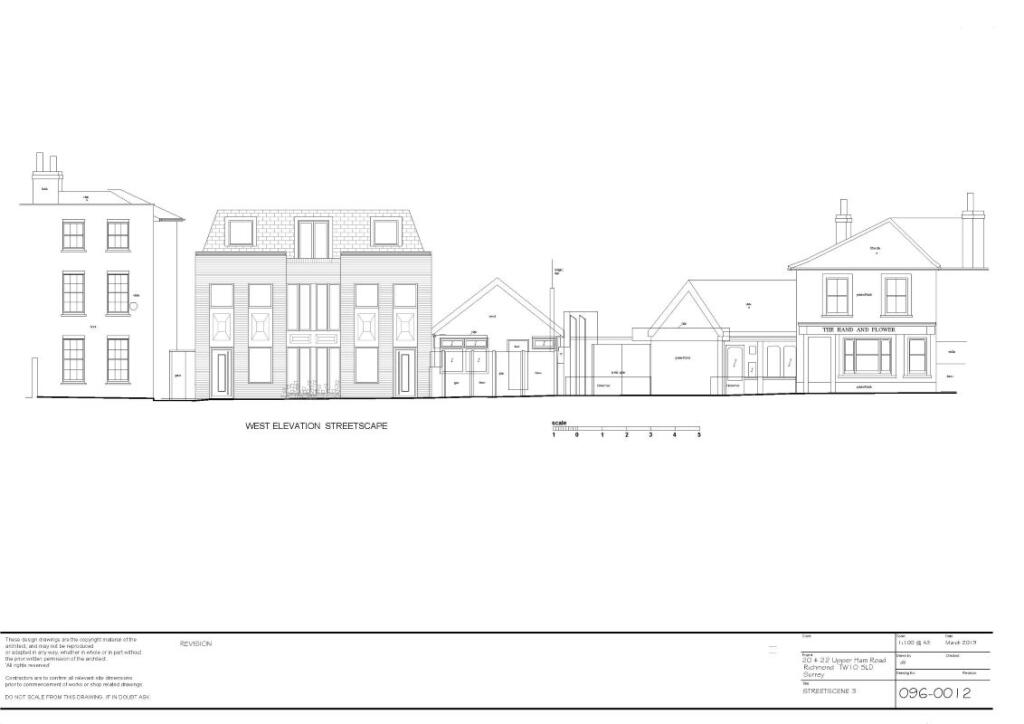
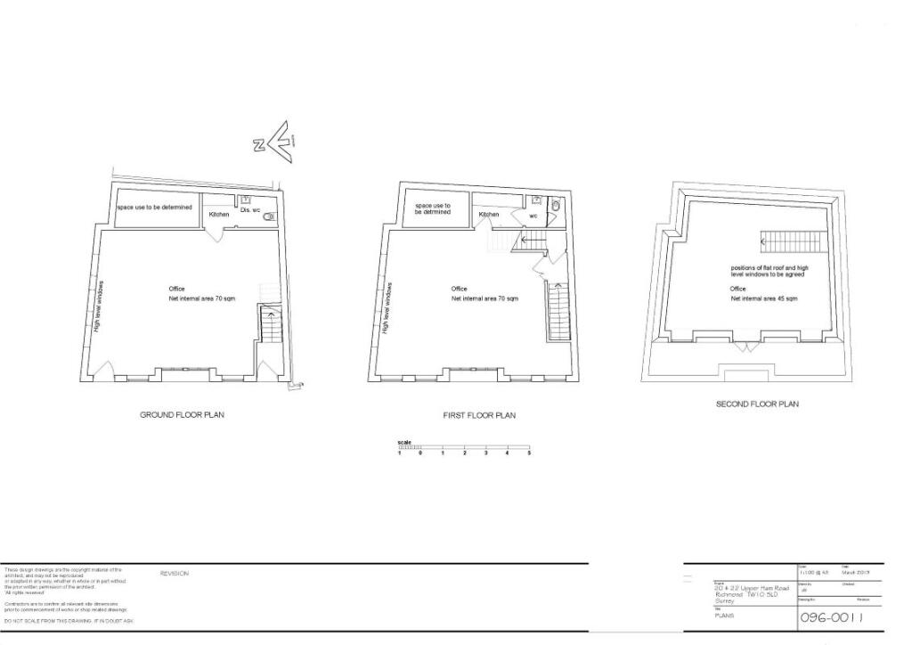
Pre-application positive meeting for +2.5 storeys (STPP) — plans available
Sale by unconditional auction; 10% deposit and buyer administration fee apply
Broadband speeds slow; documented local crime above average
Right of Way benefit; potential SIPP purchase subject to provider rules
A unique freehold investment comprising two single-storey commercial units directly overlooking Ham Common. Both units are let for a combined £20,000pa, offering immediate income with clear upside at review and on re-letting. Number 22 has a rent review due 25 August 2025 and the current leases run until 2029.
The site benefits from a positive pre-application meeting with local planners for commercial, residential and mixed-use development, including proposals to add approximately 2.5 storeys (subject to planning permission, STPP). Plans and images are available in the listing; there is also a recorded Right of Way over the adjacent property which may assist access or development options.
Buyers should note material considerations: broadband speeds are slow, recorded local crime is above average, and both tenancies expire in 2029 so income is medium-term. The sale is by unconditional online auction (26 September 2025) with a 10% deposit (minimum £5,000) and a buyer administration fee payable on exchange — full legal pack contains all buyer obligations and completion timescales.
This lot suits investors seeking a prominent, cash-producing property with development potential and pension-buying (SIPP) possibilities, subject to provider terms and planning permission. It offers immediate yield with tangible scope to increase value through rent uplift or redevelopment if consents are obtained.
Commercial development for sale in 29-31 Creek Road, East Molesey, Surrey, KT8 9BE, KT8 — £600,000 • 1 bed • 1 bath
2 bedroom flat for sale in 73c High Street, Hampton Hill, Hampton, Middlesex, TW12 1NH, TW12 — £295,000 • 2 bed • 1 bath • 764 ft²
High street retail property for sale in Worple Road, London, SW20 — £400,000 • 1 bed • 1 bath • 1249 ft²
Commercial property for sale in 73 Lower Richmond Road, London, SW14 7HJ, SW14 — £185,000 • 1 bed • 1 bath • 664 ft²
Land for sale in Royal Parade, Richmond, TW9 — £510,000 • 1 bed • 1 bath • 893 ft²
3 bedroom apartment for sale in Upper Richmond Road West, London, SW14 — £1,300,000 • 3 bed • 2 bath • 897 ft²


































































































