Secure, social retirement living close to Walton-on-Thames town centre and rail links.
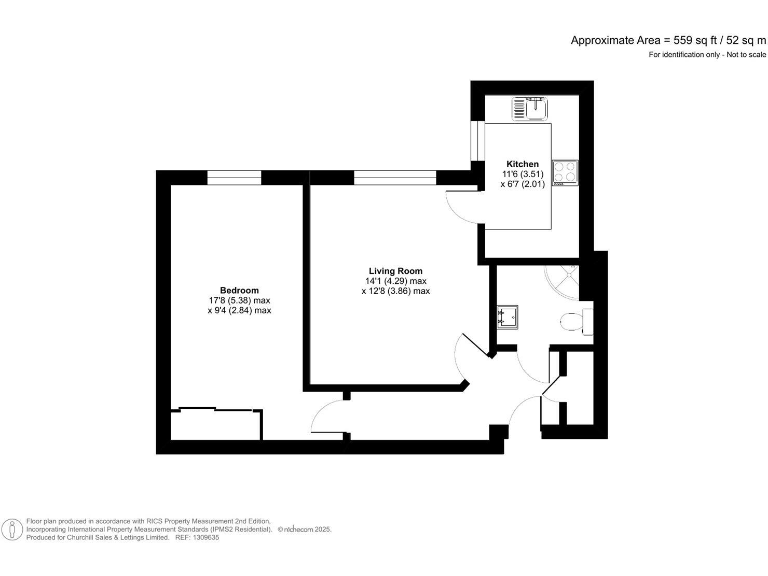
Third-floor one-bedroom retirement apartment with lift access
A bright third-floor one-bedroom apartment in Ash Lodge, a purpose-built retirement development close to Walton-on-Thames High Street and transport links. The living room and double bedroom are naturally lit; the kitchen is fully fitted with integrated appliances and practical work surfaces. The development includes landscaped communal gardens, an owners’ lounge with regular social events, and a Guest Suite for visiting family.
Residents benefit from an on-site lodge manager five days a week and a 24-hour Careline system for safety and security. Heating is provided via a communal air-source system (costs included in the service charge), and the apartment has useful hallway storage and a shower room fitted with grab rails.
Leasehold details are favourable for longevity, with around 115–116 years remaining. Service charges cover a wide range of communal services including heating, buildings insurance, water rates, lift maintenance and garden upkeep, providing convenient, managed living for those wanting minimal day-to-day maintenance.
Important practical points: broadband speeds in the area are reported as very slow, and annual ground rent and service charges are material ongoing costs. The property suits buyers seeking secure, social retirement living close to shops and rail links, not those needing high-speed internet or who prefer independent home maintenance responsibilities.
1 bedroom retirement property for sale in Ash Lodge, Walton-On-Thames, KT12 — £190,000 • 1 bed • 1 bath • 500 ft²
2 bedroom retirement property for sale in Ash Lodge, Walton-On-Thames, KT12 — £375,000 • 2 bed • 2 bath • 751 ft²
1 bedroom retirement property for sale in Ash Lodge, Walton-On-Thames, KT12 — £260,000 • 1 bed • 1 bath • 511 ft²
1 bedroom retirement property for sale in Ash Lodge, Walton-On-Thames, KT12 — £259,950 • 1 bed • 1 bath • 671 ft²
1 bedroom retirement property for sale in Ash Lodge, Walton-On-Thames, KT12 — £225,000 • 1 bed • 1 bath • 548 ft²
1 bedroom retirement property for sale in Churchfield Road, Walton on Thames, KT12 — £299,950 • 1 bed • 1 bath • 540 ft²


























































