**Standout Features:**
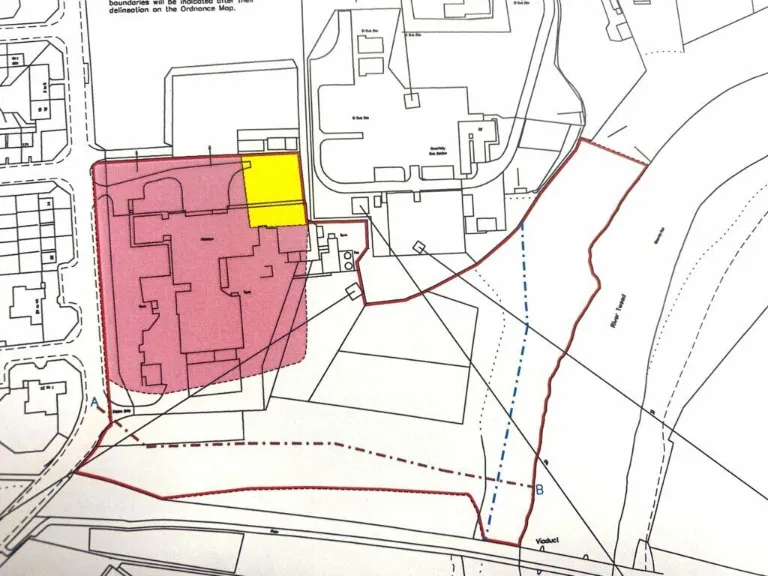
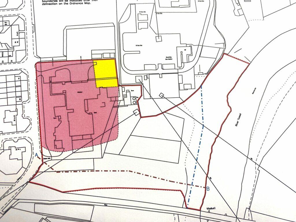
- Expansive industrial site of approximately 3.1 hectares
- Prime location at the edge of Galashiels town center
- Excellent transport links, including proximity to Borders Railway
- Ideal for large developers or industrial ventures
- Significant rateable value of £11,100, with potential for 100% Small Business Bonus Scheme relief
- Nearby amenities and services including petrol stations, a cinema, and recreational facilities
- Fast broadband speeds, excellent mobile signal
**Concise Summary:**
This substantial industrial development site, stretching over 3.1 hectares, offers a prime opportunity for ambitious developers seeking to invest in the thriving town of Galashiels. Set against a scenic backdrop, bordered by a river, this largely flat parcel of land is ready for visionary projects, with its location providing exceptional transport accessibility via the Borders Railway and major road connections to surrounding towns.
With a diverse range of nearby amenities, including retail shops, leisure facilities, and community services, the site is positioned to benefit from both local and commuter traffic. The property holds a rateable value of £11,100 and may qualify for significant financial benefits through the Small Business Bonus Scheme, adding to its appeal.
Act swiftly—opportunities like this in Galashiels don’t stay on the market for long, making it a compelling choice for future-focused investors or developers looking to establish a significant presence in an esteemed location.
Land for sale in 113 - 117 High Street, Galashiels, TD1 — £250,000 • 1 bed • 1 bath • 12527 ft²
Land for sale in Land at Burnmill, Roxburgh Street , Galashiels, TD1 — £182,750 • 1 bed • 1 bath • 12432 ft²
Land for sale in Langbrae, Newtown St. Boswells, TD6 — £150,000 • 1 bed • 1 bath • 3160 ft²
Light industrial facility for sale in St.Boswells, Charlesfield, Charlesfield, St Boswells, TD6 0HH, TD6 — £50,000 • 1 bed • 1 bath • 1834 ft²
Residential development for sale in Potential Development Site - Caddon Haugh, Galashiels, Selkirkshire, TD1 — £165,000 • 1 bed • 1 bath • 1358 ft²
Land for sale in Plot at Hillside Drive, Galashiels, TD1 — £50,000 • 1 bed • 1 bath


































