**Standout Features:**
- 4-bedroom detached bungalow with potential for updates
- Spacious 0.21-acre plot offering privacy and a scenic garden
- Open fireplace in the triple aspect sitting room
- Versatile bedroom layout, including an option for a study
- Large garage and additional outbuildings for storage
- Located in a popular village with excellent schools nearby
**Notable Concerns:**
- Requires some renovation
- Garden maintenance needed to restore landscaping
- Possible structural concerns due to age of the property
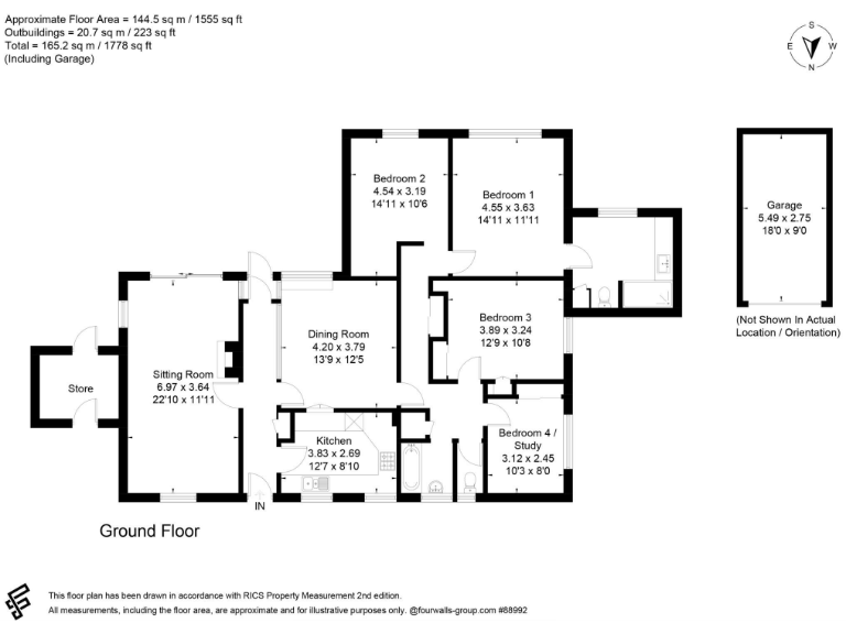
This expansive 4-bedroom detached bungalow on High Street, Manton, presents an exciting opportunity for buyers seeking space and tranquility. Set within a generous 0.21-acre plot, the property features a sizeable, private garden ripe for your personal touch. Inside, the residence boasts a light-filled triple aspect sitting room with an inviting open fireplace, and a versatile layout including three double bedrooms and a fourth that can serve as a study. The sizable garage and outbuildings add to the storage potential, making it ideal for families or anyone needing extra space.
While the property offers a tasteful blend of comfort and possibility, it does require updates and some maintenance to the garden to fully realize its potential. Residing in the charming village of Manton, you’ll find essential amenities and schools nearby, ensuring a community-focused lifestyle without sacrificing the convenience of Marlborough's vibrant town just a stone's throw away. Don’t miss your chance to transform this bungalow into your dream home!
3 bedroom bungalow for sale in West Manton, Manton, Marlborough, Wiltshire, SN8 — £550,000 • 3 bed • 2 bath • 1356 ft²
4 bedroom detached bungalow for sale in Ogbourne St George, Marlborough, Wiltshire, SN8 1SU, SN8 — £450,000 • 4 bed • 2 bath • 1246 ft²
3 bedroom detached house for sale in Manton Close, Manton, Marlborough, SN8 — £475,000 • 3 bed • 2 bath • 1539 ft²
3 bedroom detached house for sale in Manton Hollow, Manton, Marlborough, Wiltshire, SN8 — £750,000 • 3 bed • 2 bath • 1691 ft²
2 bedroom semi-detached house for sale in High Street, Manton, Marlborough, Wiltshire, SN8 — £395,000 • 2 bed • 1 bath • 722 ft²
2 bedroom semi-detached house for sale in Preshute Lane, Manton, Marlborough, SN8 — £380,000 • 2 bed • 2 bath • 1686 ft²


























































































