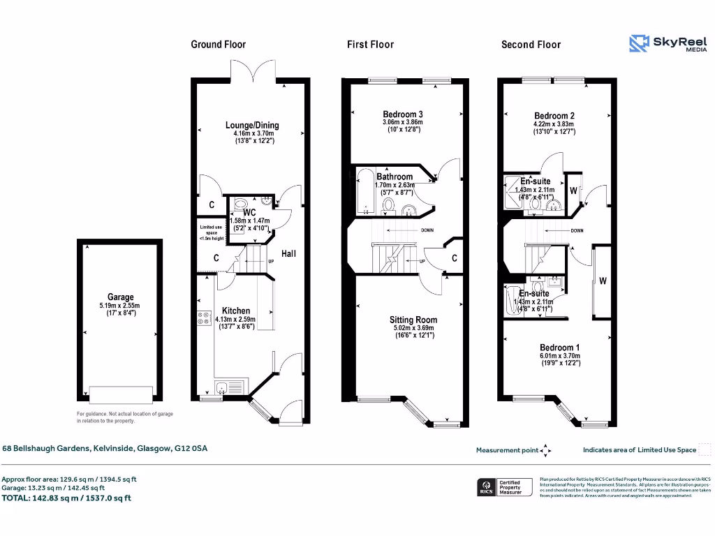
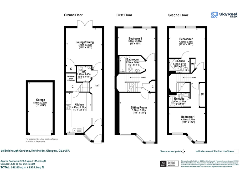
Comfortable, low‑maintenance family home with rare private garage nearby botanical gardens.
Private large garage — rare for the area and very practical
Low‑maintenance rear garden with decking and astroturf
Three double bedrooms, two with en suite shower rooms
Approximately 1,537 sq ft across three storeys; bright, airy rooms
Council Tax Band G — comparatively high running costs
Area classified as deprived — relevant to local services and stats
Multi‑storey layout may challenge those with limited mobility
Freehold tenure; double glazing and gas central heating included
This contemporary three-storey terraced house in Kelvinside offers generous, flexible family accommodation across approximately 1,537 sq ft. The layout includes three double bedrooms (two with en suites), a bright front sitting room, and a versatile rear dining/sun room that opens directly to a private, low‑maintenance garden — ideal for morning coffee or safe play. A large private garage is a rare and practical plus for this part of the West End.
Interiors are smart and mostly move‑in ready: contemporary fitted kitchen with integrated appliances, gas central heating and double glazing provide day‑to‑day comfort. Light pours in from both front and rear windows on each level, giving the house an airy feel; integrated wardrobes and sensible storage help keep living spaces tidy. The property is freehold and presents strong appeal to professionals and growing families seeking proximity to the Botanical Gardens, quality independent schools and West End amenities.
Buyers should note material running costs and local social context: the house sits in a council tax Band G and the wider area classification is recorded as deprived. The multi‑storey layout may be less convenient for those with limited mobility. Otherwise the home requires no major works and benefits from practical, low‑maintenance outdoor space and a private garage — features that add everyday convenience and future resale appeal.
A closing date is set, so interested parties should act promptly. Overall, this is a contemporary, well‑proportioned townhouse that balances comfortable family living, desirable location and practical extras such as garage parking and good connectivity.
2 bedroom town house for sale in 7 Yarrow Gardens Lane, North Kelvinside, G20 6RZ, G20 — £305,000 • 2 bed • 1 bath • 1001 ft²
3 bedroom house for sale in Lancaster Crescent Lane, Kelvinside, Glasgow, G12 — £475,000 • 3 bed • 2 bath • 1335 ft²
4 bedroom semi-detached house for sale in 8 Craiglinn Gardens, Glasgow, G45 — £210,000 • 4 bed • 3 bath • 1015 ft²
2 bedroom semi-detached house for sale in Lindsay Place, Kelvindale, Glasgow, G12 — £285,000 • 2 bed • 2 bath • 1039 ft²
3 bedroom flat for sale in 2/2 10 Beaconsfield Road, Kelvinside, G12 0PW, G12 — £315,000 • 3 bed • 2 bath • 1194 ft²
3 bedroom terraced house for sale in Highfield Drive, Kelvindale, Glasgow, G12 0HF, G12 — £275,000 • 3 bed • 1 bath • 936 ft²






















































































































































































