**Standout Features:**
- Modern Tingdene Cosgrove park home (40'x14')
- Located in a private, gated development
- Two bedrooms with electric fireplace in the living room
- Pet-friendly community for over 45s
- Countryside views and proximity to outdoor activities
- Affordable Council Tax Band B
**Potential Concerns:**
- High ground rent of £3,775.44 annually
- Slow broadband speeds
- Properties are not mortgageable
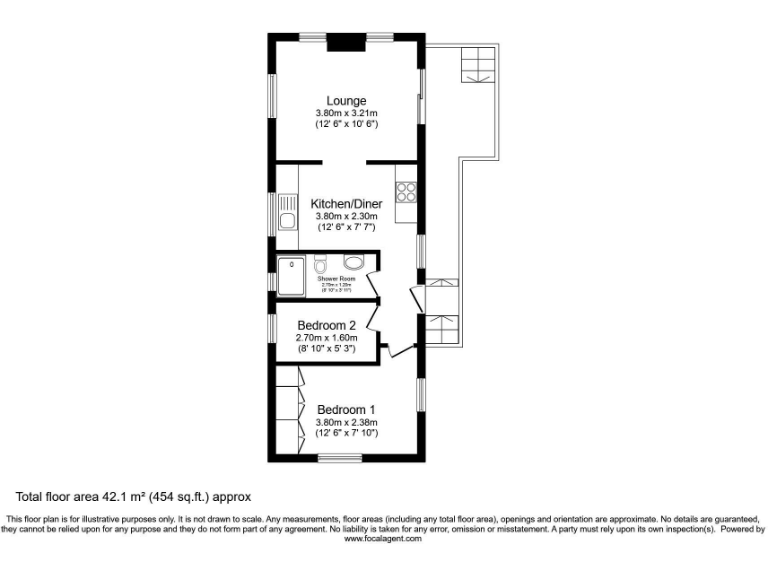
Discover your ideal countryside retreat in this contemporary two-bedroom park home situated within a secure, gated community exclusively for those aged 45 and over. This well-maintained home features a modern kitchen and an inviting living room complete with an electric fireplace, perfect for cozy evenings. Embrace a pet-friendly lifestyle surrounded by the beauty of rural Dorset, with ample opportunities for outdoor pursuits at the nearby Moors Valley Country Park and New Forest National Park.
With a compact yet functional layout and landscaping that enhances the tranquil atmosphere, this residence offers comfort and a sense of community. While a slightly high ground rent should be taken into consideration, the affordable Council Tax and peaceful living environment make this a unique opportunity. Whether you are looking to downsize or seeking a picturesque weekend getaway, this property allows for tranquil living with nature at your doorstep. Don't miss out on the chance to call this exceptional home yours!
2 bedroom park home for sale in Wimborne, Dorset, BH21 — £159,950 • 2 bed • 2 bath • 560 ft²
2 bedroom park home for sale in Three Legged Cross, Wimborne, Dorset, BH21 — £250,000 • 2 bed • 2 bath • 900 ft²
2 bedroom park home for sale in Wimborne, Dorset, BH21 — £200,000 • 2 bed • 2 bath • 640 ft²
2 bedroom park home for sale in Wimborne, Dorset, BH21 — £220,000 • 2 bed • 2 bath • 800 ft²
2 bedroom park home for sale in Wimborne, Dorset, BH21 — £195,000 • 2 bed • 2 bath • 640 ft²
2 bedroom park home for sale in Silver Mists Park, St Leonards, Dorset, BH24 — £240,000 • 2 bed • 2 bath • 900 ft²


























































