Light-filled seventh-floor apartment close to transport, schools and shops.
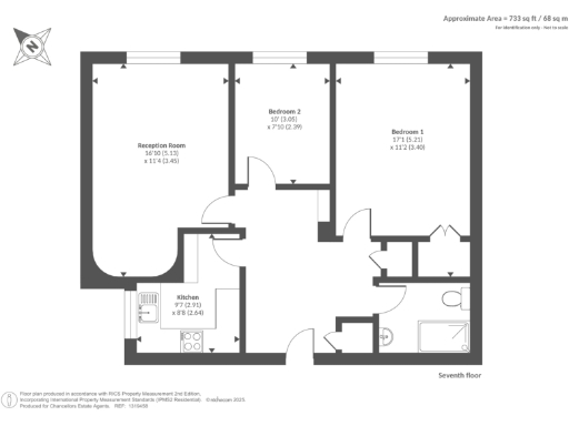
- Top-floor two-bedroom apartment with porter and lift
- Parquet flooring and bright reception room
- Modern separate kitchen and bathroom
- Double glazing installed after 2002
- Approx. 733 sq ft; average-sized central flat
- Leasehold: about 92 years remaining (may affect mortgage)
- Community heating; limited individual control
- High local crime rate and above-average council tax
Set on the seventh (top) floor of an attractive red-brick period block, this two-bedroom apartment offers bright, flexible living in the heart of Bayswater. The reception room has parquet flooring and good natural light, while the separate modern kitchen and bathroom reduce immediate maintenance needs. A porter and lift provide convenience for daily life.
Practical details suit buyers who prioritise location and a ready-to-live-in home: double glazing was installed after 2002, the property is served by a community heating scheme, and the layout includes two double bedrooms. At about 733 sq ft, the flat is an average-sized central London home close to transport, schools rated Good, and plentiful local shops and amenities.
Be clear on material considerations: this is a leasehold with approximately 92 years remaining, which can affect mortgage options and future lease extension costs. The building’s solid brick walls are likely uninsulated, and the heating is a community system, limiting individual control and potentially impacting bills.
The area is lively and well connected, but it has a higher-than-average crime level and above-average council tax; buyers should weigh central convenience against these local factors. For purchasers seeking period character, central location and an immediately usable two-bedroom apartment, this property presents a strong proposition, while those needing long lease terms or complete insulation upgrades should factor in additional costs.
2 bedroom apartment for sale in Queensway, Bayswater, W2 — £499,000 • 2 bed • 1 bath • 618 ft²
2 bedroom flat for sale in Queensway, W2 — £700,000 • 2 bed • 1 bath • 669 ft²
2 bedroom flat for sale in Queensway, Hyde Park, W2 — £650,000 • 2 bed • 1 bath • 975 ft²
2 bedroom flat for sale in Princess Court, Queensway, London, W2 — £625,000 • 2 bed • 1 bath • 700 ft²
1 bedroom flat for sale in Orsett Terrace, Bayswater, London, W2 — £310,000 • 1 bed • 1 bath • 346 ft²
2 bedroom apartment for sale in Queens Gardens, Bayswater, W2 — £550,000 • 2 bed • 2 bath • 571 ft²










































































































































