Two-bedroom home with garage beside Myatt's Fields Park, ideal for family life..
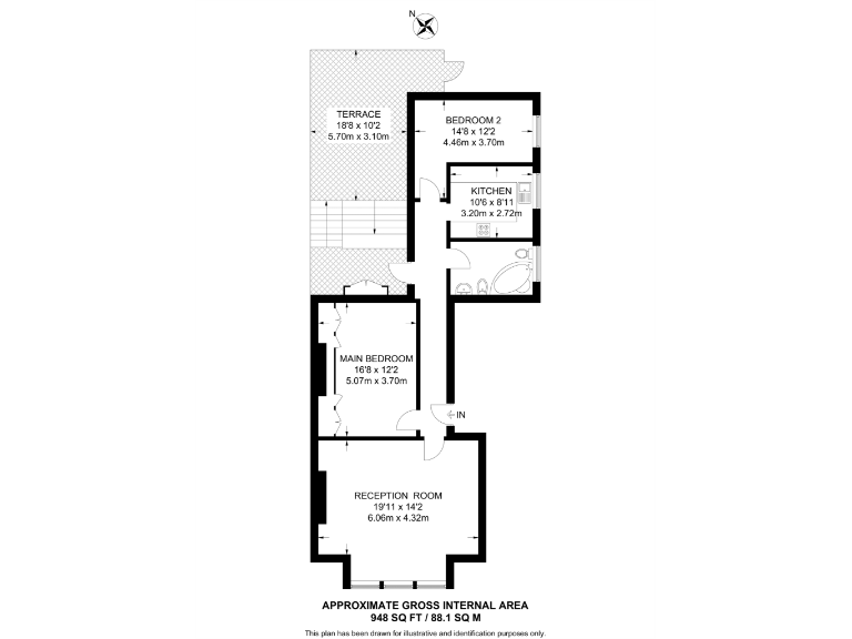
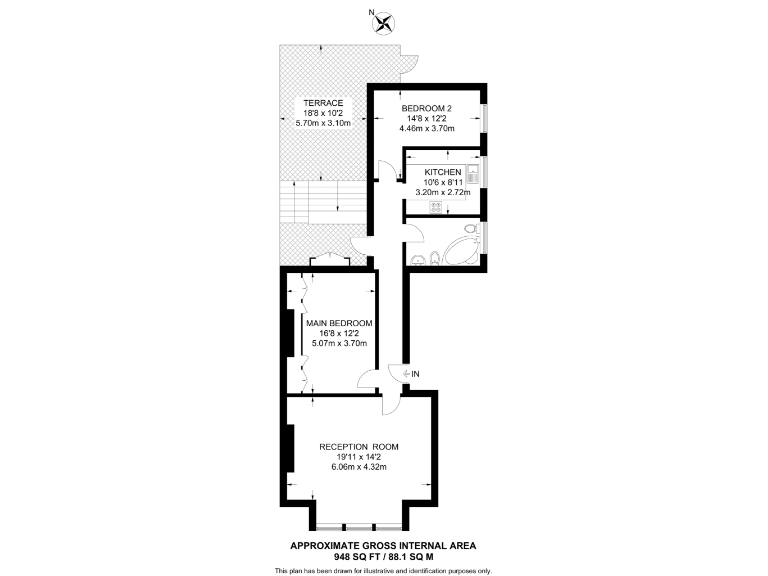
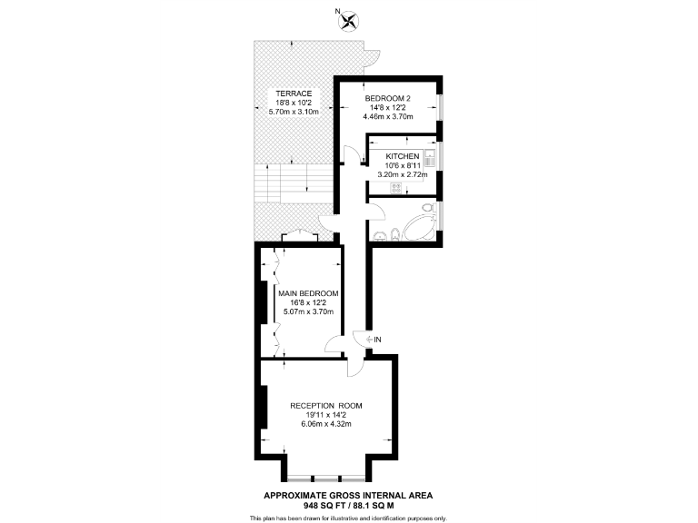
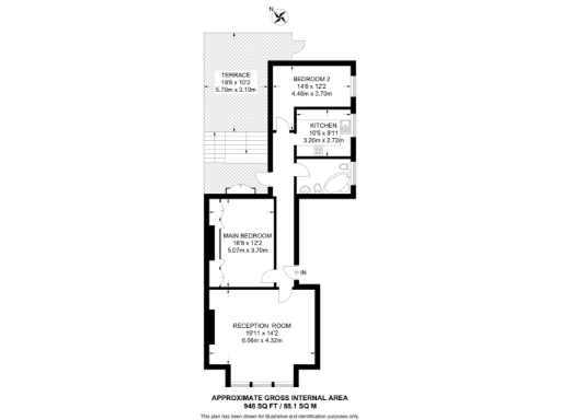
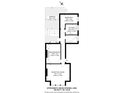
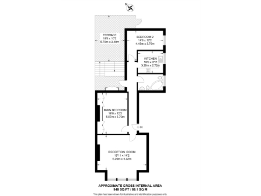
Generous 948 sq ft two-double-bedroom flat
Set within a conversion close to Myatt's Fields Park, this large two-bedroom flat offers generous living space and period character. At 948 sq ft it feels more like a house, with high ceilings, a substantial reception room and fitted details that suit family life or home-working.
Practical benefits include a private garage, communal front and rear gardens and a share of the freehold, giving more control over management costs. Transport links are strong — Loughborough Junction station is a short walk — and several Good and Outstanding schools are nearby.
Buyers should note the property relies on electric room heaters and older double glazing, which can mean higher heating costs and potential upgrade work. The local area is inner-city and shows signs of deprivation; crime levels are average. Overall this is a roomy, well-located flat with renovation potential and tangible long-term value.
2 bedroom flat for sale in Lilford Road, Camberwell, London, SE5 — £695,000 • 2 bed • 1 bath • 945 ft²
2 bedroom flat for sale in Lilford Road, Camberwell, London, SE5 — £525,000 • 2 bed • 1 bath • 1235 ft²
2 bedroom flat for sale in Northlands Street, Loughborough Junction, SE5 — £450,000 • 2 bed • 1 bath • 455 ft²
2 bedroom flat for sale in Lilford Road, London, SE5 — £725,000 • 2 bed • 1 bath • 1127 ft²
2 bedroom apartment for sale in Denmark Road, London, SE5 — £439,950 • 2 bed • 1 bath • 678 ft²
2 bedroom flat for sale in Eastlake Road, London, SE5 — £525,000 • 2 bed • 1 bath • 922 ft²










































































































