**Standout Features:**
- **Location:** Prime position on Compton Avenue, near Seven Dials and Brighton city center
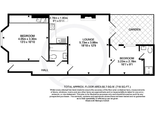
- **Size:** Two double bedrooms, two bathrooms within 721 sq ft of stylish living space
- **Design:** Architect designed with modern finishes, high ceilings, and plenty of natural light
- **Outdoor Space:** Private patio garden perfect for relaxation and entertaining
- **Parking:** On-street parking available
- **Lease:** 988 years remaining
**Concise Summary:**
Discover urban living at its finest in this architect-designed two-bedroom apartment nestled in the vibrant Seven Dials neighborhood of Brighton. This meticulously finished flat showcases modern elegance with a spacious living area that flows into a contemporary kitchen, adorned with geometric tiles and sleek cabinetry. Enjoy entertaining or unwinding in your private rear patio garden, a serene retreat in the heart of the city.
Both double bedrooms come equipped with built-in wardrobes and bespoke shutters, enhancing both functionality and style. The property benefits from two well-appointed bathrooms, including a stylish en-suite in the master bedroom, adding convenience for family or guests. Enjoy quick access to an array of local amenities, cafes, and the stunning Brighton Beach, all within commuting distance. With excellent broadband speeds and a council tax band B, this charming apartment is an exceptional find for professionals or families alike.
While the flat is in sound condition and offers a central location, prospective buyers will appreciate the value of the below-average service charge and the potential for personalization in the inviting space. Don't miss this exclusive opportunity to secure your own piece of Brighton living; it's a gem that won't stay on the market for long!
1 bedroom flat for sale in 60 Compton Avenue, Brighton, BN1 — £350,000 • 1 bed • 1 bath • 679 ft²
2 bedroom apartment for sale in Goldsmid Road, Hove, BN3 — £435,000 • 2 bed • 2 bath • 709 ft²
2 bedroom flat for sale in Albert Road, Brighton, East Sussex, BN1 — £285,000 • 2 bed • 1 bath • 626 ft²
1 bedroom flat for sale in Albert Road, Brighton, East Sussex, BN1 — £335,000 • 1 bed • 1 bath • 570 ft²
1 bedroom apartment for sale in Compton Avenue, Brighton, BN1 — £350,000 • 1 bed • 1 bath • 528 ft²
2 bedroom flat for sale in Compton Avenue, Brighton, BN1 — £425,000 • 2 bed • 1 bath • 782 ft²






















































