Chain-free two-bedroom cottage near Brentwood High Street and station, ideal for first buyers.
- Chain free period end-terraced cottage, built c.1905
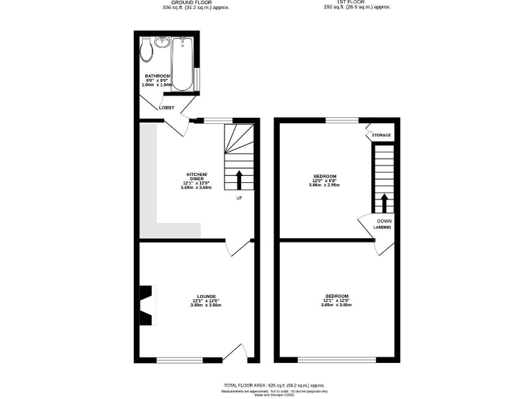
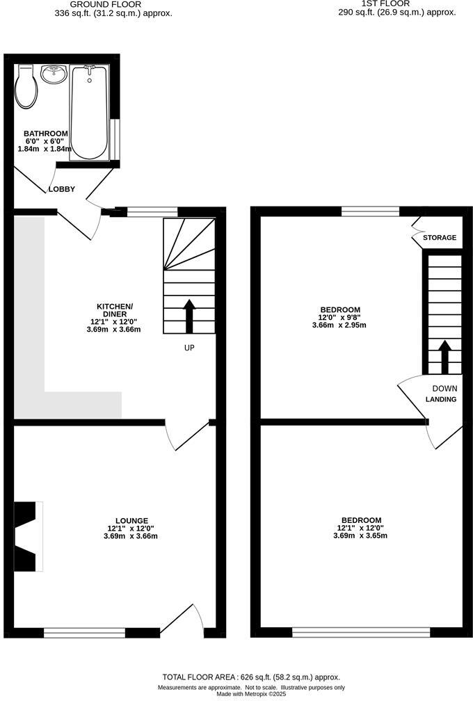
- Two double bedrooms across two storeys (626 sq.ft. total)
- Private rear garden; potential to extend (subject to planning)
- Potential off-street parking via small forecourt/private driveway
- Mains gas central heating, double glazed sash-style windows
- Compact rooms and standard ceiling heights typical of era
- Requires some modernisation/cosmetic updating to maximise value
- Local area records very high crime levels; check local implications
A charming period end-terraced cottage built c.1905, offered chain-free and ready for new owners to personalise. The house retains original features such as a decorative fireplace and sash-style windows, while a contemporary kitchen/diner gives immediate liveability. Two double bedrooms and 626 sq.ft. of accommodation suit first-time buyers, downsizers or investors seeking a well-located property with character close to Brentwood High Street and the mainline station.
Externally there is a private rear garden for entertaining and a small paved forecourt with potential for off-street parking via a private driveway. The layout and plot also offer scope to extend subject to planning permission, providing clear value-add potential for buyers who want to increase space or resale value.
The property is freehold with mains gas heating (boiler and radiators) and double glazing. The internal footprint is compact with standard ceiling heights and small rooms typical of a Victorian cottage; the overall condition appears tidy but some modernisation and cosmetic updating would raise standards and future-proof the home.
Important considerations: the area records a very high local crime statistic, and the house sits on a small plot with limited immediate expansion without planning consent. Buyers should check planning feasibility and factor in refurbishment costs where applicable.
2 bedroom terraced house for sale in Kings Chase, Brentwood, CM14 — £475,000 • 2 bed • 1 bath • 816 ft²
2 bedroom terraced house for sale in Wellesley Road, Brentwood, CM14 — £425,000 • 2 bed • 1 bath • 749 ft²
2 bedroom semi-detached house for sale in Cromwell Road, Warley, CM14 — £425,000 • 2 bed • 1 bath • 567 ft²
2 bedroom terraced house for sale in Western Road, Brentwood, CM14 — £425,000 • 2 bed • 1 bath • 721 ft²
2 bedroom end of terrace house for sale in Weald Road, Brentwood, CM14 — £525,000 • 2 bed • 2 bath • 700 ft²
2 bedroom terraced house for sale in Ongar Road, Brentwood, CM15 — £400,000 • 2 bed • 1 bath • 590 ft²


























































