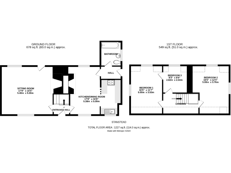
**Standout Features:**
- Charming three-bedroom detached cottage with a thatched roof
- Recently refurbished interior (2022) while retaining character features
- Open plan kitchen/dining area and a cozy sitting room with inglenook fireplace
- Generous gardens of about 0.2 acres, including attractive terraced seating
- Off-street parking with garage/outbuilding
- No onward chain
**Potential Concerns:**
- Grade II listed status may complicate future renovations
- Average broadband speeds
Nestled in a highly-sought-after village location, this delightful, fully refurbished three-bedroom cottage offers a perfect blend of rustic charm and modern convenience. Boasting a traditional thatched roof and stunning exposed timber beams, the airy kitchen/dining area is a true centerpiece, flowing seamlessly into a light-filled sitting room, both featuring enchanting views of the beautifully landscaped gardens. With the recent renovations breathing new life into the home, including updated plumbing, windows, and heating, this property is move-in ready.
The expansive 0.2-acre garden presents plenty of thoughtful outdoor spaces for relaxation and entertainment beneath the shelter of mature trees. Ideal for families or first-time buyers seeking peace in the countryside, this property offers a secure, exclusive lifestyle infused with character and comfort. Please note the Grade II listing, which may pose limitations for future modifications. Don't miss out on this unique opportunity—properties like this, chain-free and well-maintained, don't stay on the market for long!
3 bedroom semi-detached house for sale in The Street, Stoke By Clare, Suffolk , CO10 — £450,000 • 3 bed • 2 bath • 1218 ft²
4 bedroom detached house for sale in Water Lane, Helions Bumpstead, CB9 — £665,000 • 4 bed • 2 bath • 2022 ft²
4 bedroom detached house for sale in Edwardstone, Sudbury, Suffolk, CO10 — £695,000 • 4 bed • 2 bath • 2035 ft²
3 bedroom cottage for sale in Lower Road, Hemingstone, IP6 — £475,000 • 3 bed • 2 bath • 1955 ft²
3 bedroom detached house for sale in Great Waldingfield, Sudbury, Suffolk, CO10 — £400,000 • 3 bed • 1 bath • 939 ft²
2 bedroom cottage for sale in Little London, IP14 — £295,000 • 2 bed • 1 bath • 967 ft²


































































































































