Charming 3-bed period house with large gardens adjoining farmland — ideal family home with scope to modernise..
Period semi-detached house with character features and arched windows
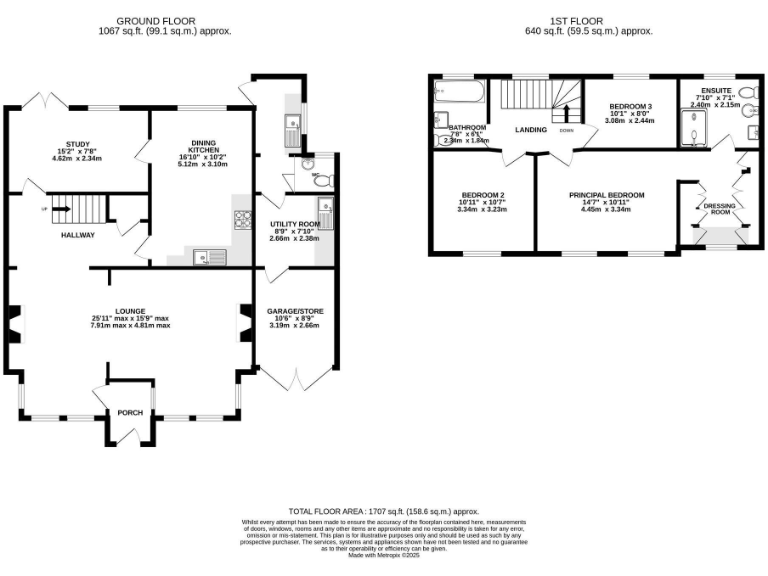
Set on School Lane in Ollerton, this attractive period semi-detached house provides generous living space across multiple floors, ideal for family life in a semi-rural setting. The ground floor flows from an enclosed entrance lobby to a dining hall, cosy living room with fireplace, useful study/sitting room and a cottage-style breakfast kitchen with utility and store/boiler room. Upstairs there are three good-sized bedrooms; the principal bedroom benefits from a fitted walk-in dressing room and modern en‑suite shower room.
The mature rear garden is a standout feature, secluded by established hedging and directly adjoining farmland, offering private sitting areas and expansive outdoor potential. A gravelled driveway to the front provides off-road parking for several vehicles and leads to an attached garage. Local schools rate highly and the property sits within a peaceful, village conservation area popular with rural white-collar workers.
Buyers should note material running and improvement considerations: the property has an EPC rating of F, oil-fired central heating and cavity walls that are assumed to lack insulation. Council tax is described as expensive. These factors present clear scope for energy-improvement works and potential uplift through insulation, heating upgrades and targeted refurbishment.
Overall this is a large, characterful family home in a desirable semi-rural location, offering immediate comfort and significant potential for modernisation to improve energy efficiency and long-term running costs.
2 bedroom terraced house for sale in Marthall Lane, Ollerton, WA16 — £349,950 • 2 bed • 1 bath • 755 ft²
4 bedroom detached house for sale in Ollerton Oak Grove, Knutsford, Cheshire, WA16 — £1,995,000 • 4 bed • 1 bath • 3338 ft²
3 bedroom semi-detached house for sale in Dams Lane, Allostock, WA16 — £545,000 • 3 bed • 2 bath • 1392 ft²
3 bedroom detached house for sale in Chester Road, Tabley, Knutsford, Cheshire, WA16 — £680,000 • 3 bed • 3 bath • 2696 ft²
7 bedroom detached house for sale in Moss Lane, Ollerton, WA16 — £2,695,000 • 7 bed • 4 bath • 4790 ft²
3 bedroom detached house for sale in Knutsford Road, Cranage, CW4 — £625,000 • 3 bed • 2 bath • 1814 ft²






























































































